Bildegalleri

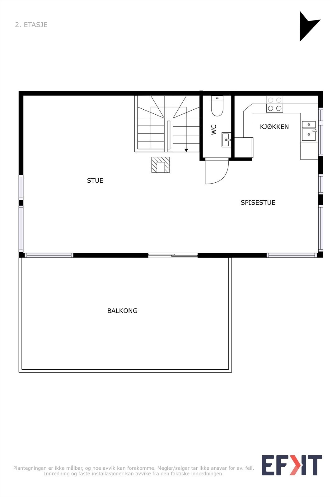
Velkommen til Starumsvegen 56! Her finner vi en lys og delikat stue med gulv til tak vinduer. Dette gir godt med lysinnslipp. Boligen har også balansert ventilasjon med varmegjenvinning som sørger for optimalt inneklima.
Moderne enebolig i kjede fra 2022 // Idyllisk beliggenhet // 3 soverom // Elbillader og carport.
Nøkkelinfo
- Boligtype
- Enebolig
- Eieform
- Eier (Selveier)
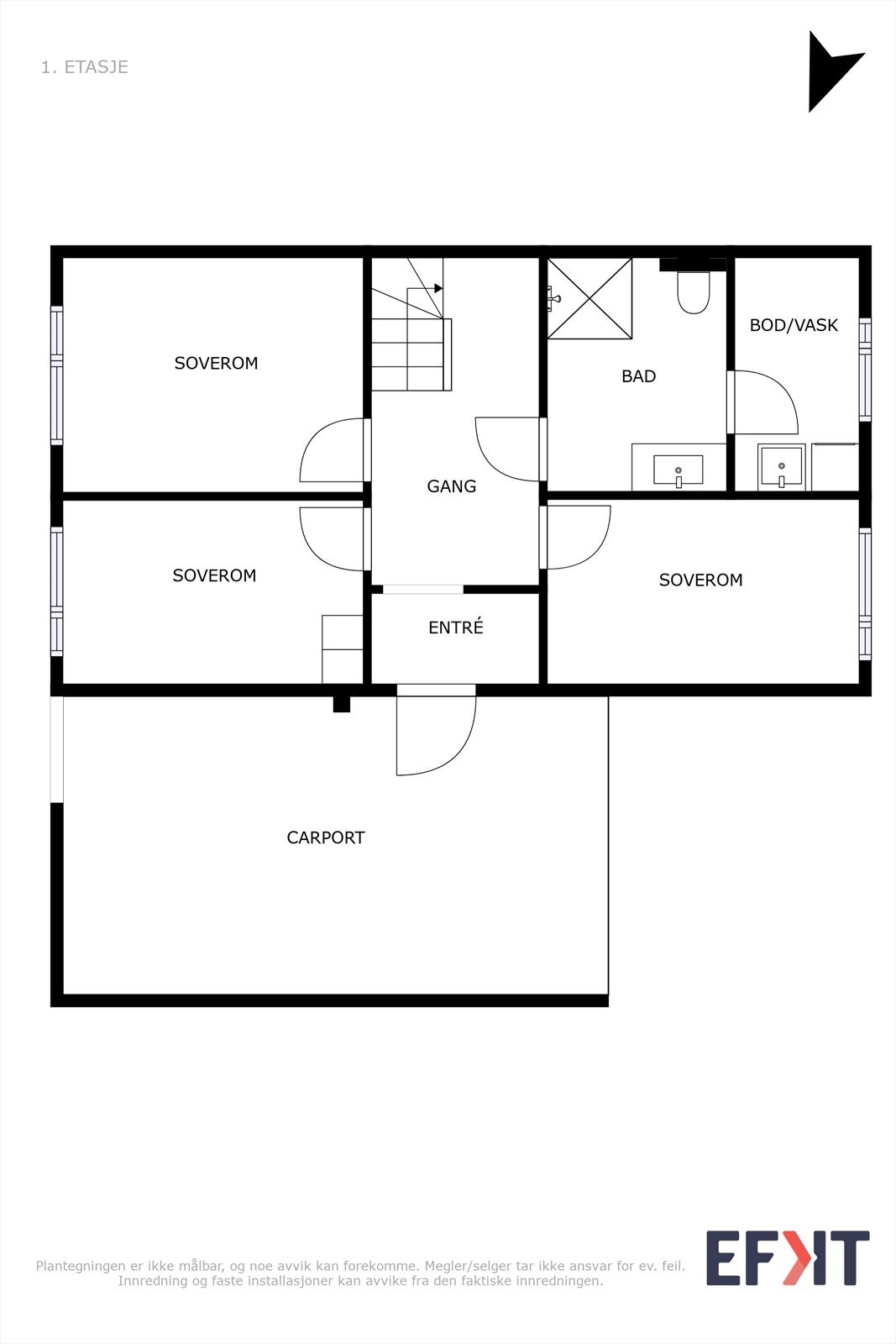
- Soverom
- 3
- Internt bruksareal
- 105 m² (BRA-i)
- Bruksareal
- 111 m²
- Eksternt bruksareal
- 6 m² (BRA-e)
- Etasje
- 2
- Byggeår
- 2022
- Energimerking
- B - Oransje
- Rom
- 4
- Tomteareal
- 1 338 m² (eiet)
Fasiliteter
Om boligen
Her bor man i et godt og trygt nabolag. Nærhet til Lena og Kapp med kort veg til de fleste fasiliteter.
H I G H L I G H T S :
- Nytt i 2022
- Praktisk planløsning
- Stilrene fargevalg
- Moderne peis i stue
- Ventilasjon med varmegjenvinning
- Vaskerom
- Store vinduer
- Elbillademuligheter
- Ingen TG3
Velkommen til en hyggelig visning!
Salgsoppgaven beskriver vesentlig og lovpålagt informasjon om eiendommen
Se komplett salgsoppgaveNyttige lenker
Nærområdet
Eiendomsmegler 1 Gjøvik
Prisstatistikk
Starumsvegen 56
på annonsen
prisantydning per kvadratmeter
Prisfordeling
Pris per m² ligger 19 095 kr over snittet for eneboliger i Østre Toten.
Grafen viser antall eneboliger solgt i Østre Toten siste året fordelt på pris per m² - totalt 149 eneboliger
Antall boliger
Kvadratmeterpris tilsvarer prisantydning pluss fellesgjeld per kvadratmeter (p-rom eller BRA-i). Prisene i grafen er avrundet til nærmeste 1000 kr.
Annonseinformasjon
| FINN-kode | 344688696 |
|---|---|
| Sist endret | 26. apr. 2025 09:44 |
| Referanse | 11240008 |
Annonsene kan være mangelfulle i forhold til lovpålagt opplysningsplikt. Før bindende avtale inngås oppfordres interessenter til å innhente komplett informasjon fra meglerforetaket, selger eller utleier.





























