Bildegalleri

DNB Eiendom v/ Johnny Nicolai Olsen har gleden av å presentere Øvre Leidlandhagen del 2.
Øvre Leidlandshagen del 2
13 stk moderne boliger i forskjellige størrelser med fin utsikt i meget familievennlig område.
Prisantydning fra
4 780 000 kr
Prisantydning til
5 990 000 kr
Prosjektets status
Planlegging
Ferdig
Salgsstart
Nå
Byggestart
Ved salg
Overtakelse
420 dager
Nøkkelinfo
- Boligtype
- Enebolig
- Soverom
- 3 - 4
- Internt bruksareal
- 102 - 172 m² (BRA-i)
- Bruksareal
- 132 - 204 m²
- Eksternt bruksareal
- 30 - 32 m² (BRA-e)
- Balkong/Terrasse
- 26 - 32 m² (TBA)
- Eieform
- Eier (Selveier)
Fasiliteter
Enheter i prosjektet
Sorter etter
Beskrivelse
13 moderne eneboliger øverst i Leidlandshagen. Her skal det bygges tre ulike boligtyper. Alle boligtypene har fantastisk beliggenhet med store vindusflater, gode planløsninger med 3-4 soverom, carport og store takterrasser.
Bjerkreim Trelast, Eger Bygg og Norrøn Bolig har forent krefter for å utvikle Øvre Leidlandshagen. Deres høye kompetanse og lange erfaring i byggebransjen sikrer deg en bolig av høy kvalitet. De samarbeider også med arkitekt og tar gjerne på seg tegneoppdrag for å skreddersy tilpasninger etter dine behov.
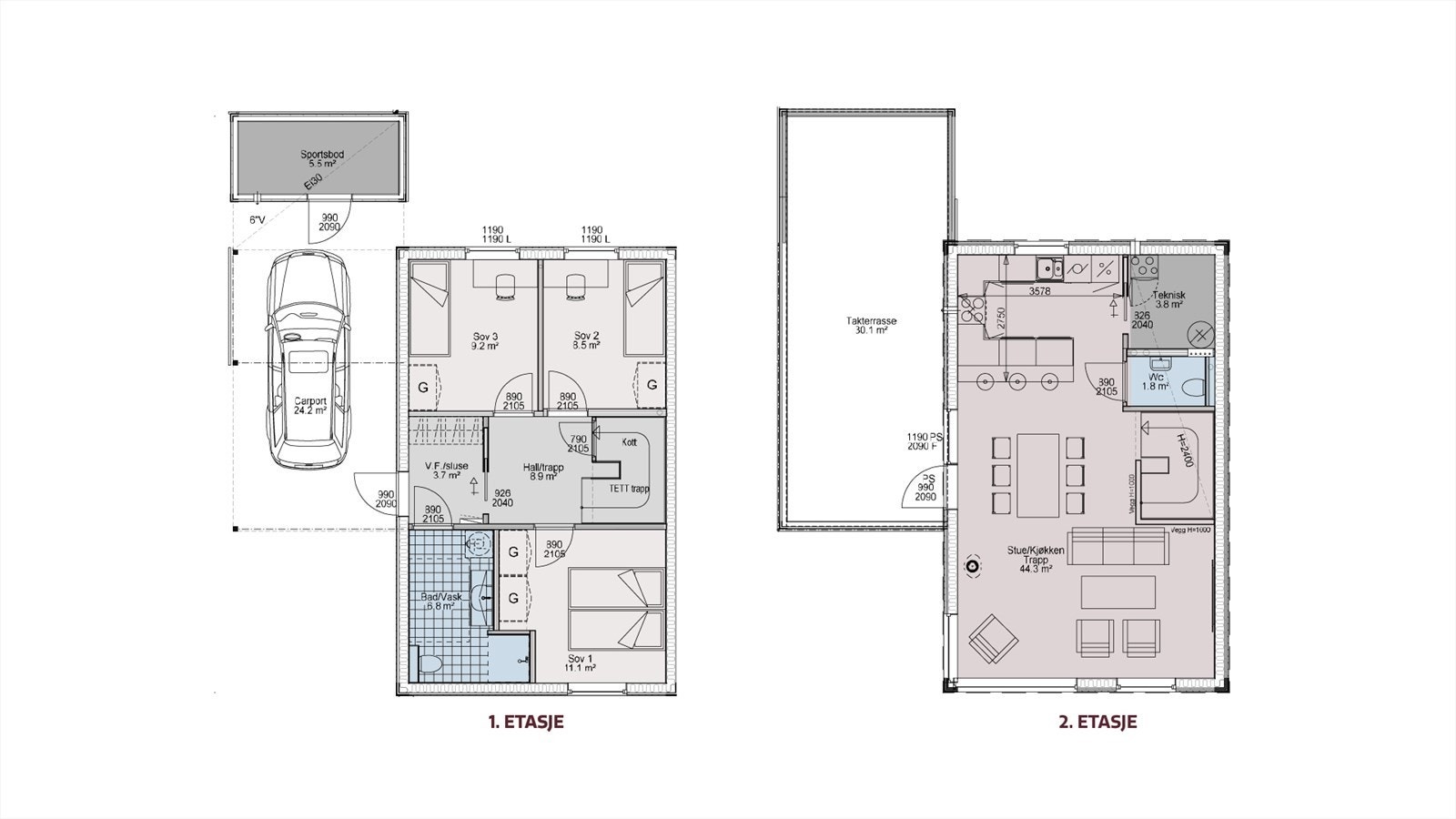
Boligtype 1:
Inneholder stor stue med åpen kjøkkenløsning og direkte utgang til takterrasse på hele 30,1 m2, 3 gode soverom, stort bad, gjestetoalett ogcarport med sportsbod.
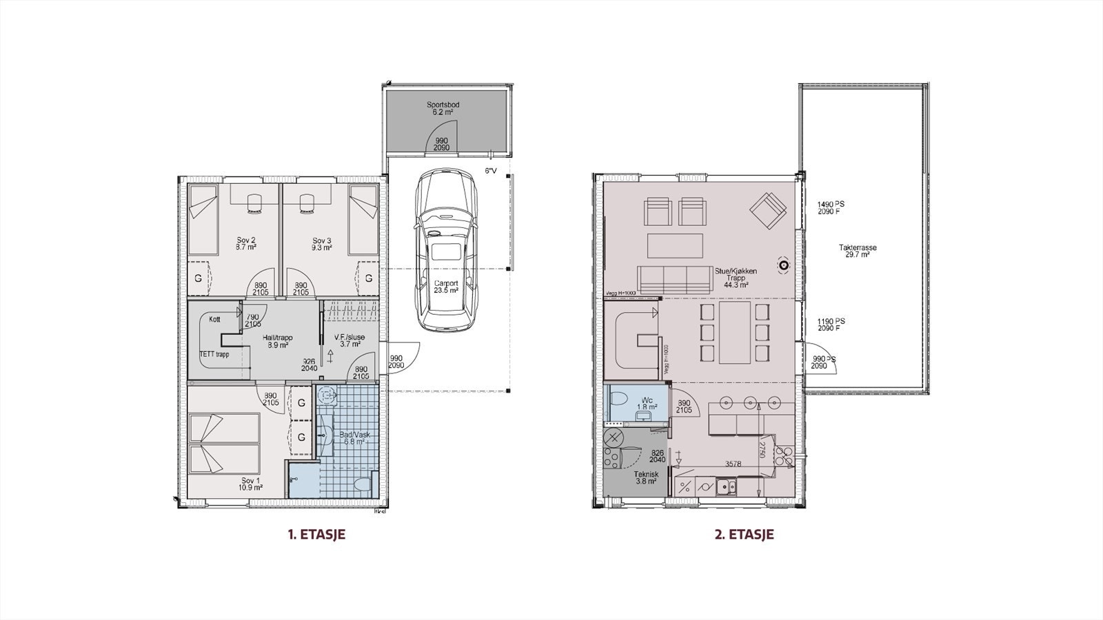
Boligtype 2:
Inneholder stor stue med åpen kjøkkenløsning og direkte utgang til takterrasse på hele 29,7 m2 , 3 gode soverom, stort bad, gjestetoalett og carport med sportsbod.
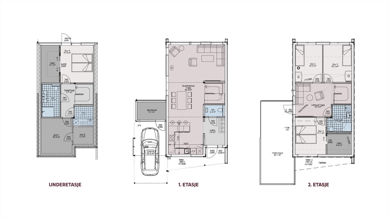
Boligtype 3:
Inneholder stor stue med åpen kjøkkenløsning, stor loftstue med direkte utgang til takterrasse, 4 store soverom, 2 bad, gjestetoalett, vaskerom, gode boder og carport med sportsbod.
Boligene leveres ferdige med unntak av marlerarbeidet og lyskilder- dette må kjøpes utenom. Se opsjonspakker i prospektet. Maling og sparking kan evt. gjøres som egeninnsats. Ta kontakt for mer informasjon rundt dette.
Fremdriftsplan og ferdigstillelse
Byggetid er 14 mnd. regnet fra signert kontrakt.
Selger kan kreve overtagelse inntil fire måneder før den avtalte fristen til å ha boligen klar til overtagelse. Selger skal skriftlig varsle om dette minimum to måneder før det nye overtagelsestidspunktet. Det eksakte overtagelsestidspunktet skal gis med minst 14 kalenderdagers skriftlig varsel. Det beregnes dagmulkt fra det nye overtagelsestidspunktet.
Selger skal innen rimelig tid varsle forbruker dersom det oppstår forhold som vil medføre at han blir forsinket med sin utførelse.
Selger har rett til tilleggsfrist dersom vilkårene som nevnt i buofl. § 11 er oppfylt.
Selger tar forbehold om at endelig innflyttingsdato kan endres som følge av manglende arbeidskraft, forsinket levering av nødvendige leveranser til prosjektet og lignende som følge av sykdomsfravær ved f.eks. større virusutbrudd.
Garasje/Parkering
Alle vil ha parkering i carport og eget gårdsrom.
Gjeste parkering på felles parkeringsplasser.
Oppvarming
Varmekabel på bad og vaskerom.
Det leveres stål pipe og vedovn av type ild 9 eller tilsvarende.
Utleie
Det er ikke kjent at det foreligger regler som er til hinder for at eiendommen leies ut.
Beliggenhet
KORTE AVSTANDER:
Fra Øvre Leidlandshagen er det kort gåavstand til to barnehager, Eigerøy skole og Hålå idrettsanlegg. Det er opparbeidet gangog sykkelsti fra eneboligene til Hålå, som har flere fotballbaner å boltre seg på.
Egersund sentrum er bare fem minutter unna med bil, og herfra er det gode tog- og bussforbindelser videre - enten du skal sørover til Kristiansand eller nordover til Stavanger.
OPPLEV EGERSUND BY:
Egersund er en historisk by med en av Norges best bevarte trehusbebyggelser. Du finner flott arkitektur, koselige caféer og nisjebutikker, innholdsrikt kjøpesenter, spennende restauranter og et yrende fritids- og kulturliv i byen.
FAMILIEIDYLL:
Det er lett å være aktiv i Øvre Leidlandshagen. Omringet av flott natur finnes det utallige turstier og attraksjoner å utforske rett utenfor døren. Skadbergsanden, som er den største sandstranden langs
Dalanekysten, er en kort kjøretur unna. Videre ut på Eigerøy kan du besøke historierike Eigerøy fyr, som var Norges første tårn bygget i støpejern. Her finnes det også flere krigsminner i området. Boligene er perfekte for deg som ønsker å bo nær naturen tilpasset en hektisk hverdag. Ta deg en forfriskende dukkert på en av badeplassene, eller kanskje du vil ta deg en fredfull tur i skogen.
AVSTANDER:
Eigerøy barneskole.........................3,2 km / 7 min med bil og gangavstand ca 5 min.
Robåten FUS barnehage ............2,9 km / 6 min med bil og gangavstand ca 8 min.
Eigerøy andelsbarnehage ..........2,9 km / 6 min med bil og gangavstand ca 8 min.
Jernhagen barnehage ...................2,9 km / 6 min med bil
Dalane VGS .........................................3,8 km / 6 min med bil
Spar Eigerøy........................................2,2 km / 4 min med bil
Togstasjon ..........................................3 km / 5 min med bil
Bibliotek ...............................................4 km / 7 min med bil
Sentrum ...............................................4 km / 7 min med bil
Idrettsbane .........................................3,2 km / 7 min med bil og gangavstand ca 5 min.
Badeplass .......................................3,2 km / 7 min med bil og gangavstand ca 6 min.
Turområde...........................................2 m / 1 min med bil og gangavstand ca 1 min.
Skadbergsanden .............................3,5 km / 6 min med bil
Lovanvendelse
Kjøpet reguleres av Lov om avtale med forbrukar om oppføring av ny bustad m.m. (bustadoppføringslova) 13. juni 1997 nr. 43, i tilfeller hvor selger er profesjonell og kjøper er forbruker. Dette innebærer blant annet at kjøper har krav på garantier iht. bustadoppføringslova § 12.
I tilfeller hvor kjøper er profesjonell iht. bustadoppføringslova, dvs. gjør kjøpet som ledd i næringsvirksomhet, kan selger kreve at avtalen reguleres av avhendingslova eller etter bustadoppføringslova hvor §§12, 18 og 52-54 ikke kommer til anvendelse.
Tomt
Opparbeidelse ihht. situasjonskart. Asfaltert gårdsrom. Jordlag for grøntanlegg maskin planeres med stedlige jordmasser, øverste lag legges sollet jordlag. Ved skrått terreng avsluttes som hovedregel terrenget med skråninger. Dersom det er nødvendig med murer for å klare å tilpasse terrengforskjeller, leveres lødd eller støpt mur.
Tomtene er i skrivende stund ikke utskilt slik at tomtearealene er ikke eksakte. De er beregnet til å være ca.:
Tomt 1: ca. 284 m²
Tomt 2: ca. 286 m²
Tomt 3: ca. 300 m²
Tomt 4: ca. 640 m²
Tomt 5: ca. 290 m²
Tomt 6: ca. 262 m²
Tomt 7: ca. 312 m²
Tomt 8: ca. 259 m²
Tomt 9: ca. 230 m²
Tomt 10: ca. 228 m²
Tomt 11: ca. 210 m²
Tomt 12: ca. 175 m²
Tomt 13: ca. 212 m²
Areal avvik ved senere oppmåling må dermed påregnes. Avvik gir ikke rett til prisavslag (evt. påslag fra utbygger om den er større).
FELLES AREAL:
Felles areal i Leidlandshagen Delfelt 2 har via Leidlandshagen velforening K4 - delfelt 2 felles drifts- og vedlikeholdsansvar for felles adkomst, gjesteparkering, felles utvendig lek, felles vann- og avløpsrør og oppholdsareal mm. Selger forbeholder seg retten til å administrere dette som det passer/er fornuftig. Dette endrer ikke kjøpers andel av vedlikeholdsutgifter.
Diverse
Prospektet med vedlegg er godkjent av selger.
Prosjektet er ett samarbeidsprosjekt mellom Eger Bygg, Bjerkreim Trelast og Norrøn Bolig. Byggingen er fordelt på følgende:
- Eger Bygg bygger boligene på tomt: 4, 8,9 og 10.
- Bjerkreim Trelast bygger boligene på tomt: 1, 5, 6 og 7.
- Norrøn Bolig bygger boligene på tomt: 2, 3, 11, 12 og 13.
Utvasking av boligen er ikke inkludert i leveransen fra utbygger. Boligene leveres ryddet og støvsuget.
FORBRUKERINFORMASJON VED INNGIVELSE AV KJØPETILBUD:
Alle kjøpetilbud og relatert kommunikasjon med megler skal foregå skriftlig. Megler har ikke anledning til å formidle opplysninger om kjøpetilbud som ikke er gitt skriftlig. Megler vil likevel gi deg opplysninger og råd underveis i prosessen. Dette behøver ikke gjøres skriftlig.
Gi kun skriftlige kjøpetibud, og sett en tilstrekkelig lang akseptfrist. Uansett bør ikke kjøpetilbudet ha en akseptfrist på mindre enn 30 minutter fra det inngis.
Kjøpetilbudet skal inngis på DNB Eiendom sitt kjøpetilbudskjema påført din signatur. Samtidig må du legitimere deg. Det kan gjøres ved at du laster opp kopi av legitimasjon eller bruker bankID når du legger inn elektronisk kjøpetilbud på dnbeiendom.no, eller du kan vise legitimasjon direkte/personlig til megler som sørger for kopi. Annen oversendelse, eks. sms eller epost, er forbundet med en viss risiko for at opplysningene kommer på avveie. Dersom dere er to eller flere som skal kjøpe sammen, må samtlige budgivere undertegne kjøpetilbudet og legitimere seg.
Du kan velge mellom følgende når du skal sende kjøpetilbud; levere direkte/personlig til megler eller benytte budknappen til DNB Eiendom som du finner i annonsen på finn.no eller på prosjektets side på dnbeiendom.no. Annen oversendendelse, eks. sms eller epost, er forbundet med en viss risiko for at opplysningene kommer på avveie.
Kjøpetilbud som inngis utenom ordinær arbeidstid kan ikke forventes behandlet før neste ordinære arbeidsdag. Du har selv risikoen for at ditt kjøpetilbud kommer frem til megler. Megler vil straks kjøpetilbudet er mottatt bekrefte dette skriftlig til deg. Får du ikke slik bekreftelse, bør du ringe megler for å sjekke om kjøpetilbudet er mottatt.
Kjøpetilbudet skal fylles ut så nøyaktig som mulig med hensyn på finansiering, finansinstitusjonens kontaktperson samt andel egenkapital. Normalt vil ikke kjøpetilbud med forbehold bli akseptert av selger før forbeholdet er avklart.
Selger vil gi sin aksept av kjøpetilbud skriftlig til megler, som så videreformidler aksepten til den som får aksept. Selger står fritt til å forkaste eller akseptere et hvert kjøpetilbud.
I følge forskrift om eiendomsmegling § 6-4 vil kopi av budjournalen bli oversendt kjøper og selger etter aksept. Dersom det er viktig for budgiver å bevare sin anonymitet, bør kjøpetilbudet fremmes gjennom fullmektig.
Andre som har levert inn kjøpetilbud på samme bolig kan få utlevert anonymisert budjournal.
Ansvarlig megler
Johnny Nicolai Olsen
Nyttige lenker
Nærområdet
DNB Eiendom AS
Annonseinformasjon
| FINN-kode | 344098014 |
|---|---|
| Sist endret | 26. nov. 2024 11:16 |
| Referanse | 719245024 |
Annonsene kan være mangelfulle i forhold til lovpålagt opplysningsplikt. Før bindende avtale inngås oppfordres interessenter til å innhente komplett informasjon fra meglerforetaket, selger eller utleier.

























