Bildegalleri

Vakkert beliggende i ei nydelig hyttegrend!
Splitter ny hytte til vinterferien? Fantastisk tømmerhytte med 4 soverom og to bad. To peiser i oppdalskifer!
- Omkostninger
- 172 500 kr
- Totalpris
- 7 072 500 kr
Nøkkelinfo
- Beliggenhet
- På fjellet
- Boligtype
- Hytte
- Eieform
- Eier (Selveier)
- P-plasser
- 4
- Primærrom
- 136 m²
- Bruksareal
- 141 m²
- Tomteareal
- 1 001 m² (eiet)
- Grunnflate
- 160 m²
- Bruttoareal
- 160 m²
- Byggeår
- 2023
- Soverom
- 4
- Meter over havet
- 860
Fasiliteter
Om eiendommen
Beliggenhet
Bare to timer unna Oslo og Vestfold-byene ligger denne romslige og meget eksklusive tømmerhytta klar til innflyttning. Hytta ligger på eiet tomt, altså ingen årlig festeavgift. Uansett årstid avslører utsikten fra den solrike tomta områdets mange rekreasjonsmuligheter. Du trenger nemlig bare å ta et par stavtak før du befinner deg i et nettverk av velpreparerte skiløyper som strekker seg over 100 kilometer. Ca. 4 km i skisporet fra hytta, så er du på Veggli Fjellstue, det naturlige stoppestedet på dagens tur.
Det er gode fiskemuligheter i området, enten du foretrekker spretten fjellørret eller laks i Numedalslågen. Fiske- og bademuligheter bare en kort spasertur fra hytta. Hovedløypenett sommer som vinter går rett forbi hytta. Mer sentral beliggenhet på Vegglifjell finnes ikke.
Vegglifjell skisenter ligger en kort kjøretur bort, og for den som ønsker å bli tatt av vinden, kan det nevnes at området byr på svært gunstige forhold for snowkiting.
Vegglifjell ligger ved Hardangerviddas port, og dermed er du aldri langt unna fantastisk turterreng i nordens største nasjonalpark.
Veggli sentrum ligger ca. 13 km unna, med dagligvarehandel, bakeri, sportsbutikk med det lille ekstra, vertshus og flott aktivitetspark for barn.
Det er muligheter for leie av kontor og møterom på dags eller langtidsbasis i området, og vi har tilgang til svømmehall og treningsfasiliteter på bygdas folkehøyskole, Idrettsskolen Numedal Følehøyskole.
Generelt
Leie ut hytta?
Det ligger et stort potensiale i å kunne tjene gode penger på å leie ut hytta i de periodene du ikke bruker den selv. Struktur og planlegging av egen bruk, kan gjøre at andre får gleden av å leie hytten når den ellers ville stått ubrukt.
Drømmehytta Numedal kan bistå sine hyttekunder med utleie for de som ønsker dette. Alt det praktiske rundt utleie, fra nøkkelutlevering, innsjekk/utsjekk, utvask, til snørydding etterfylling av ved osv.
Adkomst/Tomteforhold
Hytte med sjel og kvalitet.
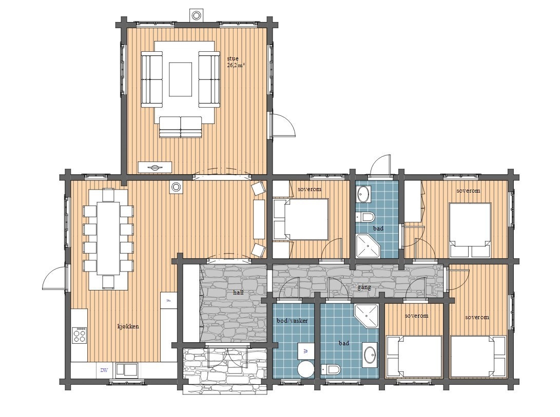
I denne hytta spares det ikke på plassen. Med 160 m2 bebygd areal over et plan, er det nok av plass til menneskene du vil skape uforglemmelige minner sammen med.
Hytta leveres med Daikin luft til luft varmepumpe, som reduserer strømforbruket vesentlig, opp mot 30- 40% er vår erfaring.
Den luftige romfølelsen og store takhøyden, preget av eksklusive materialvalg og flott finish, gir seg ummiddelbart til kjenne når du trer inn i den store hallen. Her er det god plass for garderobeløsning og møblering. Fra hallen ser du forbi skiferpeisen på kjøkkenet, inn i stuen til nok en skiferpeis og store vinduer som rammer inn den flotte utsikten mot fjellene i vest. Det store kjøkkenet, med delikat innredning fra Kistefos Møbler, har plass for langbord hvor man kan nyte utsikten via store vinduer, akkompagnert av levende flammer fra kjøkkenets egne skiferpeis. Ønsker du morgenkaffen ute, har selvfølgelig kjøkkenet egen terrassedør.
Den store stuen, med peis og store vinduer med lav brystning, gir deg følelsen av å nesten sitte ute i naturen.
I tillegg til det romslige hovedbadet, har master soverom et eget bad. Begge badene med skiferfliser på gulv og i dusjnisje, og med herdet glassvegger tilpasset av glassmester. Det er plass til vaskemaskin og tørketrommel på det kombinerte teknisk- og vaskerommet.
Vi bruker Eiendomsmegler 1 v/ Lars Martin Nilsrud på kontrakt og oppgjør!
Innhold
Standard
Hytta er utelukkende laftet med åttetommeres furu av høyeste kvalitet og ligger på eiet tomt. Kjøkken og baderom er levert av kvalitetsleverandøren Kistefos Møbler, mens peiser og piper er murt i Oppdal skifer. I tillegg er det brukt en en-stavs eikeparkett på gulv, og innerdører i noe så eksklusivt som massiv eik i dørblad og karmer. På gulv i hall er det lagt Oppdal bruddskifer, og for å fullføre kvalitet og de ekte valgene, har vi lagt silkebørstet Oppdal skifer på badene. Dusjvegger plassbygget av glassmester i 8 mm herdet glass, og designarmaturer i sort matt fra Tapwell, understreker at her har vi valgt kvalitet og ekte vare.
Vi som eier og driver Drømmehytta Numedal, har selv hytter midt blant våre kunder her på Vegglifjell, og tilbringer så mye tid vi kan i fjellheimen. Dermed kjenner vi både området, mennesken og hyttene vi bygger svært godt. Vår tilstedeværelse og tilgjengelighet gjør at vi er her forkundene våre, og vi tilbyr hjelp til store og små oppdrag,
Vesentlige opplysninger
Ta kontakt med megler for komplett informasjon
Nærområdet
DRØMMEHYTTA NUMEDAL AS
Annonsene kan være mangelfulle i forhold til lovpålagt opplysningsplikt. Før bindende avtale inngås oppfordres interessenter til å innhente komplett informasjon fra meglerforetaket, selger eller utleier.


















































