Bildegalleri

fasade
Inaktiv
1 rom ledig i ny leilighet med 3 soverom ledig fra 1. august -Nedre Grilstadkleiva -
- Månedsleie
- 7 000 kr
- Depositum
- 14 000 kr
Nøkkelinfo
- Primærrom
- 65 m²
- Boligtype
- Rom i bofellesskap
- Soverom
- 3
- Etasje
- 1.
- Leieperiode
- 01.07.2025
- Bruttoareal
- 65 m²
- Energimerking
- A - Gul
Fasiliteter
Delvis møblert
Barnevennlig
Bredbåndstilknytning
Moderne
Rolig
Sentralt
Utsikt
Turterreng
Beskrivelse
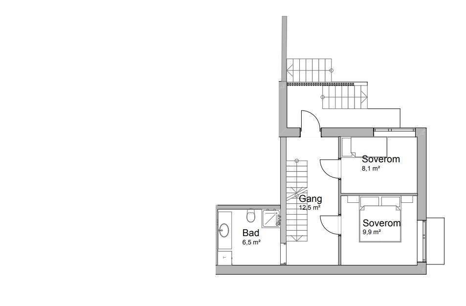
Velkommen til den nyoppførte utleieleiligheten på Nedre Grilstadkleiva! 1 rom ledig i hyggelig jentekollektiv.
Med tre romslige soverom, en åpen kjøkken/stueløsning, to etasjer, rikelig med plass, bad og en romslig gang med god plass til oppbevaring.
Bygget med høy kvalitet og ferdigstilt i juni 2024.
Noe å trekke frem:
- Kort vei til sentrum
- Turmulighet rett utenfor døren (ladestien)
- Kjøpesenter rett ved (2min spasering)
- Gode bussforbindelser
- Badestrand og parkområdet
- Restaurant / bar ved Grilstad Marina (Flipper)
- Rolig området
Med tre romslige soverom, en åpen kjøkken/stueløsning, to etasjer, rikelig med plass, bad og en romslig gang med god plass til oppbevaring.
Bygget med høy kvalitet og ferdigstilt i juni 2024.
Noe å trekke frem:
- Kort vei til sentrum
- Turmulighet rett utenfor døren (ladestien)
- Kjøpesenter rett ved (2min spasering)
- Gode bussforbindelser
- Badestrand og parkområdet
- Restaurant / bar ved Grilstad Marina (Flipper)
- Rolig området
NB: Knappen for å vise hele beskrivelsen har kun en visuell effekt.
NB: Knappen for å vise hele beskrivelsen har kun en visuell effekt.
Visning
visning etter avtale
Trenger du en kontrakt?
- Utfylt kontrakt med opplysninger fra annonsen
- Digital signering
- Gratis tjeneste
- Godkjent av Forbrukerrådet
Nærområdet
Annonsene kan være mangelfulle i forhold til lovpålagt opplysningsplikt. Før bindende avtale inngås oppfordres interessenter til å innhente komplett informasjon fra meglerforetaket, selger eller utleier.


















