Bildegalleri

Åsen 70 Justert perspektiv 1
Inaktiv
Torset Hyttegrend
Prosjekterte, nøkkelferdige kvalitetshytter inkludert eiendomstomt
Prisantydning2 990 000 kr
Nøkkelinfo
- Beliggenhet
- På fjellet
- Boligtype
- Hytte
- Eieform
- Eier (Selveier)
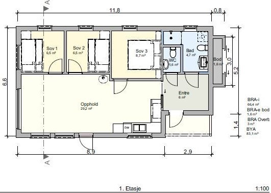
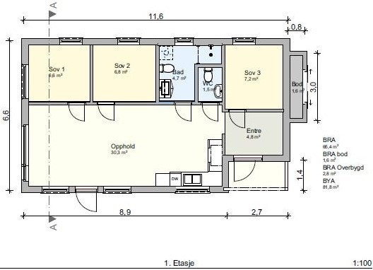
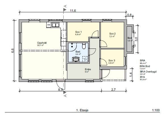
- Internt bruksareal
- 66 m² (BRA-i)
- Bruksareal
- 69 m²
- Tomteareal
- 1 100 m² (eiet)
- Soverom
- 3
- Meter over havet
- 830
Fasiliteter
Bilvei frem
Lademulighet
Peis/Ildsted
Utsikt
Fiskemulighet
Innlagt strøm
Innlagt vann
Turterreng
Visning
Visning etter avtale
Om eiendommen
Hyttemodellene som tilbys er modeller som er utviklet i samarbeid med MAXBO RJUKAN og har et bruksareal (BRA) på i underkant av 70 m2. Sammen med våre faste og dyktige underentreprenører har vi også klart å få til kostnadseffektive løsninger på alt fra infrastrukturen i området til den minste detalj i hyttene, uten at det har gått på bekostning av kvaliteten.
Alle hyttene bygges etter kravene i TEK 17 . Vi benytter oss i stor grad av ferdige konstruksjonsløsninger. Dette er en kostnadseffektiv løsning som gir en rasjonell og kortere byggeperiode, reduserer avfallshåndteringen og har en positiv effekt knyttet til miljøbelastning og HMS på byggeplass. Alt av byggesystemer er produsert i Norge.
Alle hyttene bygges etter kravene i TEK 17 . Vi benytter oss i stor grad av ferdige konstruksjonsløsninger. Dette er en kostnadseffektiv løsning som gir en rasjonell og kortere byggeperiode, reduserer avfallshåndteringen og har en positiv effekt knyttet til miljøbelastning og HMS på byggeplass. Alt av byggesystemer er produsert i Norge.
Adkomst
SKIRVEDALEN - destinasjonsnavnet på utbyggingsområdet i seterdalene Lure -, Nystaul - og Skirvedalen - ligger på solsiden av Vegglifjell og er Tinn kommunes nest største utbyggingsområde. Utbyggingen er basert på solid lokal forankring og med stor respekt for naturen er det utviklet et unikt hytteområde ved foten av Hardangervidda. Det er idag bygget ca. 750 hytter som ligger godt tilpasset i terrenget. Løypelaget står for oppkjøring av ca. 90 km flotte, maskinpreparerte skiløyper. Området innbyr også til lange, herlige skiturer innover Hardangervidda. Om sommeren finnes et vell av turmuligheter, til fots eller på sykkel og fjellørreten vaker i umiddelbar nærhet. Aktivt seterliv krydrer tilværelsen og det foreligger planer for økt aktivitet på Skirvedalen Fjellstue.
Skulle man ønske en avveksling fra dette ligger Rjukan by og Gaustaområdet 3/4 time unna med alle sine aktiviteter og opplevelser.
Sentralt i området ligger våre to hyttegrender - BLØKARJOET HYTTEGREND og TORSET HYTTEGREND. Hyttegrendene er planlagt med store grønne arealer og flere ulike tomtestørrelser, alle godt tilpasset terrengets beskaffenhet. KORT SAGT - HYTTETOMTER FOR ENHVER SMAK.
Skulle man ønske en avveksling fra dette ligger Rjukan by og Gaustaområdet 3/4 time unna med alle sine aktiviteter og opplevelser.
Sentralt i området ligger våre to hyttegrender - BLØKARJOET HYTTEGREND og TORSET HYTTEGREND. Hyttegrendene er planlagt med store grønne arealer og flere ulike tomtestørrelser, alle godt tilpasset terrengets beskaffenhet. KORT SAGT - HYTTETOMTER FOR ENHVER SMAK.
Beskaffenhet
Når vi bruker ordet NØKKELFERDIG, ja så er det faktisk NØKKELFERDIG. Tomt med infrastruktur, gravearbeider og støpt plate er inkludert. I tillegg så et det kun ett foretak som man kontraktsmessig forholder seg til.
Er det av interesse å utføre noe egeninnsats for å virkeliggjøre hyttedrømmen så er det fullt mulig.
Er det av interesse å utføre noe egeninnsats for å virkeliggjøre hyttedrømmen så er det fullt mulig.
Standard
Når det gjelder bygningen så består grunnpakken av:
Plate på mark, veggelementer med malte vinduer i standard farge, d-fals kledning utvendig og glattpanel innvendig. Som takkonstruksjon benyttes takstoler og overlagspapp som taktekking. Parkett med parkettunderlag i tørre rom. Glatte, massive innerdører og Solid ytterdør. Vedovn tilpasset bygningsvolumet med toppmontert stålpipe. Våtromsplater på vegg og våtromsbelegg på gulv i bad og WC. Våtromsbelegg på gulv i entre/vindfang.
Norema kjøkkeninnredning med hvitevarepakke, baderomsinnredning (kampanjeprodukter) og garderobeskap i entre/vindfang.
Egen, spesifisert leveransebeskrivelse fra rørlegger og elektriker.
Med unntak av dører og vinduer er ikke overflatebehandling inkludert i grunnpakken. Vi har imidlertid et utall muligheter til tilvalg og fleksible løsninger på alt fra takkonstruksjon til interiør. Her er det bare å plukke fra øverste hylle.
Det er noe avvik mellom grunnpakken og billedserien som medfølger annonsen, bl. a. så er ikke vegghengt bod inkludert i grunnpakken. Møbler er inntegnet kun som illustrasjon.
Plate på mark, veggelementer med malte vinduer i standard farge, d-fals kledning utvendig og glattpanel innvendig. Som takkonstruksjon benyttes takstoler og overlagspapp som taktekking. Parkett med parkettunderlag i tørre rom. Glatte, massive innerdører og Solid ytterdør. Vedovn tilpasset bygningsvolumet med toppmontert stålpipe. Våtromsplater på vegg og våtromsbelegg på gulv i bad og WC. Våtromsbelegg på gulv i entre/vindfang.
Norema kjøkkeninnredning med hvitevarepakke, baderomsinnredning (kampanjeprodukter) og garderobeskap i entre/vindfang.
Egen, spesifisert leveransebeskrivelse fra rørlegger og elektriker.
Med unntak av dører og vinduer er ikke overflatebehandling inkludert i grunnpakken. Vi har imidlertid et utall muligheter til tilvalg og fleksible løsninger på alt fra takkonstruksjon til interiør. Her er det bare å plukke fra øverste hylle.
Det er noe avvik mellom grunnpakken og billedserien som medfølger annonsen, bl. a. så er ikke vegghengt bod inkludert i grunnpakken. Møbler er inntegnet kun som illustrasjon.
Vesentlige opplysninger
Offentlige avgifter knyttet til kjøp av tomt, byggesaksgebyrer mv. er ikke inkludert. Skirvedalsområdet har private vann - og avløpsanlegg.
NB: Knappen for å vise hele beskrivelsen har kun en visuell effekt.
NB: Knappen for å vise hele beskrivelsen har kun en visuell effekt.
Ta kontakt med selger for komplett informasjon
Nærområdet
Annonsene kan være mangelfulle i forhold til lovpålagt opplysningsplikt. Før bindende avtale inngås oppfordres interessenter til å innhente komplett informasjon fra meglerforetaket, selger eller utleier.

















