Bildegalleri

Sentrale kontorlokaler i Horten sentrum - Storgata 26/28, hele eller deler av 2. og/eller 3. etg. fra 240 - 800m2
Nøkkelinfo
- Areal
- 240 - 800 m²
- Tomteareal
- 1 377 m²
- Etasje
- 2.
- Byggeår
- 1986
- Overtakelse
- 01.03.2024
Type lokale
Fasiliteter
Om eiendommen
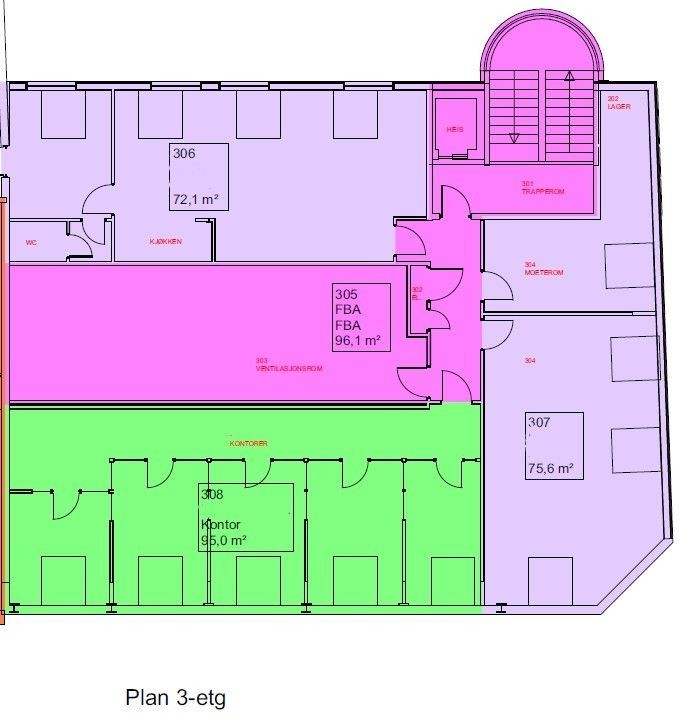
Etasjene kan leies ut samlet, eller hver for seg. Se tegning i bildene.
Sentrale kontorlokaler i Storgata i Horten. Parkeringsplasser kan leies ca 100 meter unna eiendommen.
Felles ventilasjonsanlegg . Varme via vannbåren fjernvarme i radiatorer i 2.etg. Varme via panelovner i 3.etg.
Strøm, ventilasjon, avfall og øvrige vedlikeholdskostnader er over felleskostnader. Fordeles etter gitt brøk. Avregnes etterskuddsvis påfølgende år.
Det er heis i felles trappegang. Tredje etasje har et HC-toalett.
Felles inngangsparti på sørsiden av bygget. Adgangskontroll med kort.
Lokalene leies ut "as is". En god del møbler som er på bildene i annonsen kan inkluderes etter nærmere avtale. Også konferansemøbler og utstyr.
Eventuelle tilpasninger må prosjekteres og bekostes av leietaker etter godkjennelse fra utleier.
Etasjene har varierende standard. Pris avhenger av størrelse og leiebehov. Rimelig prisklasse for flotte innflyttningsklare kontorlokaler.
Vi er interessert i både kort og lengre leiekontrakter, også løpende med 3 måneders gjensidig oppsigelse.
Ta kontakt for visning.
Matrikkelinformasjon
Visning
Ta kontakt for å avtale visning.POLARISE PROPERTY AS
Nærområdet
Annonsene kan være mangelfulle i forhold til lovpålagt opplysningsplikt. Før bindende avtale inngås oppfordres interessenter til å innhente komplett informasjon fra meglerforetaket, selger eller utleier.
























