Bildegalleri
Velkommen til Skåfonnvegen 6
Vågslid
Skåfonnvegen, Vågslid
Skåfonnvegen 6
Prisantydning6 350 000 kr
Kort om prosjektet
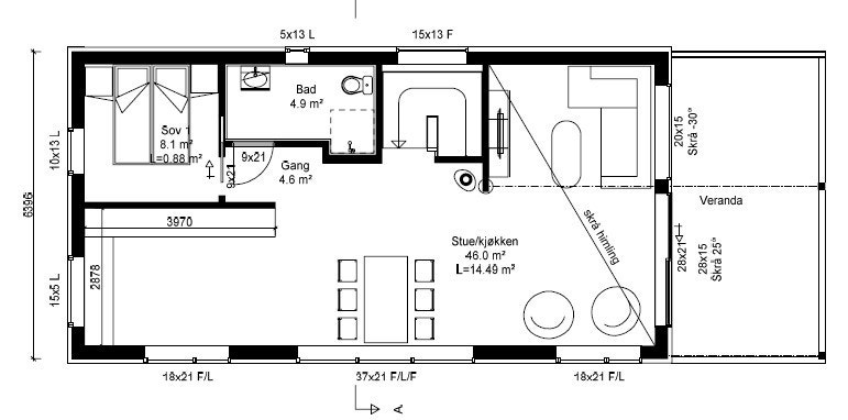
Velkommen til Skåfonnvegen 6 og Skåfonnvegen 8. Her skal det bygges 2 flotte, innholdsrike og arealeffektive hytter som har fin utsikt til Eivindsbuvatnet. Merk; Tomtene er ferdig opparbeidet. Ved en avgjørelse før sommeren er det muligheter for innflytting til julen 2025!
Prosjektets status
Planlegging
Gjennomført
Salgsstart
Salget er i gang!
Byggestart
Etter signert kontrakt
Overtakelse
Etter nærmere avtale
Nøkkelinfo
- Beliggenhet
- På fjellet
- Boligtype
- Hytte
- Etasje
- 2
- Soverom
- 4
- Primærrom
- 124 m²
- Bruksareal
- 174 m²
- Tomt
- Eiet
Fasiliteter
Alpinanlegg
Balkong/Terrasse
Bilvei frem
Garasje/P-plass
Offentlig vann/kloakk
Peis/Ildsted
Utsikt
Innlagt strøm
Innlagt vann
Turterreng
Visning
Ta kontakt for å avtale visning.Nyttige lenker
Nærområdet
TG Bygg AS
Annonsene kan være mangelfulle i forhold til lovpålagt opplysningsplikt. Før bindende avtale inngås oppfordres interessenter til å innhente komplett informasjon fra meglerforetaket, selger eller utleier.



