Bildegalleri

Velkommen til denne store flotte eiendommen nær Valle sentrum!
Solgt
Valle
Nær sentrum: Flott romslig enebolig på 3 plan og stor garasje m/verksted. Kommunefordeler!
Prisantydning3 590 000 kr
Nøkkelinfo
- Boligtype
- Enebolig
- Eieform
- Eier (Selveier)
- Soverom
- 5
- Internt bruksareal
- 248 m² (BRA-i)
- Bruksareal
- 324 m²
- Eksternt bruksareal
- 76 m² (BRA-e)
- Balkong/Terrasse
- 43 m² (TBA)
- Etasje
- 3
- Byggeår
- 1998
- Energimerking
- D - Gul
- Rom
- 7
- Tomteareal
- 1 178 m² (eiet)
Om boligen
Sørmegleren v/ Gro Lillian Netland Hulløen presenterer denne flotte eiendommen i Valle!
Kommunen er uten boplikt og har mange fordeler til innflyttere bl.a. gratis barnehage!
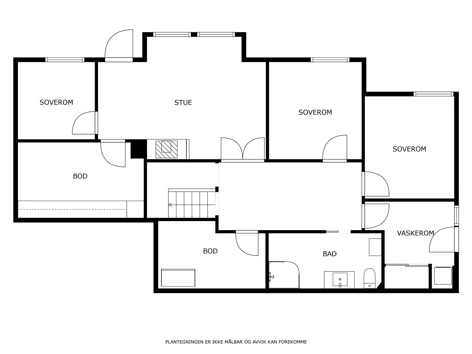
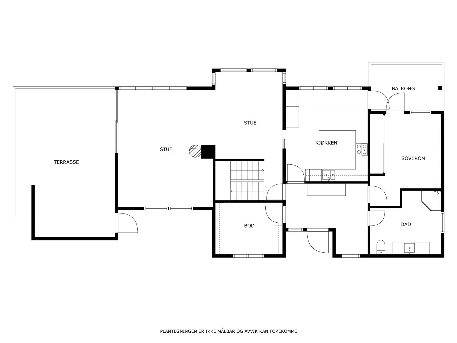
Flott enebolig over tre plan med bl.a. 2 bad, 2 stuer og 5 soverom samt kontor og rom på loftet.
Garasje med plass til 2 biler og verksted i u.etasjen.
Eiendommen ligger i idylliske og naturskjønne rolige omgivelser med fin utsikt mot sentrum og nedover dalen.
Kun få minutters kjøretur fra Valle sentrum med dagligvare, skole, barnehage og idrettshall.
Det er fine uteområder med hage, flere plattinger og romslig tun med biloppstillingsplasser.
Kun et par minutters gange på sti til den velkjente Honnevje badeplass og frisbeebane.
Ca 20 min. kjøring til Brokke og 40 min. til Hovden.
Velkommen til visning!
Kommunen er uten boplikt og har mange fordeler til innflyttere bl.a. gratis barnehage!
Flott enebolig over tre plan med bl.a. 2 bad, 2 stuer og 5 soverom samt kontor og rom på loftet.
Garasje med plass til 2 biler og verksted i u.etasjen.
Eiendommen ligger i idylliske og naturskjønne rolige omgivelser med fin utsikt mot sentrum og nedover dalen.
Kun få minutters kjøretur fra Valle sentrum med dagligvare, skole, barnehage og idrettshall.
Det er fine uteområder med hage, flere plattinger og romslig tun med biloppstillingsplasser.
Kun et par minutters gange på sti til den velkjente Honnevje badeplass og frisbeebane.
Ca 20 min. kjøring til Brokke og 40 min. til Hovden.
Velkommen til visning!
NB: Knappen for å vise hele beskrivelsen har kun en visuell effekt.
NB: Knappen for å vise hele beskrivelsen har kun en visuell effekt.
Salgsoppgaven beskriver vesentlig og lovpålagt informasjon om eiendommen
Se komplett salgsoppgaveNyttige lenker
Nærområdet
Eiendomsmegler Norge Kristiansand
Det viktigste stedet i Norge er der du bor
Prisstatistikk
Øyvegen 77
3 597 klikk
på annonsen
14 475 kr
prisantydning per kvadratmeter
Prisfordeling
Pris per m² ligger 6 475 kr over snittet for eneboliger i Valle.
Grafen viser antall eneboliger solgt i Valle siste året fordelt på pris per m² - totalt 2 eneboliger
Antall boliger
Kvadratmeterpris tilsvarer prisantydning pluss fellesgjeld per kvadratmeter (p-rom eller BRA-i). Prisene i grafen er avrundet til nærmeste 1000 kr.
Annonseinformasjon
| FINN-kode | 340307361 |
|---|---|
| Sist endret | 01. mars 2024 15:45 |
| Referanse | SORM13.23115 |
Annonsene kan være mangelfulle i forhold til lovpålagt opplysningsplikt. Før bindende avtale inngås oppfordres interessenter til å innhente komplett informasjon fra meglerforetaket, selger eller utleier.




























































