Bildegalleri

Utsiktsleilighet på Gausta
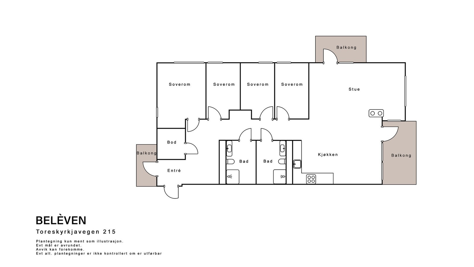
Nyoppført og usjenert 5-roms endeleilighet med nydelig utsikt over fjelltoppene i eksklusive Gausta Residence
Prisantydning7 000 000 kr
- Omkostninger
- 176 240 kr
- Totalpris
- 7 176 240 kr
- Kommunale avg.
- 16 846 kr per år
- Felleskost/mnd.
- 4 238 kr
- Fellesformue
- 15 738 kr
Nøkkelinfo
- Beliggenhet
- På fjellet
- Boligtype
- Leilighet
- Eieform
- Selveier
- Internt bruksareal
- 116 m² (BRA-i)
- Bruksareal
- 119 m²
- Tomteareal
- 4 771 m² (eiet)
- Byggeår
- 2022
- Soverom
- 4
- Rom
- 5
- Sengeplasser
- 8
- Energimerking
Fasiliteter
Balkong/Terrasse
Garasje/P-plass
Peis/Ildsted
Turterreng
Utsikt
Alpinanlegg
Bilvei frem
Lademulighet
Balansert ventilasjon
Visning
Ta kontakt for å avtale visning.Husk å lese komplett salgsoppgave før visning. Bestill komplett, utskriftsvennlig salgsoppgave.
VisningspåmeldingOm boligen
Den nyoppførte endeleiligheten byr på en unik utsikt mot majestetiske fjelltopper og er perfekt for deg som elsker natur og friluftsliv. Boligen har fire romslige soverom, to bad/wc og egen parkeringsplass i garasje. Store vindusflater i flere retninger slipper inn rikelig med lys og gir en spektakulær panoramautsikt.
Leiligheten holder høy standard med moderne design og gode, funksjonelle løsninger. Stuen er et naturlig samlingspunkt med peis som skaper en lun atmosfære, og store glassdører leder ut til en romslig balkong hvor du kan nyte frisk fjelluft og vakker utsikt.
En gjennomført og attraktiv bolig med ski in ski out i umiddelbar nærhet og fantastiske naturopplevelser rett utenfor døren.
Leiligheten holder høy standard med moderne design og gode, funksjonelle løsninger. Stuen er et naturlig samlingspunkt med peis som skaper en lun atmosfære, og store glassdører leder ut til en romslig balkong hvor du kan nyte frisk fjelluft og vakker utsikt.
En gjennomført og attraktiv bolig med ski in ski out i umiddelbar nærhet og fantastiske naturopplevelser rett utenfor døren.
NB: Knappen for å vise hele beskrivelsen har kun en visuell effekt.
NB: Knappen for å vise hele beskrivelsen har kun en visuell effekt.
Salgsoppgaven beskriver vesentlig og lovpålagt informasjon om eiendommen
Se komplett salgsoppgaveNærområdet
Belèven Eiendomsmegling
Annonsene kan være mangelfulle i forhold til lovpålagt opplysningsplikt. Før bindende avtale inngås oppfordres interessenter til å innhente komplett informasjon fra meglerforetaket, selger eller utleier.

























