Bildegalleri

Velkommen til Svartskardvegen 212A, 950 moh.
KVITFJELL VEST -Eksklusiv & særegen fjellhytte 950 moh. Herlig utsikt. Ski inn/ut. 2 bad, 3(4)sov, terrasse, 2 balkonger
- Omkostninger
- 6 090 kr
- Totalpris
- 8 906 090 kr
- Kommunale avg.
- 13 800 kr per år
- Felleskost/mnd.
- 473 kr
Nøkkelinfo
- Beliggenhet
- På fjellet
- Boligtype
- Annet fritid
- Eieform
- Eier (Selveier)
- Internt bruksareal
- 110 m² (BRA-i)
- Bruksareal
- 110 m²
- Balkong/Terrasse
- 17 m² (TBA)
- Tomteareal
- 1 393 m² (festet)
- Festeavgift
- 2 377 kr
- Soverom
- 3
- Rom
- 4
Fasiliteter
Om eiendommen
Ta kontakt for å avtale visning!
Ta kontakt allerede i dag for å avtale visning.
Velkommen til Vinterro og chalet 1B
Privatmegleren v/Hallvard B. Klingen har gleden av å presentere chalet 1B - en særegen og meget gjennomført fjellhytte i det eksklusive fritidskonseptet Vinterro. Hytta er ferdigstilt og innflyttingsklar umiddelbart. Skreddersydde løsninger, påkostede innredninger og belysning fra Flos.
Noen høydepunkter fra hytta:
- Herlig utsikt. Utsyn til spektakulær og rå natur, Kvitfjelltoppen og fjellandskapet
- Ferdigstilt og innflyttingsklar fjellhytte av høy kvalitet
- Spesialtilpasset og velutstyrt kjøkken med skreddersydd innredning, oppgradert med stor kjøkkenøy og integrerte hvitevarer fra Miele
- Generøse vindusflater og god takhøyde, opp mot 3,8 meter i stue og kjøkken
- Oppholdssonen i 2. etasje er gjennomgående, med balkong i hver ende
- Stemningsfull peisinnsats fra Rais
- 2 delikate bad med skreddersydd innredning i treverk
- 3 gode soverom
- Hovedsoverom med tilknyttet bad og utgang til stor markterrasse
- Flott 1-stavs eikeparkett og moderne limtrepanel
- Tidløse storformats fliser med gulvvarme
- Luft-til-luft varmepumpe fra Mitsubishi (wifi/APP/fjernstyres)
- Innbydende entré med doble skyvedører inn til sportsbod
- Sportsbod med plassbygd innredning for oppbevaring av klær og utstyr samt benk for preparering av ski
- Fantastisk beliggenhet på Kvitfjell Vest, 950 moh., med ski inn/ut til både alpinanlegget og langrennsløyper
Prisbelønnede R21 arkitekter har tegnet bygningsvolumer som skiller seg ut i form, farge, materialitet og innhold. Fritidsboligens plassering er basert på å gi en opplevelse av å ligge alene i naturen, men samtidig i sosialt samspill. Hyttene er typiske vertikaldelte tomannshytter, men med et moderne uttrykk og gjennomtenkte planløsninger.
Skreddersydde løsninger, påkostet innredning, fokus på detaljer og delikate fargekombinasjoner gir en stilsikker og eksklusiv atmosfære. Her får man høy bokomfort og maksimal utnyttelse av arealet!
Besøk prosjektets hjemmeside for boligvelger:
Besøk hjemmesiden www.vinterro950.no for mer informasjon.
Her finnes også hyttevelger og prisoversikt.
Fantastisk beliggenhet på Kvitfjell!
I hjertet av Gudbrandsdalen ligger Kvitfjell. En sjelden perle i den norske fjellheimen. Alpinbakker for skientusiaster - og milevis med langrennsløyper og sykkelstier i Peer Gynts rike. Kvalitetsmat på idylliske skistuer. Vakker utsikt mot Rondane nasjonalpark i nord og den frodige Gudbrandsdalen i sør. Heldige er de som kan tilbringe fritiden sin på Kvitfjell.
Prosjektet Vinterro ligger på 950 meters høyde, rett ved skibakker og langrennsløyper på Kvitfjell Vest. Rett utenfor Vinterro venter 600 kilometer med langrennsspor i høyfjellsterreng. Her på vestsiden står du på ski rett ut i et eldorado av skibakker. Det er røde og grønne løyper for alle nivåer, utfordrende skogskjøring, og et fint område med rullebånd og skålheis for de minste alpinistene. På fjellviddene i Peer Gynts rike knytter skiløypene mellom Gålå, Skeikampen og Kvitfjell seg sammen og gjør området til et vintereventyr også for langrennsløpere.
Sommer og høst er Vinterro et perfekt utgangspunkt for sykling, fisking og vandring til fjells, og turen kan gjerne starte fra hyttedøra. I Peer Gynts rike kan du gå lange fjellturer eller sykle milevis på sti og grus. Tar du turen til Rondane nasjonalpark og Jotunheimen kan du bruke hele sommeren på utallige fjellturer, både av den enkle og av den krevende sorten.
Kvitfjell er ikke bare stedet for de sporty skidagene og de fine fjellturene, det har også blitt et yndet sted for gode matopplevelser. Sving inn til Tyrihanstunet for hjemmelaget mat i idylliske omgivelser. Sus videre på ski til for eksempel Fjellbistroen eller Fôr - eller ta gondolen over til Varden hvor det serveres luksuslunsj og nydelig kaffe. Avslutt dagen på Koia med gourmetpølser og ekte østerisk afterski midt i den norske fjellheimen.
Kvitfjell alpinanlegg er skientusiastenes vinterparadis. Det er ikke uten grunn at mange profesjonelle skikjørere, og skiklubber fra hele Østlandet, trekker mot Kvitfjell for trening. Skianlegget har 34 kilometer preppede alpinløyper, to terrengparker, to barneområder og 854 høydemeter fra dal til fjell.
Standard, Vinterro Chalet 1B
Entré:
Romslig og meget innbydende entré, med lekre gulvfliser fra italienske Cæsar Ceramiche i serien Core, farge Soot (mørk grå) og i format 60x60 cm samt sorte spotter fra Flos. Mellom entréen og sportsboden er det doble skyvedører som i åpen posisjon gir et stort og praktisk omkledningsareal, samt plass til å preparere ski eller justere på en sykkel.
Stue:
En lys og varm stue på kalde vinterdager, med fantastisk utsikt, generøs takhøyde og rause vindusflater samt en stilfull peisinnsats fra Rais.
Stue og kjøkken er lagt til andre etasje for å gi en lys og luftig atmosfære. Dette deilige rommet består av en gjennomgående oppholdssone med skråtak og inntil 3,8 meters takhøyde, store vinduer, balkong i hver ende - og et generøst kjøkkenvindu i langfasaden. De store vindusarealene vil sammen med den rause takhøyden medfører at lyset i oppholdssonen skaper ulike atmosfærer døgnet gjennom. Belysning fra Flos i himling over trapp og på begge sider av stuen.
Kjøkken:
Kjøkkenet er for mange navet i fritidsboligen. Her samles man til helgekos eller fest. Den skreddersydde kjøkkeninnredningen skaper den perfekte rammen uansett anledning. Moderne og tidløst design kombinert med gjennomgående meget god kvalitet, funksjonelle løsninger og en fantastisk materialpalett, gir deg et kjøkken med stor bruksglede og lang levetid. Det meget rause kjøkkenet er levert av Bærum Kjøkkensenter, med integrerte hvitevarer fra Miele: stekeovn i høyskap, 80 cm induksjonsplatetopp med integrert benkeventilator, oppvaskmaskin og kjøl/fryseskap. Ettgreps, sort kjøkkenbatteri samt sort/mørk, underlimt vask type Blanco Subline. Belysning fra Flos både over kjøkkenbenk og over kjøkkenøy.
Baderom:
To delikate bad beliggende i 1. etasje, hvorav ett er tilknyttet hovedsoverommet. Badene er levert med baderomsinnredning i heltre ask og Kuma servanttopp, skreddersydd av Bærum Kjøkkensenter. Både baderommet ved inngangen og baderommet tilliggende hovedsoverommet har tidløse storformatsfliser på gulv. Det er flislagt også på veggene i selve dusjsonen, mens det på de øvrige veggene og i himlingen er lagt lyst panel av ask.
Begge baderom har sort servantbatteri, sort dusjbatteri med toppdusj og håndholdt løsning, sort toalett med dempesete, samt dusjvegg(er) med sorte profiler/innfestning. Elektriske varmekabler i flisgulv samt sorte LED downlights med tilbaketrukket lyskilde. Det er montert opplegg for vaskemaskin på største bad, som vist på plantegning.
Soverom:
Fritidsboligen byr på tre gode soverom beliggende i 1. etasje, med plass til både stor seng og garderobeløsning. Hovedsoverom med inngang til eget bad og direkte utgang til stor markterrasse. Med limtrepanel i bred dimensjon og i fargen Dobbel Drivved på vegg og i himling, får også soverommene et eksklusivt preg.
Gulv:
Flott 1-stavs eikeparkett i hvitlasert utførelse, type Harmonie Eik Skandinavia. Tidløse italienske fliser på bad, i entré, gang og bod/sportsbod. Det er levert påkostet eiketrapp uten vanger og trinn i hvitlasert utførelse.
Vegger:
Innvendige vegger er levert med limtrepanel i bredde ca. 215 mm beiset i fargen Dobbel Drivved. På baderomsveggene er det lagt lyst panel av ask.
Himling:
Alle himlinger, foruten baderomshimlingene, er levert med limtrepanel i bredde ca. 215 mm beiset i fargen Dobbel Drivved. I baderomshimlinger er det lagt lyst panel av ask.
Garderobe:
Enheten er oppgradert med plassbygget garderobeløsning i sportsbod.
Ventilasjon:
Det er montert ventilasjonsaggregat med varmegjenvinner i boligen. Aggregat er plassert på kneloft. Kjøkkenet har benkeventilator integrert i induksjonstoppen.
Sportsbod og ski-/sykkelbod:
En romslig og praktisk sportsbod er integrert i boligen og ligger i direkte tilknytning til entréen.
Det medfølger en utvendig ski-/sykkelbod til hver enhet slik det fremkommer av utomhusplanen i prospektet. Takhøyde inntil 1,90 meter. Sykkelbodens gulvareal utgjør ca. 2,5 kvm.
Oppgradert lyspakke fra Flos:
Vinterro Chalet 1B er påkostet med en lekker og moderne lyspakke fra Flos. Det er levert belysning i samtlige rom:
- Glo-ball C1 i himling i de to minste soverommene.
- 14 stk. innfellbare spotter type Find Me 0 (sort) fordelt på entre, gang og hovedsoverom.
- 11 stk. Easy Kap 80 downlights (sort) fordelt på baderommene og sportsboden.
- 1 stk. taklampe type IC S2 (sort) i himling over trapp.
- 4 stk. Light Shadow (4x4 sort) i himling over kjøkkenbenk.
- 3 stk. pendler type String Light (sort) i himling over kjøkkenøy.
- 2 meter sort spotskinne ved yttervegg (øst) på hver side av kjøkkenet/stuen. Hver spotskinne leveres med 3 stk. UT spotter.
- 4 stk. spotter type UT Surface (sort) i himling ved terrassedør syd (2 stk.) og nord (2 stk.).
Oppdragsnummer
304-23-0012
Selger/Utbygger
Kvitfjell Chalet AS v/ Veslefrikk Eiendom AS
Eiendomstype
Fritidseiendom
Eierform
Selveier
Betegnelse
Bruksenhetsnummer: 1B
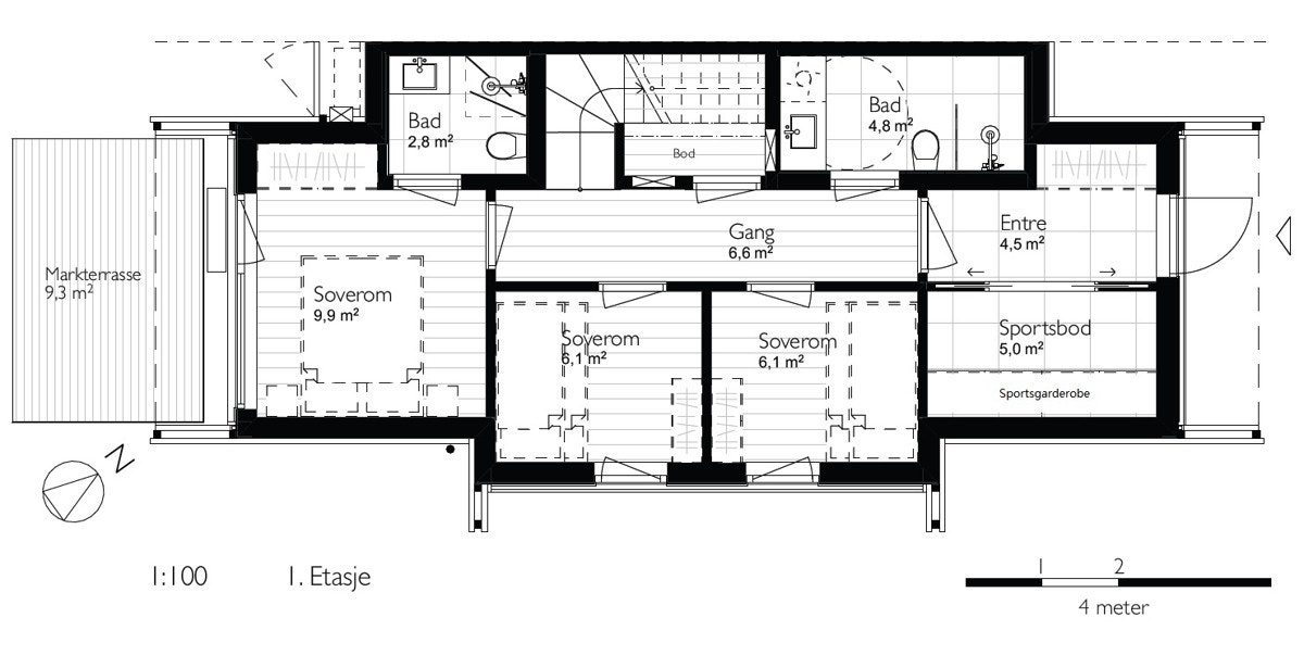
Arealer og fordeling per etasje
Totalt BRA Hyttetype 1 består av:
- BRA-i (internt bruksareal): 110,60 kvm
Antall rom
4
Tomtetype/areal
Festet tomt / 1393 kvm
Innhold
1. etasje: Entré, sportsbod, 3 soverom, 2 bad, gang, bod under trapp og utgang markterrasse.
2. etasje: Stue med utgang balkong, kjøkken i åpen løsning og spisestue med utgang balkong. Luke til kaldloft for ekstra lagring.
I tillegg medfølger 1 stk. bod for ski og sykkel.
Oppvarming
Boligen er hovedsakelig oppvarmet med varmepumpe i 2. etasje. Varmepumpen kan betjenes med App over WIFI/4G.
Peisinnsats i 2. etasje.
Boligen er for øvrig oppvarmet med elektriske varmekabler i begge baderom, gang, entré og tilliggende sportsbod/bod. Det er elektrisk gulvvarme i hele plan 2.
Parkering / Garasje
Det medfølger 1 stk. parkeringsplass med ladeboks for el-bil.
Det leveres totalt 13 stk. gjesteparkeringsplasser som en del av prosjektet. Se utomhusplan som viser foreløpig fordeling av alle plasser.
Adkomst
Adkomst fra Svartskardvegen.
Oppgjør
Kjøpesum med tillegg av omkostninger skal være disponibelt på meglers klientkonto innen overtagelse. Normalt innebærer dette at fullt oppgjør må være innbetalt på meglers klientkonto senest to virkedager før avtalt overtagelsesdato.
Eventuelle vilkår knyttet til innbetalingen, eksempelvis pantedokument som skal tinglyses til fordel for kjøpers bank, må være megler i hende i god tid før overtagelse kan finne sted.
Finansiering
Kontakt megler for avklaring av finansielle forhold, herunder lån til kjøp av eiendom. Privatmegleren har avtale med Nordea om formidling av lån og andre finansielle tjenester. Privatmegleren mottar godtgjørelse for dette.
Festeavtale
Festetid regnes fra 01.01.2022 og kan kreves regulert i henhold til endringene i SSBs konsumprisindeks og så ofte tomtefestelovgivningen tillater. Se avsnitt om løpende faste kostnader for nærmere informasjon om årlig festeavgift. Rett til innløsning følger av tomtefestelovens bestemmelser. Se for øvrig festekontrakt som er vedlegg til denne salgsoppgave
Adgang til utleie
Eier får full råderett over egen seksjon og kan fritt leie den ut til fritidsboligformål iht. Eierseksjonsloven.
Salgsbetingelser
Fritidsboligen selges etter Avhendingslovens normalbestemmelser, som beskrevet i avhendingslovens §3-2 til §3-6.
Overtagelse
Chalet 1B er innflyttingsklar. Overtagelse etter avtale.
Budgiving
Boligen selges til fastpris.
Alle bud/kjøpetilbud på eiendommen skal være skriftlig og sendes meglerforetaket pr. fax, mail, sms eller via vår "gi bud"-knapp på våre nettsider. Knappen finner du også på Privatmeglerens hjemmeside for prosjektet, se på den enkelte bolig.
Bud/kjøpetilbud må ikke ha kortere akseptfrist enn til kl. 12.00 første virkedag etter siste annonserte visning. Lørdag regnes ikke som virkedag. Bud/kjøpetilbud med kortere frist enn dette kan ikke formidles av megler. Nærmere info om budgiving finner du på egen side sammen med kjøpetilbud/budskjema.
Som budgiver hos Privatmegleren kan du kreve budjournal fremlagt så snart handel er gjennomført.
Innhold i budjournal er lovregulert, og innebærer at budgivere må akseptere at opplysninger om budet kan bli fremlagt for selger, kjøper og øvrige budgivere. Budgiver som ikke blir kjøper, kan kreve kopi av anonymisert budjournal.
Lov om hvitvasking
Megler er underlagt lov om hvitvasking som innebærer plikt til å melde ifra til Økokrim om mistenkelige transaksjoner
Salgsoppgaven beskriver vesentlig og lovpålagt informasjon om eiendommen
Se komplett salgsoppgaveNyttige lenker
Nærområdet

PrivatMegleren Nyeboliger Oslo
Prisstatistikk
Svartskardvegen 212A
på annonsen
prisantydning per kvadratmeter
Prisfordeling
Pris per m² ligger 33 909 kr over snittet for Annen fritid i Ringebu.
Grafen viser antall Annen fritid solgt i Ringebu siste året fordelt på pris per m² - totalt 84 Annen fritid
Antall boliger
Kvadratmeterpris tilsvarer prisantydning pluss fellesgjeld per kvadratmeter (p-rom eller BRA-i). Prisene i grafen er avrundet til nærmeste 1000 kr.
Annonseinformasjon
| FINN-kode | 339640804 |
|---|---|
| Sist endret | 27. jan. 2025 09:54 |
| Referanse | 304230012 |
Annonsene kan være mangelfulle i forhold til lovpålagt opplysningsplikt. Før bindende avtale inngås oppfordres interessenter til å innhente komplett informasjon fra meglerforetaket, selger eller utleier.































































