Bildegalleri

Fantastisk utsikt fra stua! Her får du naturen rett inn. Bilde fra kundetilpasset modell.
Skeikampen - Davos, moderne og romslig! Rett ved skistadion.
- Omkostninger
- 26 875 kr
- Totalpris
- 6 783 875 kr
Nøkkelinfo
- Beliggenhet
- På fjellet
- Boligtype
- Hytte
- Eieform
- Eier (Selveier)
- P-plasser
- 2
- Bruksareal
- 98 m²
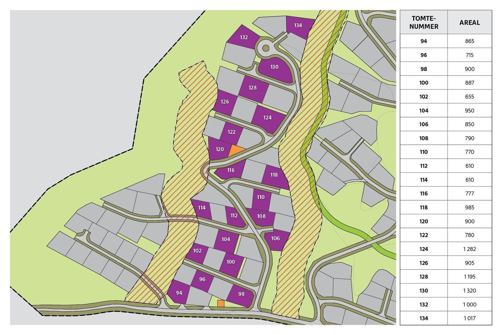
- Tomteareal
- 865 m² (eiet)
- Grunnflate
- 98 m²
- Byggeår
- 2024
- Soverom
- 3
- Meter over havet
- 740
Fasiliteter
Visning
Om eiendommen
Beliggenhet
Kjoslia 4 ligger rett ovenfor den nye skiarenaen på Skeikampen. Dette er et nytt hyttefelt med nærhet til både langrenn og alpint vinterstid og golf, sykling, fotturer etc sommerstid. Området har lett skrånende terreng med fantastisk utsikt mot Skeikampen. Skeiporten med dagligvarer, sport, interiør- og cafe, ligger rett ved avkjøringen til hyttefeltet.
Generelt
Oppdag Davos, en moderne og romslig hyttemodell fra Østlaft, designet for å møte alle dine behov for komfort og kos. Med tre soverom og en praktisk hems, er denne hytten perfekt for familier og vennegjenger som ønsker å skape minner sammen.
Romslige Soverom
Davos tilbyr tre velutstyrte soverom, som gir rikelig plass til både voksne og barn. Hvert soverom er designet for å gi en avslappende atmosfære, med muligheter for personlig preg.
Lys og Innbydende Stue
Den åpne stuen er hjertet i hytten, med store vinduer som slipper inn naturlig lys og gir en fantastisk utsikt over omgivelsene. Her kan du samle familie og venner rundt peisen etter en dag i naturen.
Moderne Kjøkken
Kjøkkenet er funksjonelt og stilrent, utstyrt med moderne apparater som gjør matlagingen til en glede. Den åpne løsningen mot stuen skaper en sosial atmosfære der alle kan være med.
Praktisk Hems
Den romslige hemsen gir ekstra soveplasser eller et koselig leke- eller leserom for barna. Dette gjør hytten enda mer fleksibel og funksjonell for forskjellige behov.
Bærekraftig Byggekvalitet
Østlaft er kjent for sin høye kvalitet og bruk av bærekraftige materialer. Davos er bygget med fokus på lang levetid og god isolasjon, noe som gjør den perfekt for både sommer- og vinterbruk.
Gjør hyttedrømmen til virkelighet med hyttemodellen Davos. Kontakt oss for mer informasjon eller for å avtale en visning!
Prisen i denne annonsen er satt sammen av flere delsummer, i denne prisen har vi beregnet inn:
- Ferdig hytte over grunnmur til kroner 6.757.000,- (Kjøkken og hvitevarer er estimert til 200.000,-. Du kan velge utforming og leverandør. Prisen justeres basert på dine valg.)
- Kjøp av tomt til kroner 1.075.000,-
- Grunn- og betongarbeider er estimert til kroner 600.000,-
Adkomst/Tomteforhold
Fra Oslo: Kjør E6 til Lillhammer og ta av mot Gausdal like nord for Lillehammer. Følg riksvei 255 ca. 15 km til Svingvoll. Ta av til venstre mot Skei. Derfra er det ca. 8 km til Kjoslia tomt 94.
Fra Trondheim: Kjør E6 til Tretten og ta av mot Gausdal (riksvei 254). Etter 8 km, ta til høyre mot Skei ved Svingvoll. Derfra er det ca. 8 km til Kjoslia tomt 94.
Det opparbeides 2 parkeringsplasser på tomta.
Østlaft - Kvalitet, trygghet og bærekraft i hver hytte
Vi i Østlaft er stolt av å produsere alle våre hytter På Rudshøgda. Her har vi bygd det som kanskje er verdens mest avanserte laftefabrikk.
Vi benytter kun norsk tømmer i produksjonen. Dette sikrer ikke bare en bærekraftig tilnærming til produksjon, men også en forpliktelse til å støtte og fremme den lokale skogbruksnæringen.
Østlaft har etablert seg som en pålitelig leverandør av laftehytter av høyeste kvalitet. På Rudshøgda fortsetter vi å sette standarden for moderne lafteproduksjon, samtidig som vi hedrer og viderefører den rike tradisjonen innen norsk laft.
Østlaft er medlem av merkeordningen Trygt Hyttekjøp, og dette betyr Trygt Hyttekjøp for deg:
- Vi bygger din hytte i henhold til norsk regelverk
- Vi bruker standard bransjekontrakter i avtalen om hyttekjøpet
- Du får garantier og forsikring etter bustadoppføringslova
- Vi lover deg faglig utførelse av din hytte
- Ved en eventuell tvist har du rett til bruk av Boligtvistnemnda
- Vi sørger for ordnede arbeidsforhold på din byggeplass
Innhold
Standard
Bad:
Standard hvit baderomsinnredning, blandebatteri, veggbatteri med termostat og dusjutstyr, gulvmontert toalett.
Flis på gulv og dusjhjørne. Varmekabler i gulv.
Badstu:
Ubehandlet granpanel og listverk. Benk i osp. Glassdør.
Flis på gulv.
Teknisk/vaskerom:
Vaskerom leveres med 200l varmtvannsbereder og kran for vaskemaskin. Gulvmontert toalett og dusjkabinett.
Flis på gulv. Varmekabler.
Dører og vinduer:
Ytterdør leveres ferdig behandlet, med låskasse, sylinder og håndtak, hvitmalt. Boddør i samme utførelse som hoveddør, men med glatt innside.
Innvendig leveres heltre dører (Kloppen Ola 3) i fargen hvit. Andre farger etter avtale.
Vinduer kan leveres i standard hvit, men kan også leveres i samme farge som innvendige dører. Kontakt selger for tilvalg.
Tømmervegger:
8 tommer (20 cm) tykkelse. Ubehandlet furu. Kan leveres ferdig beiset etter avtale.
Himlingspanel og listverk:
Ubehandlet sprekkpanel, furu.
Glattkant listverk. Dimensjon tilpasset plassering.
Parkett
På gulv leveres 1-stavs eikeparkett. Eik alamo brun. Kontakt selger for tilvalg.
Trapp:
Ubehandlet furu hemsestige.
Taktekking:
Torv
Ventilasjon:
Det leveres elektrisk avtrekksvifte på bad.
Teknisk:
Antall elektriske punkt leveres iht. NEK 400:2022. Rørleggerarbeid utføres i forhold til utstyrsliste inkludert innredning og bunnledning. Kontakt selger for tilvalg.
Oppvarming:
Varmekabler på flislagte gulv. Peisovn med stålpipe, panelovner.
Oppgraderinger i leveransen er fullt mulig. Ta kontakt med Østlaft for en gjennomgang av hva som er inkludert og hvilke muligheter som finnes.
Vesentlige opplysninger
Ved kjøp av denne hytta, vil det blir laget separate kontrakter for tomt, grunnarbeider, og hytte.
Pris indeksreguleres fra SSB prisindeks pr Desember 2023. Einebustader av tre, byggearbeider unntatt stein- , jord og sementarbeider (sist oppdatert 12.01.2024, indeks 151,40)
Viser til standard leveransebeskrivelse for mer utfyllende informasjon om hva som er inkludert i leveransen.
Dette er en prosjektert hytte. Vi tilbyr rask oppstart på byggeplass ved kjøp av denne hytta.
Ta kontakt med megler for komplett informasjon
Nærområdet
Annonsene kan være mangelfulle i forhold til lovpålagt opplysningsplikt. Før bindende avtale inngås oppfordres interessenter til å innhente komplett informasjon fra meglerforetaket, selger eller utleier.



















