Bildegalleri

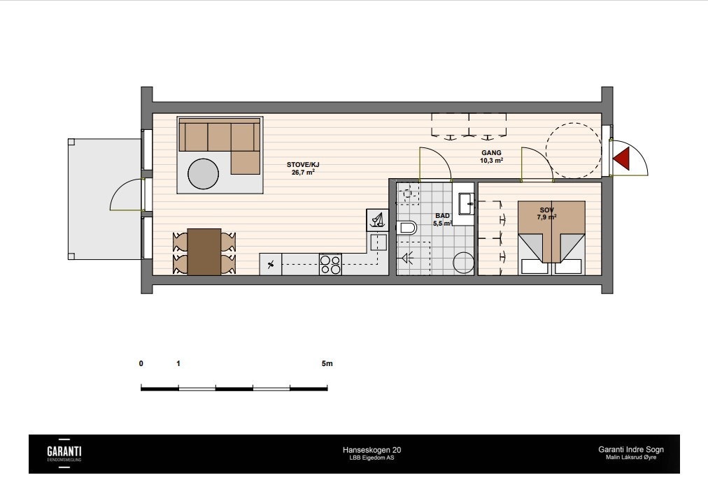
Planteikning - 2-roms - .jpg
Prosjekt Hanseskogen
Leilegheit H0202. Flott 2-roms midtleilegheit med open stove-/kjøkkenløysing, soverom, bad/vaskerom. Utgang til balkong.
Prosjektets status
Planlegging
01.12.2023
Salgsstart
31.01.2024
Byggestart
Etter 50 % salg
Overtakelse
01.06.2025
Nøkkelinfo
- Boligtype
- Leilighet
- Etasje
- 2
- Soverom
- 1
- Rom
- 2
- Primærrom
- 50 m²
- Bruksareal
- 50 m²
Fasiliteter
Beskrivelse
2-roms leilegheit med open- stove og kjøkkenløysing, soverom, bad og gang. God planløysing med store vindaugsflater som bidrar til ein luftig romfølelse. Stova har adkomst til balkong der ein kan nyte mange koselege soldagar. Ein har også tilgang til ekstern sportsbod og 1 stk parkeringsplass.
Leilegheita blir levert med gjennomgåande moderne standard med laminat berry alloc, walls to paint på veggar og vannvåren varme i stove/kjøkken, soverom og gang. Kjøkkenet blir levert med integrerte kvitevarer som kjøl/frys, oppvaskmaskin, steikeovn og platetopp. Badet blir levert med våtromsbelegg på golv og baderomsplater på veggar. Badet har varme i golv, vegghengt wc, 80 cm baderomsinnredning med spegel og lys, dusjhjørne, downlights i himling og opplegg for vaskemaskin. Sjå vedlagt leveransebeskrivelse for ytterligare beskrivelse av innhald og standard.
Eigarseksjonssameige med attraktiv beliggenheit i Hanseskogen, som blir omtalt som eit trygt og roleg bustadområde i Lærdal. Med gangavstand til alle fasilitetar, kombinert med solrik plassering, gjer dette området til ein fin stad å bu. Det et er kort veg til Lærdalsøyri skule- og barnehage, fritidsaktivitetar og servicetilbod.
Er du tidlig ute kan du velge andre interiørløsninger som tilvalg, endrings-/tilleggsarbeider. På den måten kan du skreddersy leveransen og tilpasse leiligheten etter dine ønsker. Merk at det er en tidsfrist for å bestille slike endringer. Se vedlagt leveransebeskrivelse fra selger for mer informasjon dette.
Ta gjerne kontakt med meklar ved spørsmål.
Malin Låksrud Øyre
Eiendomsmegler MNEF / Fagansvarlig
Garanti Eigedomsmegling Indre Sogn
Tlf. 994 74 899
Vederlag
Det er avtalt fast vederlag på kr. 50 000,- eks mva pr. leilegheit. Det er også avtalt markedspakke på kr. 19 900,- eks mva for heile prosjektet. Seljar dekkar også eksterne utlegg.
Ansvarlig megler
Malin Låksrud Øyre
Nyttige lenker
Nærområdet
Garanti Eiendomsmegling Indre Sogn
Annonseinformasjon
| FINN-kode | 338563811 |
|---|---|
| Sist endret | 28. aug. 2025 10:14 |
| Referanse | GAR61.23170 |
Annonsene kan være mangelfulle i forhold til lovpålagt opplysningsplikt. Før bindende avtale inngås oppfordres interessenter til å innhente komplett informasjon fra meglerforetaket, selger eller utleier.
