Bildegalleri

Inaktiv
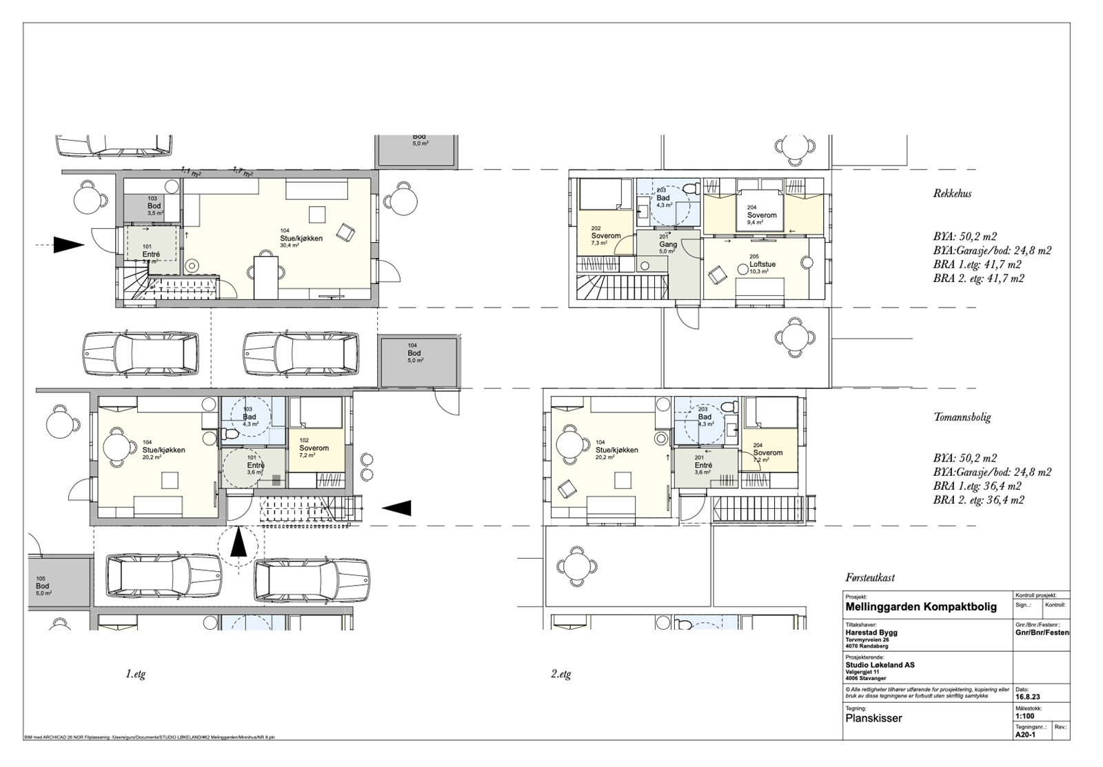
Melinggarden- Minihus
Melinggarden 11
Prisantydning3 950 000 kr
Prosjektets status
Planlegging
Februar 2024
Salgsstart
Februar 2024
Byggestart
Mai 2024
Overtakelse
April 2025
Nøkkelinfo
- Boligtype
- Leilighet
- Soverom
- 2
- Rom
- 4
- Primærrom
- 80 m²
- Bruksareal
- 0 m²
Fasiliteter
Balkong/Terrasse
Garasje/P-plass
Utsikt
Turterreng
Beskrivelse
Mer informasjon kommer
NB: Knappen for å vise hele beskrivelsen har kun en visuell effekt.
NB: Knappen for å vise hele beskrivelsen har kun en visuell effekt.
Nærområdet
Odel & Eie
Annonseinformasjon
| FINN-kode | 337562220 |
|---|---|
| Sist endret | 18. okt. 2024 09:50 |
| Referanse | OOE1.2386 |
Annonsene kan være mangelfulle i forhold til lovpålagt opplysningsplikt. Før bindende avtale inngås oppfordres interessenter til å innhente komplett informasjon fra meglerforetaket, selger eller utleier.



