Bildegalleri

Leilighet C.
Svaleveien 6
Svaleveien 6
Prosjektets status
Planlegging
2023
Salgsstart
Vår 2024
Byggestart
Vår 2025
Overtakelse
Senest våren 2026
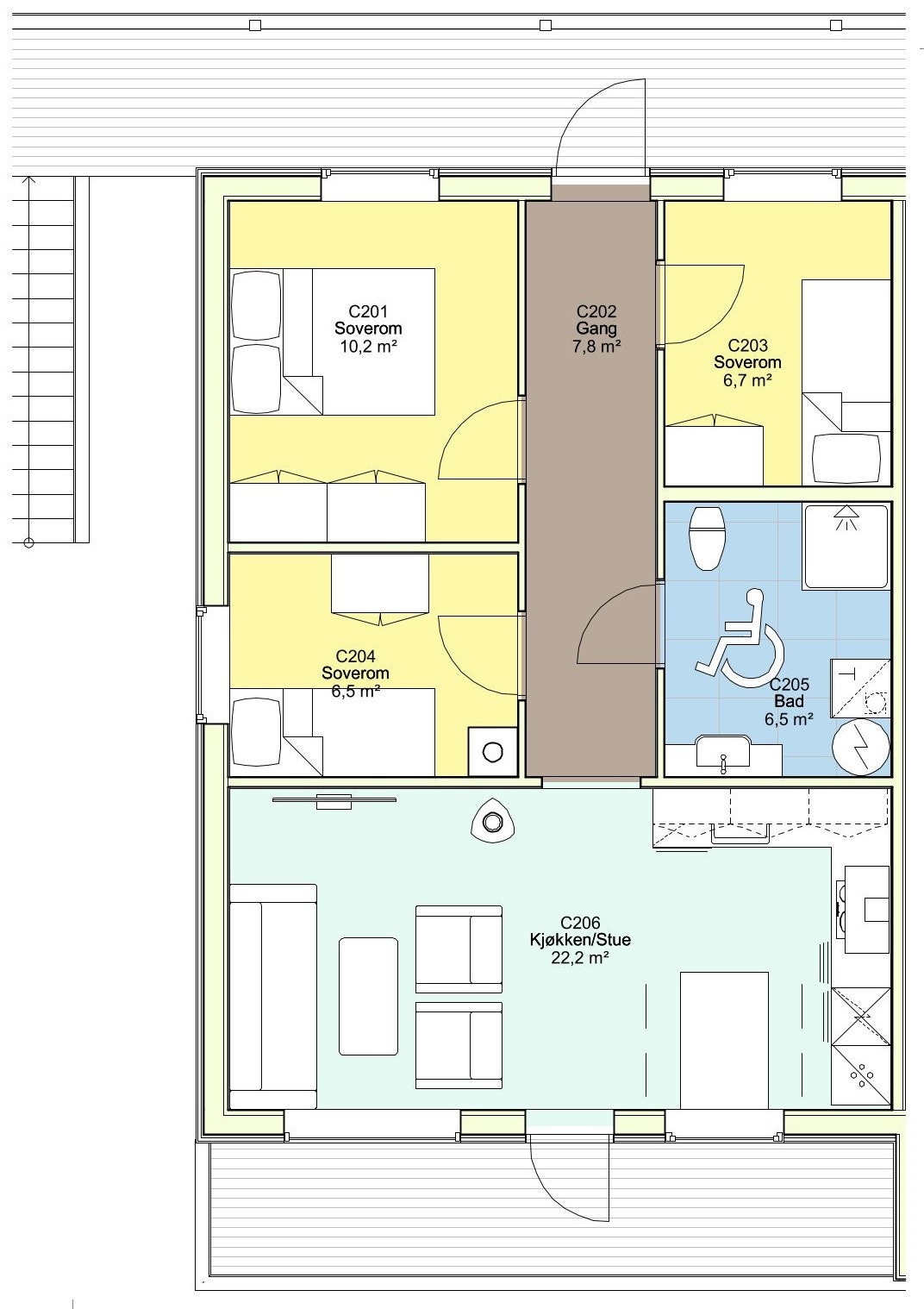
Nøkkelinfo
- Boligtype
- Leilighet
- Etasje
- 2
- Soverom
- 3
- Rom
- 4
- Primærrom
- 60 m²
- Bruksareal
- 66 m²
Beskrivelse
Omkostninger
Dokumentavgift kr. 7 500,-. Tinglyse skjøte kr. 500,- Tinglyse pantedokument kr. 500,- Grunnboksutskrift kr. 240,-. Oppstartskapital til sameiet kr. 4 500,-.
Midlertidig brukstillatelse og ferdigattest
Det er ulovlig å ta boligen i bruk uten ferdigattest eller midlertidig brukstillatelse, og selger plikter å fremlegge minimum midlertidig brukstillatelse til kjøper og megler før overtakelse.
Selger skal sørge for ferdigattest. Dersom kommunen utsteder midlertidig brukstillatelse kan kjøper overta og bebo boligen. Gjenstående arbeider skal ferdigstilles av selger innen den frist som er satt av kommunen. Dersom gjenstående arbeider ikke blir utført innen fristen, kan kommunen gi selger pålegg om å ferdigstille, ev. gi tvangsmulkt og/eller forelegg.
Dersom overtakelse skjer ved midlertidig brukstillatelse, oppfordres kjøper til å sette seg inn i hva som gjenstår for at ferdigattest skal bli stilt. Kjøper har rett til å holde tilbake et beløp av oppgjøret på meglerforetakets klientkonto, som sikkerhet for utstedelse av ferdigattest. Beløpet kan frigis på bakgrunn av garanti etter bustadoppføringslova § 47, eller ved utstedelse av ferdigattest.
Ansvarlig megler
Mads Wallerheim
Nyttige lenker
Nærområdet
Aktiv Finnsnes
Annonseinformasjon
| FINN-kode | 337441044 |
|---|---|
| Sist endret | 27. aug. 2025 12:56 |
| Referanse | 1901240046 |
Annonsene kan være mangelfulle i forhold til lovpålagt opplysningsplikt. Før bindende avtale inngås oppfordres interessenter til å innhente komplett informasjon fra meglerforetaket, selger eller utleier.

