Bildegalleri

Strusshamn
Prosjekt Lønvardshøyden - Byggetrinn II i Lønvarden Nord.
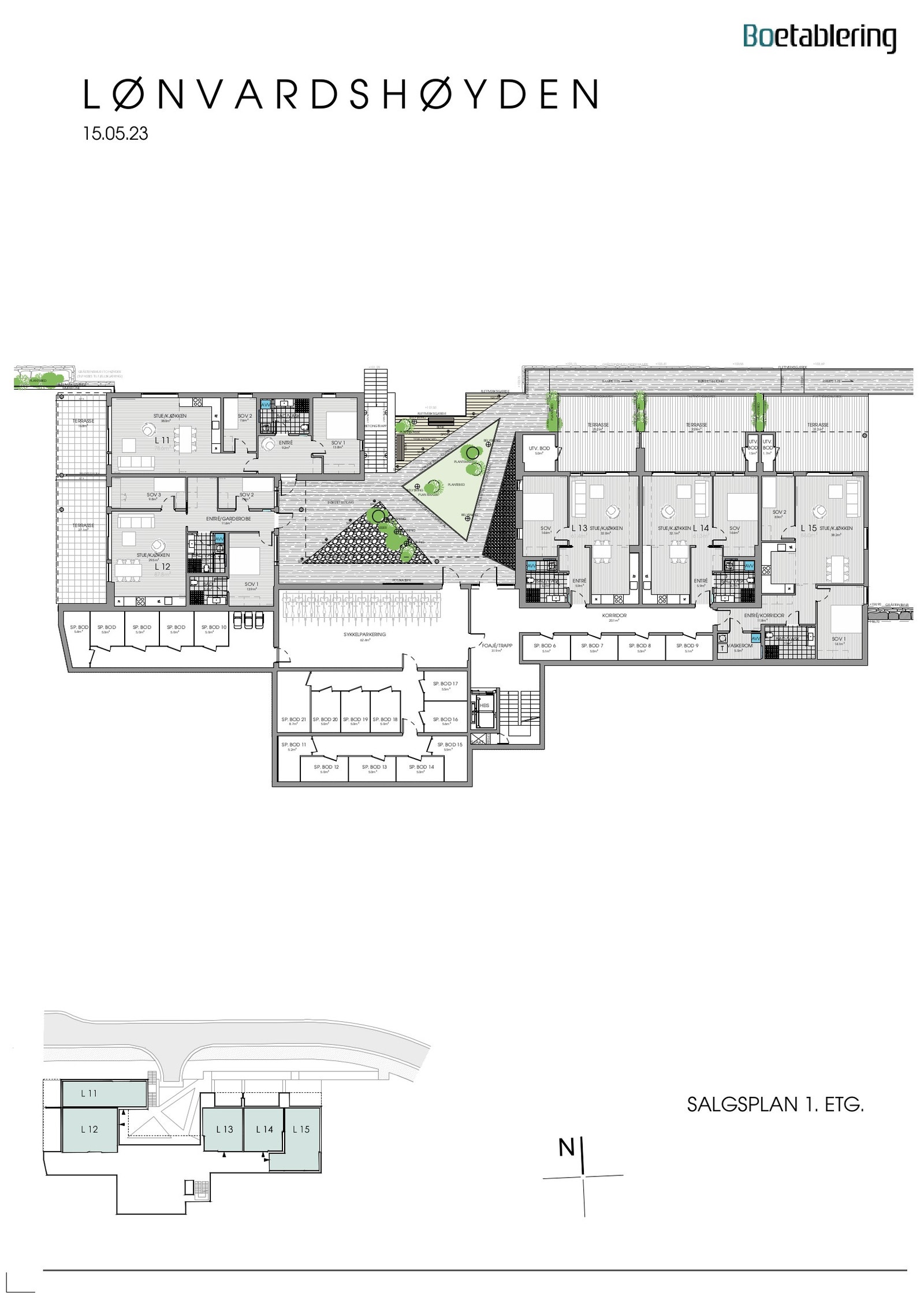
Lønvardshøyden - Leilighet L11
Prisantydning5 895 000 kr
Kort om prosjektet
VELKOMMEN TIL 2 BYGGETRINN PÅ LØNVARDEN | LØNVARDSHØYDEN - MODERNE OG SENTRALE LEILIGHETER PÅ ASKØY! Energibesparende, fremtidsrettede og solrik leiligheter i ett attraktivt bomiljø Dette er andre byggetrinn i Lønvarden Nord, i det populære boligområdet, Lønvarden i Strusshamn.
Prosjektets status
Planlegging
Vi har startet på gunnarbeidet!
Salgsstart
24.02.2024
Byggestart
20.08.2025
Overtakelse
Forventet Q2 2027
Nøkkelinfo
- Boligtype
- Leilighet
- Etasje
- 1
- Soverom
- 2
- Rom
- 3
- Bruksareal
- 78 m²
- Energimerking
- A - Lysegrønn
Fasiliteter
Balkong/Terrasse
Offentlig vann/kloakk
Utsikt
Barnevennlig
Garasje/P-plass
Kabel-TV
Parkett
Balansert ventilasjon
Bredbåndstilknytning
Heis
Lademulighet
Turterreng
Beskrivelse
Fordelene med nybolig!
Kvaliteter i leiligheten:
- Leiligheten har lavt energiforbruk
- Kvalitetskjøkken med integrerte hvitevarer inkludert
- Downlights på bad
- Downlights i entreen
- Flislagt baderom med elektrisk varme i gulvet
- Lys 1 stavs eikeparkett i alle rom unntatt våtrom
- Velg mellom 3 farger på vegg maling innenfor standardleveranse
- Leiligheten har 16 kvm privat markterrasse
- Sportsbod 5 kvm
- Flotte opparbeidede uteområder
- Heis i tilknytning til innvendig lukket parkeringskjeller
- Medfølger 1 stk. parkeringsplass i lukket garasjekjeller
Fordeler med å kjøpe nybygg:
- Bygges etter siste kravene til inneklima - Tek 17.
- Faste priser - ingen stressende budrunder
- Siste kravene til byggekvalitet som gir lavere energiforbruk
- Omkostningene er lave med kjøp av nybolig - som er en hyggelig fordel
- Trygg og seriøs boligbygger med 34 års erfaring fra bransjen
- 5 års garanti ved kjøp av nybolig - du har oss å forholde deg til, ved oppståtte feil og mangler i reklamasjonstiden.
NB: Knappen for å vise hele beskrivelsen har kun en visuell effekt.
NB: Knappen for å vise hele beskrivelsen har kun en visuell effekt.
Nyttige lenker
Nærområdet
Lønvarden Nord AS
Vi bygger ditt nye hjem!
Annonsene kan være mangelfulle i forhold til lovpålagt opplysningsplikt. Før bindende avtale inngås oppfordres interessenter til å innhente komplett informasjon fra meglerforetaket, selger eller utleier.






