Bildegalleri

Velkommen til Sigurd Hoels vei 40 - Presentert av Henry Ryberg Pedersen i OBOS Eiendomsmeglere.
Lys, fin & ubebodd 3-roms i Lumanders Hage | Sydvestvendt balkong | Avdragsfritt & IN | V.vann/fyring inkl. | Sentralt
Nøkkelinfo
- Boligtype
- Leilighet
- Eieform
- Andel
- Internt bruksareal
- 63 m² (BRA-i)
- Eksternt bruksareal
- 5 m² (BRA-e)
- Balkong/Terrasse
- 11 m² (TBA)
- Byggeår
- 2023
- Energimerking
- B - Mørkegrønn
- Tomt
- Eiet
Fasiliteter
Om boligen
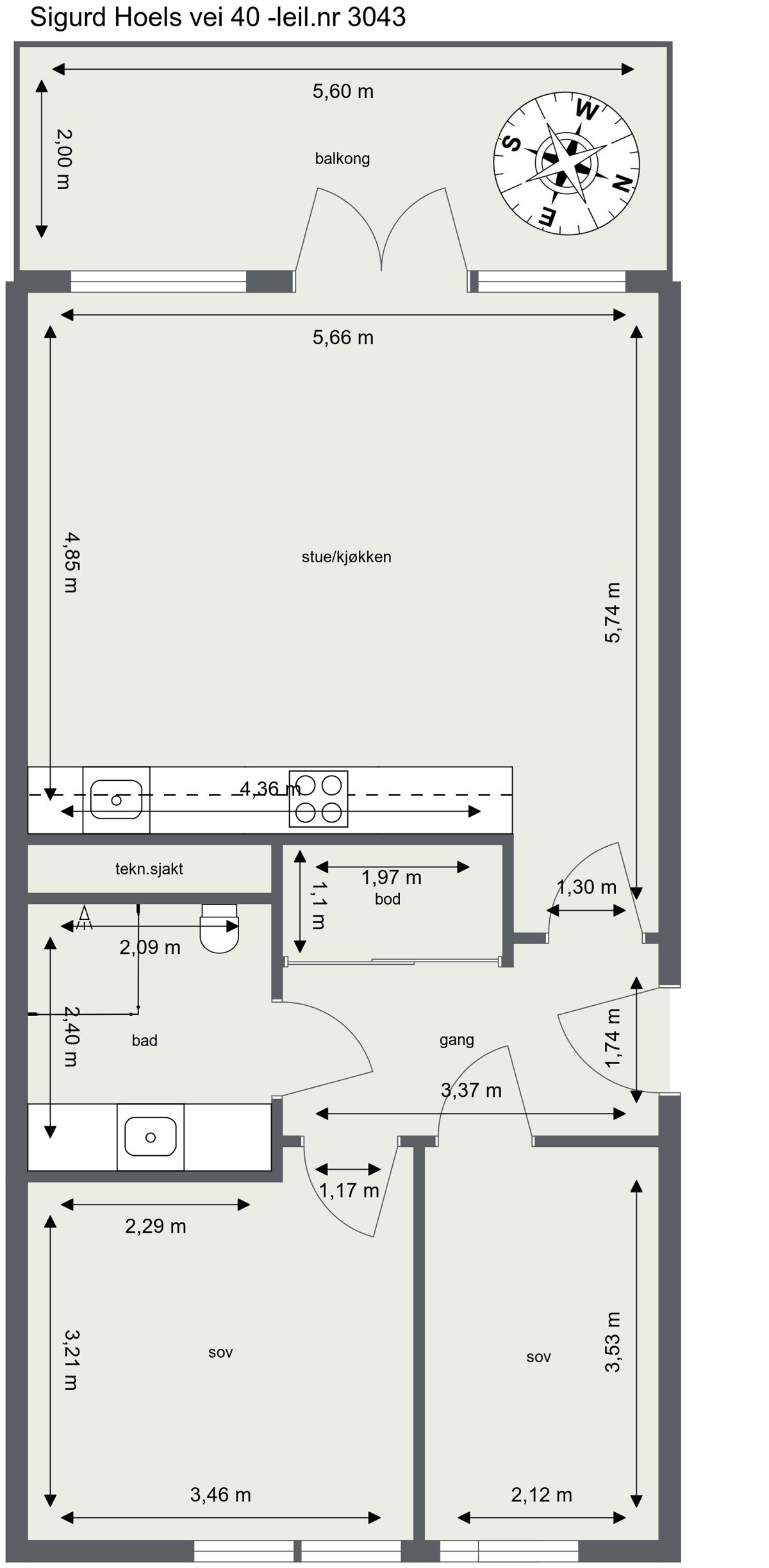
Velkommen til Sigurd Hoels vei 40 - Lys og fin 3-roms, som er helt ny og ubebodd med god planløsning.
Leiligheten har etterspurt beliggenhet på Ensjø med få minutters gange til T-bane, forretninger, spisesteder og parker.
Planløsning bestående av entré, to soverom, bad/wc og åpen stue/kjøkken med utgang til syd-vestvendt balkong på 11m². Leiligheten disponerer en kjellerbod på 5m².
Lumanders Hage kan by på et flott og frodig gårdsrom, solrik felles takterrasser på hus B og C, mulighet for å kjøpe egne takparseller.
- Fin beliggenhet i 3 etasje med store vindusflater
- Syd-vestvendt balkong på 11m²
- Lekkert kjøkken fra Aubo
- God planløsning
- Stor kjellerbod på 5m²
- Oppvarming/varmtvann inkl. (A-konto)
- Kort vei til servicetilbud
- Kort vei til offentlig kommunikasjon
Velkommen til visning
Salgsoppgaven beskriver vesentlig og lovpålagt informasjon om eiendommen
Se komplett salgsoppgaveNyttige lenker
Nærområdet
OBOS Eiendomsmeglere - Ulven
Prisstatistikk
Sigurd Hoels vei 40
på annonsen
prisantydning per kvadratmeter
Prisfordeling
Pris per m² ligger 8 111 kr over snittet for leiligheter i Gamle Oslo.
Grafen viser antall leiligheter solgt i Gamle Oslo siste året fordelt på pris per m² - totalt 2 067 leiligheter
Antall boliger
Kvadratmeterpris tilsvarer prisantydning pluss fellesgjeld per kvadratmeter (p-rom eller BRA-i). Prisene i grafen er avrundet til nærmeste 1000 kr.
Annonseinformasjon
| FINN-kode | 336800143 |
|---|---|
| Sist endret | 15. feb. 2024 11:04 |
| Referanse | 716240003 |
Annonsene kan være mangelfulle i forhold til lovpålagt opplysningsplikt. Før bindende avtale inngås oppfordres interessenter til å innhente komplett informasjon fra meglerforetaket, selger eller utleier.



































