Bildegalleri

Kontorarealer i fullservice kontorbygg – ledig for korttidsleie
Nøkkelinfo
- Areal
- 778 - 9 850 m²
- P-plasser
- 36
Type lokale
Fasiliteter
Kontorarealer i fullservice kontorbygg – ledig for korttidsleie
Leieperiode
BDO leier ca 9 850 kvm i Vika Atrium og skal høsten 2024 flytte til nye lokaler. I denne forbindelse skal BDO fremutleie sine lokaler i Vika Atrium i perioden fra høsten 2024 og frem til september 2025.
Vika Atrium er et fullservice kontorbygg med kantine, kurs- og konferansesenter. Eiendommen har et nytt treningsrom fra 2023 med garderober. Det er sosiale soner og sitteplasser i atriet som en hyggelig møteplass for leietakere og besøkende. Thon Hotels tilbyr gode overnattingsmuligheter til deg eller dine forretningsforbindelser. Parkeringsplasser kan leies i byggets underetasje. Egen gjesteparkering.
Beliggenhet
Eiendommen ligger sentralt i Vika, Oslo sentrums beste kontorstrøk. Det er kort vei til Vika Terrasse, Karl Johans gate og Aker Brygge med shoppingmuligheter og stort utvalg i restauranter og barer. Offentlig kommunikasjon med tog, trikk, buss og t-bane fra Nationaltheateret som er kun 7–8 min. gange fra Vika Atrium. Det er også bussholdeplass i umiddelbar nærhet.
- Innflytting: Leieperiode: Q3/Q4 2024–Q3 2025
- Gårdeier: Fremutleier: BDO
Beliggenhet
Eiendommen ligger sentralt i Vika, Oslo sentrums beste kontorstrøk. Det er kort vei til Vika Terrasse, Karl Johans gate og Aker Brygge med shoppingmuligheter og stort utvalg i restauranter og barer. Offentlig kommunikasjon med tog, trikk, buss og t-bane fra Nationaltheateret som er kun 7–8 min. gange fra Vika Atrium. Det er også bussholdeplass i umiddelbar nærhet.
- Beliggenhet: Oslo, CBD, Oslo Sentrum
Fullservice kontorbygg
Vika Atrium er et fullservice kontorbygg med kantine, kurs- og konferansesenter. Eiendommen har et nytt treningsrom fra 2023 med garderober. Det er sosiale soner og sitteplasser i atriet som en hyggelig møteplass for leietakere og besøkende. Thon Hotels tilbyr gode overnattingsmuligheter til deg eller dine forretningsforbindelser. Parkeringsplasser kan leies i byggets underetasje. Egen gjesteparkering. Lokalene kan leies ferdig møblert.
- Garderober
- Trening
Fremutleier
Over hele landet jobber tusenvis av virksomheter og organisasjoner hardt for å skape verdier. Og over hele landet er BDO til stede for å hjelpe dem. Vi er et autorisert regnskapsførerselskap og internasjonalt rådgivnings- og revisjonsselskap med dypt fotfeste i norsk samfunns- og næringsliv. Vi kjenner utfordringene, ser mulighetene og engasjerer oss sterkt for at kundene våre skal nå målene sine.
I Norge har vi over 2 000 ansatte og mer enn 60 kontorer over hele landet. Våre kunder er alt fra store, verdensomspennende selskaper til små og mellomstore bedrifter. Vi har kunder fra de fleste bransjer i både privat og offentlig sektor.
Internasjonalt er BDO til stede i 164 land og teller i overkant av 111 000 ansatte. Ved behov, samarbeider vi med store deler av nettverket om både internasjonale og nasjonale kunder.
Bygg 3:
Totalt: 3 345 m²
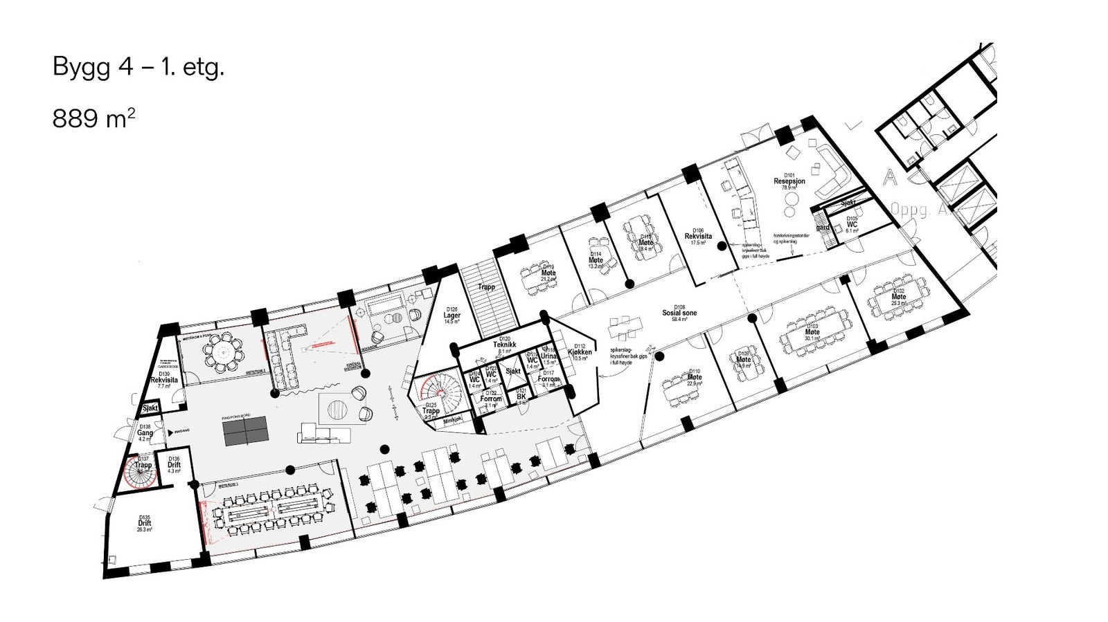
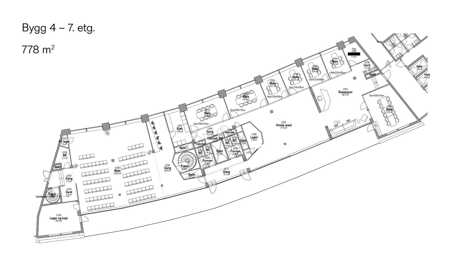
Bygg 4:
Bygg 4 - Totalt: 6 507 m²
Totalt: 9 852 m²
Visning
Ta kontakt for å avtale visning.Nyttige lenker
Malling & Co Næringsmegling AS
Nærområdet
Annonsene kan være mangelfulle i forhold til lovpålagt opplysningsplikt. Før bindende avtale inngås oppfordres interessenter til å innhente komplett informasjon fra meglerforetaket, selger eller utleier.
















































