Bildegalleri

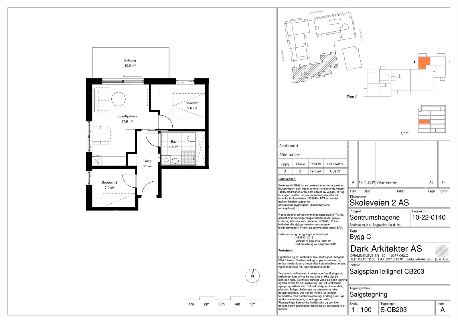
S-CB203 - Salgsplan leilighet CB203.jpg
Sentrumshagene - Hus C
Sentrumshagene CB203
Prisantydning4 890 000 kr
Prosjektets status
Planlegging
Ferdig
Salgsstart
Januar 2024
Byggestart
3. kvartal 2024
Overtakelse
4. kvartal 2025
Nøkkelinfo
- Boligtype
- Leilighet
- Etasje
- 2
- Soverom
- 2
- Rom
- 3
- Internt bruksareal
- 49 m² (BRA-i)
- Bruksareal
- 52 m²
- Eksternt bruksareal
- 3 m² (BRA-e)
- Balkong/Terrasse
- 10 m² (TBA)
Fasiliteter
Balkong/Terrasse
Bredbåndstilknytning
Garasje/P-plass
Heis
Kabel-TV
Turterreng
Beskrivelse
Ansvarlig megler
Trygve Formo Hermansen
NB: Knappen for å vise hele beskrivelsen har kun en visuell effekt.
NB: Knappen for å vise hele beskrivelsen har kun en visuell effekt.
Nyttige lenker
Nærområdet
Sem & Johnsen
Boliger utenom det vanlige
Annonseinformasjon
| FINN-kode | 336399277 |
|---|---|
| Sist endret | 10. des. 2025 10:24 |
| Referanse | 21-23-1298 |
Annonsene kan være mangelfulle i forhold til lovpålagt opplysningsplikt. Før bindende avtale inngås oppfordres interessenter til å innhente komplett informasjon fra meglerforetaket, selger eller utleier.
