Bildegalleri

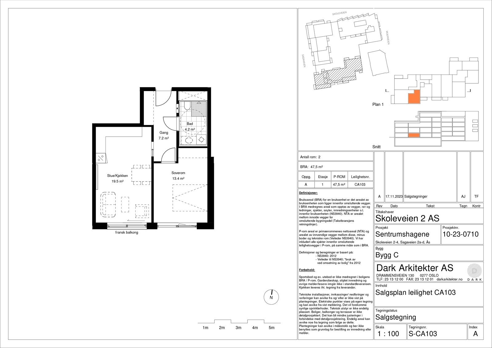
S-CA103 - Salgsplan leilighet CA103.jpg
Sentrumshagene - Hus C
Sentrumshagene CA103
Prisantydning4 290 000 kr
Prosjektets status
Planlegging
Ferdig
Salgsstart
Januar 2024
Byggestart
3. kvartal 2024
Overtakelse
4. kvartal 2025
Nøkkelinfo
- Boligtype
- Leilighet
- Etasje
- 1
- Soverom
- 1
- Rom
- 2
- Internt bruksareal
- 48 m² (BRA-i)
- Bruksareal
- 50 m²
- Eksternt bruksareal
- 3 m² (BRA-e)
Fasiliteter
Balkong/Terrasse
Bredbåndstilknytning
Garasje/P-plass
Heis
Kabel-TV
Turterreng
Beskrivelse
Ansvarlig megler
Trygve Formo Hermansen
NB: Knappen for å vise hele beskrivelsen har kun en visuell effekt.
NB: Knappen for å vise hele beskrivelsen har kun en visuell effekt.
Nyttige lenker
Nærområdet
Sem & Johnsen
Boliger utenom det vanlige
Annonseinformasjon
| FINN-kode | 336399255 |
|---|---|
| Sist endret | 10. des. 2025 10:24 |
| Referanse | 21-23-1276 |
Annonsene kan være mangelfulle i forhold til lovpålagt opplysningsplikt. Før bindende avtale inngås oppfordres interessenter til å innhente komplett informasjon fra meglerforetaket, selger eller utleier.
