Bildegalleri

En vakker historisk sentrumseiendom
Mer sentral beliggenhet i Bergen Sentrum skal du lete lenge etter!
Nøkkelinfo
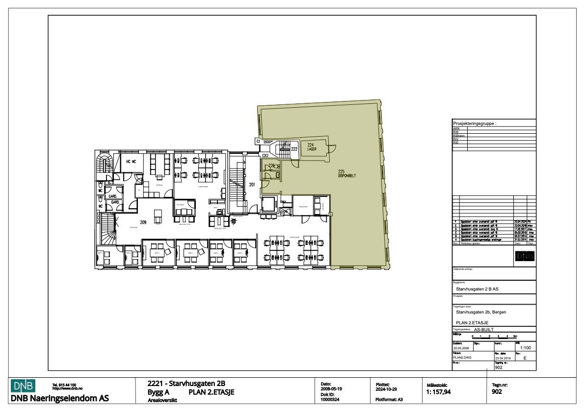
- Areal
- 220 m²
- Etasje
- 2.
Type lokale
Om eiendommen
2. etg ca 200 kvm
Beliggenhet
Et mer sentralt kontorlokale midt på Torgalmenningen, skal du lete lenge etter. Et flott kontorlokale med alle fasiliteter i umiddelbar nærhet.
Adkomst
Endestoppet på Bybanen befinner seg rett utenfor inngangsdøren. Flybussen stopper like ved, det sammen gjør øvrig kollektivtransport. Det er flere parkeringshus i nærheten, blant annet Klostergarasjen og Citypark. Det er et par minutters gange til Bygarasjen.
Standard/Tekniske opplysninger
Lokalet vil tilpasses leietaker og kan være innflytningsklare 5-6 måneder etter signert kontrakt.
Lokalene/innhold
Rålokale med mye vinduer. Her kan vi tilpasse etter leietakers ønsker. Her kan du bevege deg rundt i lokalene: https://my.matterport.com/show/?m=ANbihVnEqHw&sm=2&sr=-2.69,-.6,-2.87&sp=-14.76,10.17,-19.96&play=1
Nærområdet
Torgalmenningen er et kjent og sentralt område i Bergen Sentrum, regnet som byens navle. Området er et viktig møtested og handelsplass med butikker, kjøpesentre og ikke minst et stort tilbud innen bespisning. Man har byparken, Musikkpaviljongen, Den Nasjonale Scene og Ole Bullsplass rett rundt hjørnet.
Eierforhold
Bygget eies av DNB Livsforsikring og forvaltes av DNB Næringseiendom. Som en av Norges store private eiendomsbesittere er DNB Livsforsikring en langsiktig og finansiell solid utleier, noe som betyr at vi opprettholder standarden på våre eiendommer også i nedgangstider. I tillegg medfører vår størrelse, med hensyn til antall eiendommer, fleksibilitet for våre leietakere.
For mer informasjon kontakt:
Lise H. Selvik
Mobil +47 48 21 50 40
Send e-post: Lise.selvik@dnb.no
Innhold
Visning
Ta kontakt for å avtale visning.
Nærområdet
Annonseinformasjon
| FINN-kode | 335351717 |
|---|---|
| Sist endret | 17. sep. 2025 11:52 |
| Referanse | Starvhusgaten 2b, 5012 Bergen. 220m2 |
Annonsene kan være mangelfulle i forhold til lovpålagt opplysningsplikt. Før bindende avtale inngås oppfordres interessenter til å innhente komplett informasjon fra meglerforetaket, selger eller utleier.










