Bildegalleri

Illustrasjon av et tilsvarende hovedsoverom i bygg B - avvik kan forekomme. (leiligheten leveres uten garderobeskap)
Ny og gjennomgående 4-roms med garasjeplass! Solrik sydvendt og romslig balkong på 9,5kvm! OT 13.03.24. IN-ordning
Nøkkelinfo
- Boligtype
- Leilighet
- Eieform
- Andel
- Soverom
- 3
- Primærrom
- 81 m²
- Bruksareal
- 84 m²
- Etasje
- 2
- Byggeår
- 2024
- Energimerking
- B - Mørkegrønn
- Rom
- 4
- Tomt
- Eiet
Visning
Beliggenhet
Når du kjøper leilighet i Gregers Kvartal, får du også et hyggelig og opparbeidet, grønt fellesområde med på kjøpet. Her er det ekstra god plass rundt byggene, noe som gjør dette kvartalet spesielt luftig og grønt. Utsikten fra takterrassene gir deg følelsen av å bo på byens tak, det er ikke uten grunn at vi ser på Gregers Kvartal som Lørens lekreste perle. Leiligheten ligger midt i sentrum av Løren, rett ved gaten med søndagsåpne butikker og restauranter rett utenfor døren.
Lev livet på Løren!
Kjøkken-leveranse
Overskap leveres med greplist og spotter innfelt under overskap.
Underskap og overskap leveres med demping. I hjørneskap leveres rondell.
Elektriske punkter iht. forskrifter.
Egen kurs for induksjonstopp, 25 A.
Komfyrvakt plasseres på vegg.
Integrerte hvitevarer fra Siemens:
- oppvaskmaskin modell iQ100-SN61IX09TE,
- induksjonstopp 60 cm modell EH631BEF1X.
- komfyr modell iQ100 HB010FBR0S.
- kjøl/frys modell iQ100.
Det tas forbehold om avvikende plassering av hvitevarer.
Avtrekk over komfyr med uttrekkbar slimlineventilator i stål.
Kjøkkenkran Grohe Bauflow ettgreps blandebatteri, med avstenging for oppvaskmaskin.
Aqua-stopp.
Foring over overskap utføres hovedsakelig i gips og males i samme farge som vegg.
Kjøkkentegning ligger vedlagt
Baderom-leveranse
Fliser på gulv: 30x30 cm.
Mosaikkfliser: 5x5 cm i nedsenket dusjsone.
Fliser vegg: 30x60 cm
Baderomsinnredning fra Sigdal modell Lilje med heldekkende servant med skuffer.
Utenpåliggende speil med innfelt ledlys, lik bredde på speilet som baderomsinnredning.
Dusjvegger (rette, svingbare) i herdet glass med aluminiumsprofil.
Downlights i tak med dimmer.
Stikkontakt i tilknytning til baderomsinnredning.
Dobbeltstikkontakt for vaskesøyle hvor dette er vist på plantegning.
Vegghengt toalett med innebygget sisterne, Grohe Euro.
Soft-close toalettsete.
Trykkplate i krom, Grohe Skate.
Ettgreps blandebatteri i krom, Grohe
Eurosmart Cosmopolitan M-size.
Dusj med termostatstyrt batteri med dusjsett i krom, Grohe Tempestad
Cosmopolitan System 210.
Opplegg for vaskemaskin
Andre oppholdsrom
Gulv:
1-stavs lyspigmentert mattlakkert eikeparkett type Haro Eik Markant Sandgrå.
Entré
Downlights i tak med dimmer.
Plass til garderobeløsning i entre.
Garderobe kan bestilles som tilvalg.
Ringeklokke utenfor hver leilighet.
Innhold
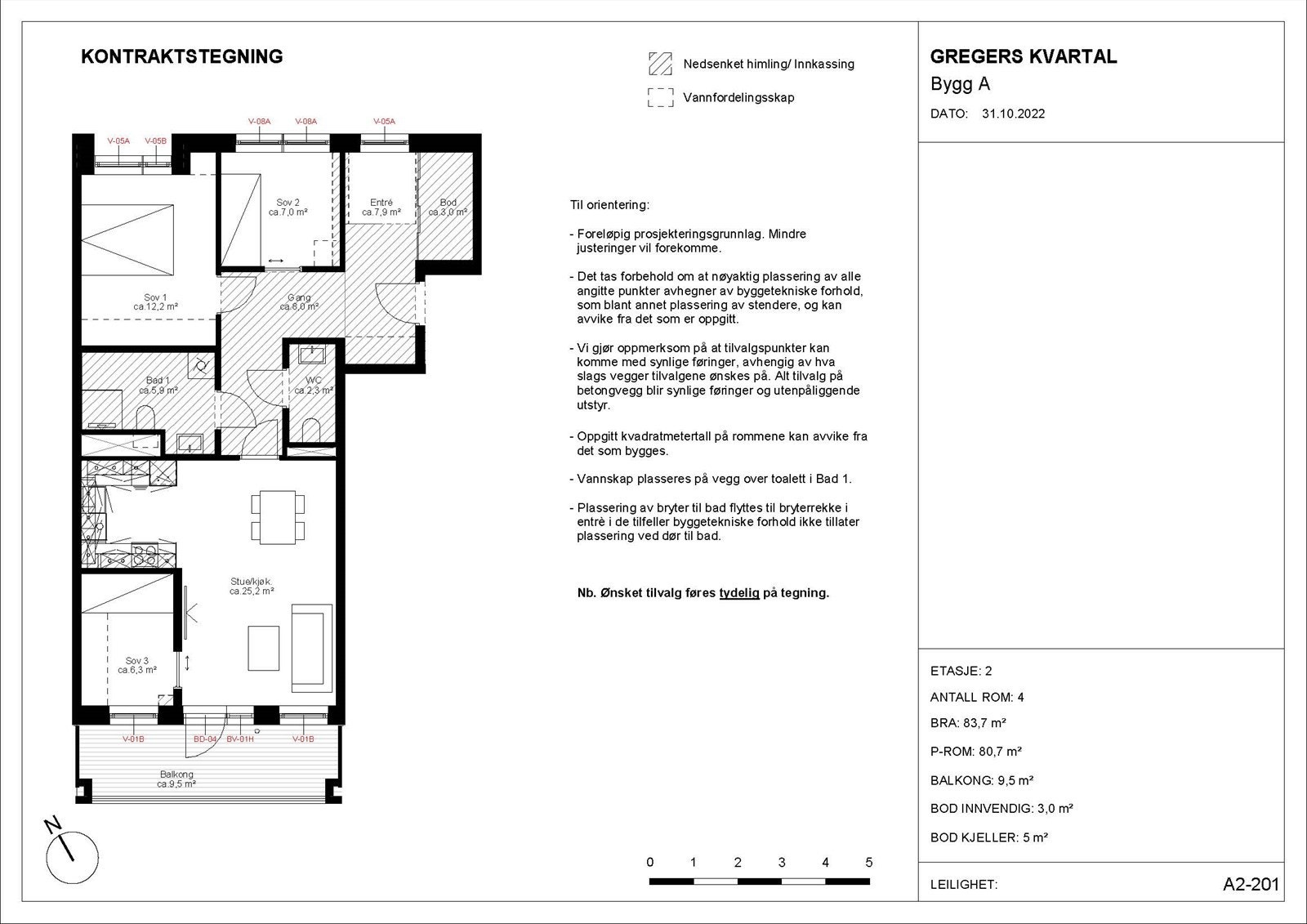
Dette er en gjennomgående 4-roms beliggende høyt oppe i boligprosjektet Gregers Kvartal på Løren.
Leiligheten byr på en god planløsning og god standard med en delvis åpen løsning på kjøkken og stue, tre gode soverommene som har plass til garderobe. Leiligheten har i tillegg en romslig og solrik balkong på ca 8 kvm som vender ut mot fellesarealet og det store, åpne portrommet.
Noen høydepunkter:
IN-ordning, mulighet for nedbetaling av fellesgjeld
Vannbåren varme i gulv
1-stavs parkett i alle oppholdsrom
Interiørkonsept Nordisk Mørk på bad og Kald på kjøkkenet
Sydvendt balkong mot indre gårdsrom på 9,5 kvm
Hvitevarer fra Siemens inkludert
Ca 5 min gangavstand til T-banen
Kjellerbod på 5 kvm.
Salg av kontraktsposisjon
Overtagelse 13.03.2024.
Mulighet for byggeplassvisning
2. etg: P-rom / BRA utgjør 80,7 / 83,7 kvm som omfattes av kjøkken og stue, tre soverom, bad og et toalett.
Bruksarealet er beregnet i henhold til reglene i NS3940 og utgjør alt areal innenfor omsluttende yttervegger, inklusive innvendige sjakter. P-rom og boligens bruksareal fratrukket innvendig bodareal og vegger med sjakter som omslutter bodrarealet. Arealer angitt på tegninger for det enkelte rom, er rommets nettoareal og er eksklusiv innvendige vegger.
Oppvarming
Leilighetene varmes opp ved bruk av fjernvarme.
Ventilasjon og vannbåren gulvvarme er koblet opp mot fjernvarmeanlegget.
Fjernvarmeanlegget står også for oppvarming/produksjon av varmt tappevann. Gulvvarmen reguleres av termostater plassert i hvert rom. Gulvvarmen på badet reguleres av termostat med gulvføler.
Parkering
Det medfølger en parkeringsplass i lukket garasjeanlegg til denne andelen. Parkeringsplassen har elbillader.
Vedtekter/husordensregler
Det er utarbeidet vedtekter som følger vedlagt. Kjøper plikter å rette seg etter de til enhver tid gjeldende vedtekter. Selger tar forbehold om endringer som selger anser hensiktsmessige eller nødvendige i perioden frem til overtagelse. Som medlem av borettslaget og i tråd med vedtektene vil kjøper kunne få rettigheter og forpliktelser. Styret i borettslaget kan beslutte at det skal utarbeides husordensregler.
Det er utarbeidet vedtekter som følger vedlagt. Kjøper plikter å rette seg etter de til enhver tid gjeldende vedtekter. Selger tar forbehold om endringer som selger anser hensiktsmessige eller nødvendige i perioden frem til overtagelse. Som medlem av borettslaget og i tråd med vedtektene vil kjøper kunne få rettigheter og forpliktelser. Styret i borettslaget kan beslutte at det skal utarbeides husordensregler.
Adgang til utleie
Utleie av boligen reguleres av borettslagsloven §§ 5-3 til 5-10. Styret ønsker å praktisere en liberal utleiepraksis i den perioden selger er representert i styret i borettslaget. Styret vil derfor i denne perioden kunne gi samtykke til å leie ut leilighetene i inntil 3 år fra overtagelse, selv om vilkårene for utleie i §§ 5-4 til 5-6 ikke er oppfylt, jf. § 5-3.
Eventuell søknad om utleie må sendes styret før ferdigstillelse/overlevering og det er opp til styret om utleien
godkjennes.
For andelseiere som selv bor i boligen, er det ubegrenset adgang til å leie ut deler av boligen til andre. I tillegg kan andelseier leie ut hele boligen i opptil 30 døgn i løpet av året. Bruker av boligen har den sammen plikten som andelseieren til å følge borettslagsreglene og kan delta på generalforsamlingen, men har ikke stemmerett med mindre du som andelseier har gitt bruker fullmakt til å opptre på dine vegne.
Overtakelse
Bygg A planlegges ferdigstilt i perioden mars-juni 2024.
Denne andelen har overtagelse 13.03.2024 kl 10:00.
Forhåndsbefaring 27.02.2024 kl 10:00.
Utbygger skal senest 10 uker før ferdigstillelse av boligen gi kjøper skriftlig meddelelse om overtagelsesdato som skal ligge innenfor overtagelsesperioden. Dersom arbeidene forsinkes av forhold utenfor selgers kontroll, har selger krav på fristforlengelse, i henhold til bustadoppføringslova § 11.
Utbygger har rett til tilleggsfrist dersom kjøper krever endringer eller tilleggsarbeider, eller dersom vilkårene nevnt i bustadoppføringslova § 11 er oppfylt.
Det gjøres oppmerksom på at det etter oppgjørs- og overtagelsesdato fortsatt vil foregå byggearbeider på eiendommen, herunder arbeider med ferdigstillelse av de øvrige byggetrinnene, fellesarealer, tekniske installasjoner og utomhusarbeider. Kjøper kan ikke nekte å overta boligen selv om fradeling eller tinglysing av hjemmelsovergang ikke er gjennomført på overtagelsesdagen.
Utomhusarbeider kan ferdigstilles senere, avhengig av årstid. Ferdigstillelse av utomhusområdene kan påvirkes også av eventuelt senere byggetrinn. Dersom det gjenstår vesentlige utomhusarbeider skal megler holde tilbake deler av oppgjøret vis-à-vis selger. Boligene skal leveres i byggrengjort stand, og ferdigstilte fellesareal i ryddet stand.
Lovanvendelse
Kjøp av kontraktsposisjon reguleres av avhendingslova og kjøpslova. Rettsvern for kontraktsposisjonen sikres ved melding til utbygger/selger 1 om salget.
Bolighandelen som ny kjøper trer inn i følger Bustadoppføringsloven, som regulerer kjøpers (forbrukers)
rettigheter og plikter ved avtale om oppføring av bolig og kjøp av fast eiendom der bygningen ikke er fullført når avtalen inngås.
Kjøpers plikt til å betale kjøpesummen for kontraktsposisjonen faller bort dersom boligselger ikke ferdigstiller boligen, jf. avhendingslova § 1-1 fjerde ledd. Kjøper 1 har likevel ikke noe ansvar for mangelfull eller forsinket levering fra boligselgers side og Kjøper 2 har plikt til å betale hele kjøpesummen for kontraktsposisjonen i disse tilfellene. Dette gjelder selv om mangelen er vesentlig og gir Kjøper 2 rett til å heve kontrakten med boligselger.
Dersom Kjøper 2 ikke er forbruker, skal Kjøper 2 betale vederlaget for kontraktsposisjonen uavhengig av om boligselger ferdigstiller boligen eller ikke. I disse tilfellene skal vederlaget for kontraktsposisjonen innbetales i forbindelse med inngåelse av transportkontrakten og vederlaget vil bli utbetalt til Kjøper 1 selv om ikke Kjøper 2 har tatt over og fått rettsvern for boligen. Kjøper 2 har i disse tilfellene den fulle vederlagsrisikoen for kontraktsposisjonen, også dersom boligselger ikke på noen måte leverer i tråd med den opprinnelige kontrakten.
Videre har selger av kontraktsposisjonen ikke ansvar for mangelfull eller forsinket levering fra boligselgers side.
Kjøper har plikt til å betale hele vederlaget for kontraktsposisjonen i disse tilfellene. Kjøp av boligen reguleres av bustadoppføringsloven. Rettsvern for boligen sikres ved tinglysing av skjøte.
Kjøper har rett til å avbestille hele eller deler av ytelsen fra boligselgeren frem til overtagelse, men da mot et vederlag og/eller erstatning til boligselgeren i henhold til lovens § 52 og 53. Dersom det foreligger en mangel i henhold loven, kan kjøper holde igjen vederlag, kreve mangelen rettet, kreve prisavslag, kreve erstatning eller heve avtalen.
Budgivning
Bud kan legges inn på nettannonsen på "Gi bud knappen" eller via våre hjemmesider. Ved elektronisk budgivning så kan bud legges inn trygt og enkelt med bank-ID. Megler kan også kontaktes for tilsendelse av budkjema og budskjema finnes også i salgsoppgaven.
All budgivning må foregå ved skriftlighet, i tillegg må legitimasjon fremlegges. Forhøyelser bør også alltid inngis skriftlig, og vi oppfordrer alltid til at megler kontaktes pr. telefon i tillegg, ettersom det kan være forsinkelser på SMS-trafikk og e-post.
Skal budene bli behandlet og videreformidlet skriftlig til alle involverte parter, må alle bud ha en tilstrekkelig lang akseptfrist, jf. eiendomsmeglingsforskriften § 6-3.
Selger må skriftlig akseptere budet før aksept kan formidles til budgiver. Akseptfrist bør derfor være på minimum 30 minutter, og budforhøyelser må derfor skje i god tid før fristens utløp, helst 10 minutter før stående bud løper ut.
Bud kan ikke ha kortere frist enn kl. 12.00 første virkedag etter siste annonserte visning. Etter at eiendommen er solgt vil kjøper og selger få tilsendt budjournal. Øvrige budgivere kan få utlevert kopi av budjournalen i anonymisert form.
Ikke nøl med å ta kontakt dersom det er behov for bistand for å gi bud.
Diverse
Forbehold
Det forutsettes at kjøper gjør seg kjent med henviste dokumenter inkludert alle salgsoppgavens vedlegg før budgivning/kjøp.
På salgstidspunktet er ikke alle forhold avklart. Det gjøres derfor oppmerksom på at alle opplysninger er gitt med forbehold om rett til endringer som er hensiktsmessige eller nødvendige, eksempelvis på grunn av offentlige krav og godkjenninger.
Byggebeskrivelsen/leveransebeskrivelsen skal angi hvilken teknisk standard prosjektet leveres med, samt foreløpig angi hva komplett leveranse etter kjøpekontrakten innebærer. Dersom det ikke er tatt inn spesifiserte bestemmelser i kjøpekontrakten, gjelder følgende krav: De tekniske løsninger skal tilfredsstille plan- og bygningslovgivningen, herunder kravene i teknisk forskrift av 2017 Det gjøres oppmerksom på at endelig detaljprosjektering ikke er avsluttet. Detaljprosjektering av byggets bæresystem, ventilasjonssjakter, rørføringer med mer kan medføre mindre endringer i plassering og størrelser på vinduer. Det samme gjelder kjøkken og bad som vil kunne få endringer når det gjelder plassering av installasjoner som følge av tilpasning mot sjakter.
Endelig utforming av tekniske sjakter må avvente detaljprosjekteringen, og det kan derfor forekomme endringer av lengde og/eller bredde på disse. Videre kan vindu- og dørplasseringen i den enkelte leilighet avvike noe fra de generelle planer, som følge av blant annet den arkitektoniske utformingen av bygget, og branntekniske krav.
Arealer er oppgitt i BRA, inklusive innvendige sjakter. Mindre avvik kan forekomme i boligens areal grunnet endring i bærekonstruksjon, sjakter etc. Forutsatt at dette ikke fører til vesentlige endringer av leveransen, vil dette ikke medføre grunnlag for prisreduksjon eller prisavslag. Installasjoner på kjøkken og bad kan få endret plassering som følge av tilpasning mot sjakter.
Utbygger har rett til å foreta endringer som nevnt ovenfor, men vil alltid tilstrebe at endringer utføres på en slik måte at boligens generelle bruksverdi og standard ikke påvirkes vesentlig. Slike endringer gir ikke rett til prisjusteringer fra noen av partene og kan foretas uten forhåndsvarsel til kjøperne. Om det blir nødvendig å gjennomføre vesentlige endringer ut over forannevnte bestemmelser, plikter selger å varsle kjøper om endringene uten ugrunnet opphold.
Illustrasjoner i tegnings- og salgsmaterialet er ment som eksempler og kan vise forhold som ikke er i samsvar med leveranse. Dette kan være møblering, fargevalg, dør- og vindusform, antall vinduer, bygningsmessige detaljer, for eksempel fasadedetaljer, manglende inntegning av jakter/innkassinger/rørføringer/dragere/søyler, detaljer på fellesarealer, detaljer på lekeapparater, materialvalg, beplantning etc. I illustrasjonene er det vist leiligheter med glatt himling, alle leilighetene leveres med synlig v-fuger i himling. Det vil være mulig å bestille glatt himling som tilvalg. Plassering av teknisk utstyr i kjøkken er ikke endelig besluttet og vil kunne avvike fra det som vises på boligtegningene, tekniske anlegg og fremføringer til disse blir ikke inntegnet på tegninger som omfattes av kjøpekontrakt. Endelig plassering av disse bestemmes av hva som er hensiktsmessig og nødvendig.
Komplett salgsmateriell omfatter prospekt som også inneholder plantegninger og romskjema, grunnboksutskrift, reguleringsplan med bestemmelser, utkast til vedtekter, kjøpekontrakt, utkast til budsjett, prisliste, kjøpetilbud og forbrukerinformasjon om budgivning. Ved avvik i prospektet er det angivelsen i romskjemaet som er retningsgivende.
Plantegninger er ikke gitt i målestokk og kan ikke benyttes som grunnlag for bestilling av innredning, møbler og lignende.
Forbehold om eventuelle trykkfeil i prospektet og øvrige dokumenter.
Fordeling, sammenslåing og etablering/registrering og seksjonering av eiendommen som planlegges å tilhøre borettslaget, kan ta tid som følge av lang saksbehandlingstid i kommunen.
Utbygger gjør særskilt oppmerksom på at skjeggkre er funnet i flere boliger i Norge. Skjeggkre kan komme inn i boliger på en rekke forskjellige måter, både i forbindelse med oppføring av boligen, men også i forbindelse med innredning, bruk mv. Det er ikke et funksjonskrav under denne kjøpekontrakten at boligen skal være oppført på et vis som fjerner risikoen for forekomst av skjeggkre i boligen samt fellesarealer. Kontraktenes frister gjelder med følgende forbehold: Påvirkes utførelsen av arbeid under kontrakten av corona-viruset eller tiltak iverksatt i forbindelse med dette, gir dette rett til forlengelse av alle frister i kontrakten, herunder frist for ferdigstillelse av arbeidet. Dette gjelder både ved sykdom, karantene og/eller tiltak/begrensning innført eller anbefalt av offentlig myndighet. Dette gjelder også dersom utførelse eller leveranse fra underentreprenør eller annen leverandør påvirkes. Det samme forbeholdet gjelder dersom utførelsen av arbeid under kontrakten påvirkes av invasjonen av Ukraina eller tiltak iverksatt i forbindelse med dette. Fristene justeres automatisk.
Utbygger skal informere kjøper dersom det kan påregnes endringer i forhold til overtagelse. Ved forsinket overtagelse etter endelig varslet overtagelse, har kjøper krav på dagmulkt på 0,75 promille av kjøpesummen.
Ansvarlig megler
Iga Okon
Regulering
Salgsoppgaven beskriver vesentlig og lovpålagt informasjon om eiendommen
Se komplett salgsoppgaveNyttige lenker
Nærområdet
Sem & Johnsen
Annonseinformasjon
| FINN-kode | 335187829 |
|---|---|
| Sist endret | 04. mars 2024 18:58 |
| Referanse | 21-24-0025 |
Annonsene kan være mangelfulle i forhold til lovpålagt opplysningsplikt. Før bindende avtale inngås oppfordres interessenter til å innhente komplett informasjon fra meglerforetaket, selger eller utleier.









