Bildegalleri

IMG_7188.JPEG
Inaktiv
Sentrale kontorlokaler med en fantastisk atmosfære til leie.
Nøkkelinfo
- Areal
- 165 m²
- Bruttoareal
- 165 m²
- Tomt
- Eiet
Type lokale
Kontor
Beliggenhet
Lokalet har veldig fin beliggenhet i Moloveien. Dette er en gate med mye sjel, som ligger rett ved Thon Hotel,
meget sentralt i Ålesund sentrum.
Inneholder
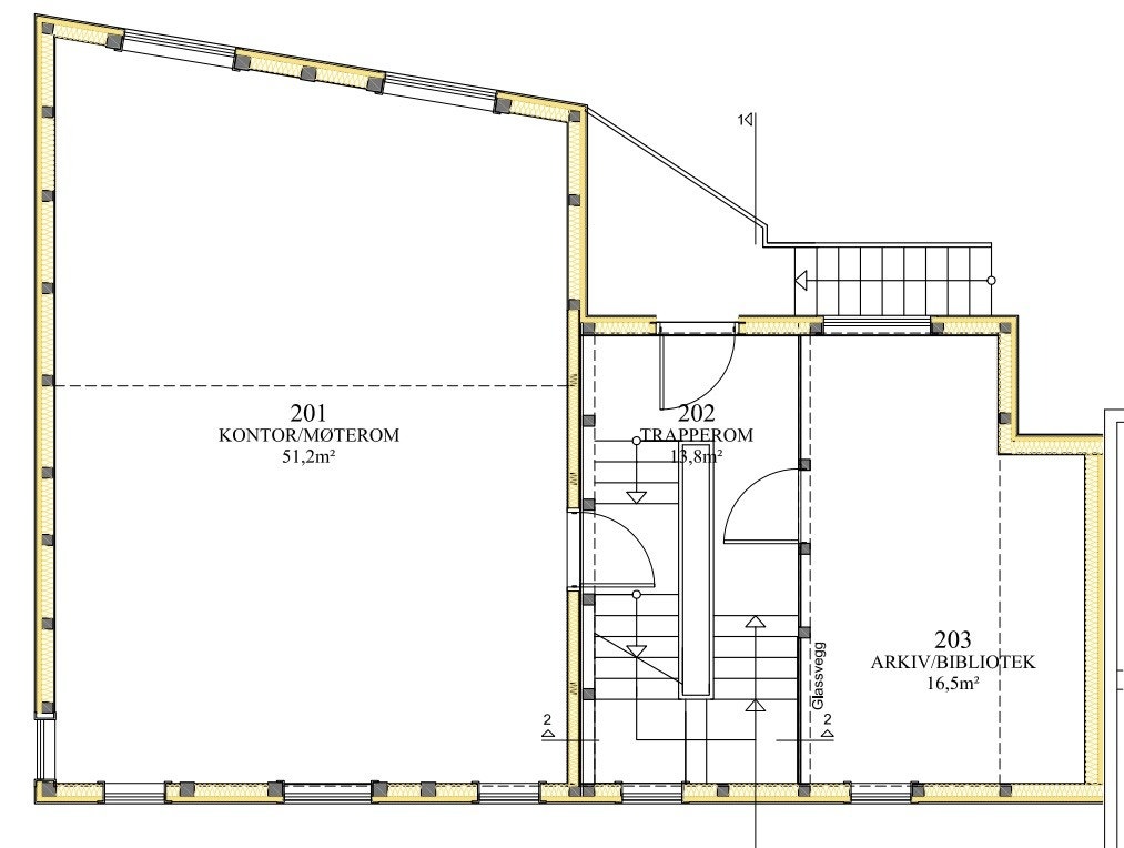
Lokalene ligger i 1., 2. og 3. etasje i Molovegen 12. Arealet utgjør totalt ca 165 kvm BTA. Inneholder 2 kontor, 2
store kontorlandskap/mingleareal/møterom/spiserom samt et kjøkken og toalett.
Parkering
To stk parkeringsplasser utenfor.
Matrikkelinformasjon
Kommunenr: 1508
Gårdsnr: 200
Bruksnr: 346
NB: Knappen for å vise hele beskrivelsen har kun en visuell effekt.
NB: Knappen for å vise hele beskrivelsen har kun en visuell effekt.
Visning
Ta kontakt for å avtale visning.
SUNNMØRE NÆRINGSMEGLING AS
Velkommen til oss
Nærområdet
Annonseinformasjon
| FINN-kode | 334902806 |
|---|---|
| Sist endret | 26. jan. 2024 13:01 |
| Referanse | SMN2.2335 |
Annonsene kan være mangelfulle i forhold til lovpålagt opplysningsplikt. Før bindende avtale inngås oppfordres interessenter til å innhente komplett informasjon fra meglerforetaket, selger eller utleier.










