Bildegalleri

Velkommen til Svartskardvegen 70
Meget lekker ny hytte på Svartskardberget - Ski in/out - Badstue - 4 soverom - 2 bad - Stor terrasse
- Omkostninger
- 545 kr
- Totalpris
- 8 500 545 kr
Nøkkelinfo
- Beliggenhet
- På fjellet
- Boligtype
- Hytte
- Eieform
- Eier (Selveier)
- Internt bruksareal
- 153 m² (BRA-i)
- Bruksareal
- 155 m²
- Eksternt bruksareal
- 2 m² (BRA-e)
- Balkong/Terrasse
- 36 m² (TBA)
- Tomteareal
- 892 m² (festet)
- Festeavgift
- 7 320 kr
- Byggeår
- 2023
- Soverom
- 4
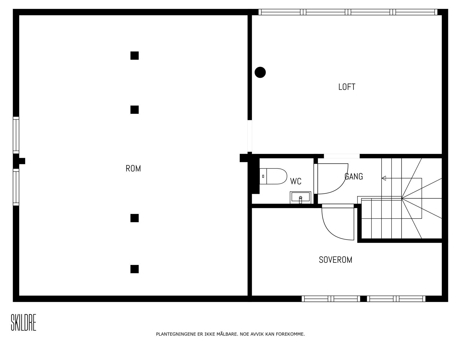
- Rom
- 7
- Energimerking
- D - Oransje
Fasiliteter
Om boligen
Velkommen til Svartskardvegen 70 - En innholdsrik nyoppført hytte med idyllisk beliggenhet på Kvitfjell. Eiendommen ligger fantastisk til på Svartskardberget, med preparerte langrennsløyper rett utenfor hytten og enkel adkomst til tilbringerløype til alpinanlegget. Kvitfjell-området er en helhetlig sportsdestinasjon, der alpinanlegget utmerker seg som et av Norges beste.
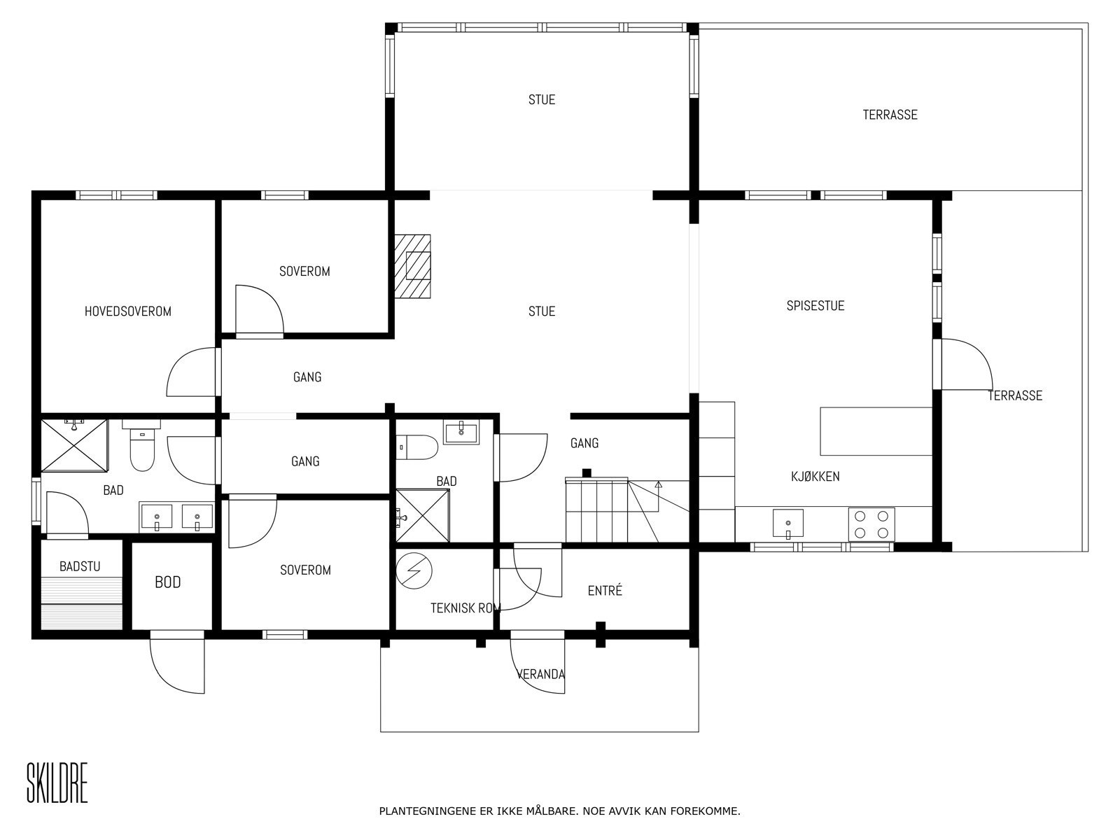
Lekker laftehytte med torvtak, bygget av RH Kvalitetsbygg AS. Meget familievennlig planløsning med fire soverom, to bad, toalettrom, badstue, to stuer, spisestue og et lekkert møbelsnekret kjøkken. Downlights med smartstyring fra Plejd. Vannbåren gulvvarme i hele 1.etasje. Stor terrasse med glassrekkverk. Det er klargjort for elbillader.
Kontakt megler for visning!
Salgsoppgaven beskriver vesentlig og lovpålagt informasjon om eiendommen
Se komplett salgsoppgaveNyttige lenker
Nærområdet

PrivatMegleren Dyve & Partnere
Elise Høiberg Lien
Annonseinformasjon
| FINN-kode | 334267966 |
|---|---|
| Sist endret | 03. des. 2025 14:54 |
| Referanse | 159230717 |
Annonsene kan være mangelfulle i forhold til lovpålagt opplysningsplikt. Før bindende avtale inngås oppfordres interessenter til å innhente komplett informasjon fra meglerforetaket, selger eller utleier.




















































