Bildegalleri

EIE eiendomsmegling er stolte av å kunne presentere Engveien 7B - En flott leilighet med gjennomgående fin standard
Flott borettslagsleilighet med gjennomgående fin standard | "Alt" inkludert i felleskostnadene | Balkong mot friområde
Nøkkelinfo
- Boligtype
- Leilighet
- Eieform
- Andel
- Soverom
- 1
- Primærrom
- 56 m²
- Bruksareal
- 56 m²
- Etasje
- 2
- Byggeår
- 1964
- Energimerking
- F - Mørkegrønn
- Rom
- 2
- Tomteareal
- 31 045 m² (eiet)
Om boligen
EIE eiendomsmegling er stolte av å kunne presentere Engveien 7B - En flott leilighet med gjennomgående fin standard
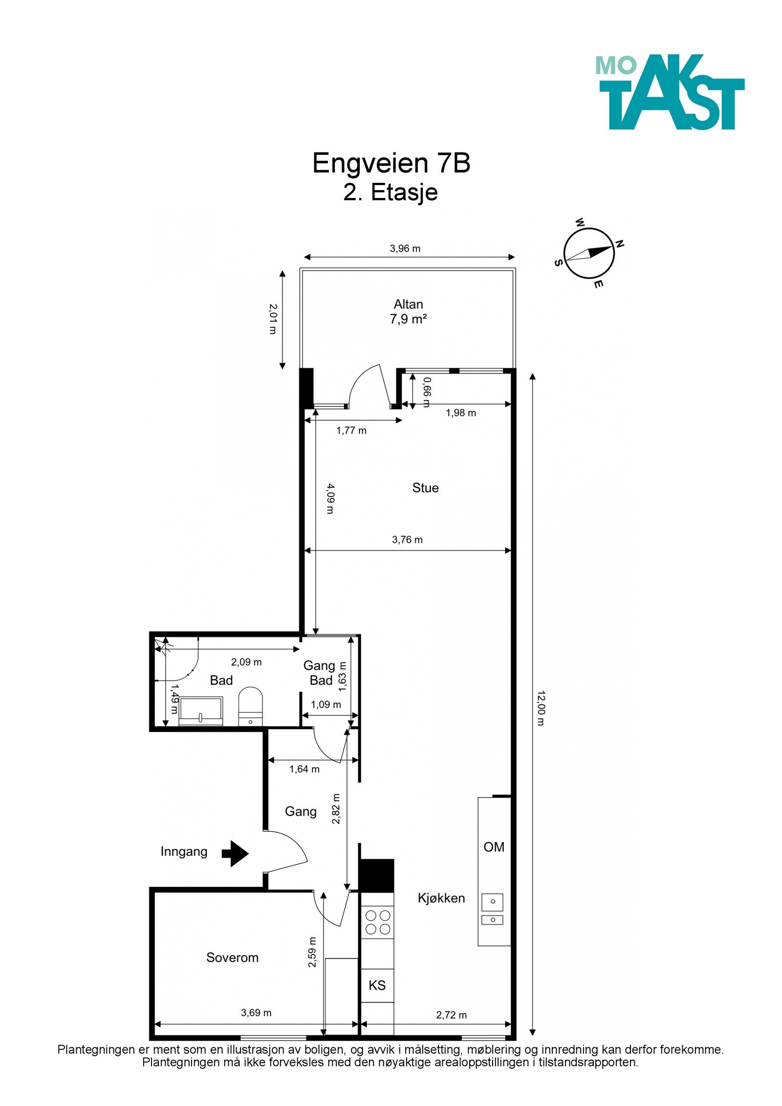
Velkommen til Engveien 7B! Her finner du en fin og lettstelt 2-roms leilighet i 2. etasje. Dersom du drømmer om å bo behagelig i en flott leilighet hvor "alt" er inkludert i felleskostnadene passer denne utmerket for deg. Leiligheten varmes opp med fjernvarme og varmekabler. Her kan du flytte rett inn i et hyggelig og veldrevet borettslag.
Kvaliteter vi ønsker å fremme:
- Moderne farge- og materialvalg
- Romslig stue
- Utvidet bad med fliser og varmekabler
- God bodplass i kjeller
- Lettstelt og gjennomgående fin leilighet
- Balkong mot friområde
- Sentral beliggenhet
Salgsoppgaven beskriver vesentlig og lovpålagt informasjon om eiendommen
Se komplett salgsoppgaveNærområdet
EIE eiendomsmegling Mo i Rana
Prisstatistikk
Engveien 7B
på annonsen
prisantydning per kvadratmeter
Prisfordeling
Pris per m² ligger 312 kr over snittet for leiligheter i Rana.
Grafen viser antall leiligheter solgt i Rana siste året fordelt på pris per m² - totalt 175 leiligheter
Antall boliger
Kvadratmeterpris tilsvarer prisantydning pluss fellesgjeld per kvadratmeter (p-rom eller BRA-i). Prisene i grafen er avrundet til nærmeste 1000 kr.
Annonseinformasjon
| FINN-kode | 334252485 |
|---|---|
| Sist endret | 27. jan. 2024 10:14 |
| Referanse | 100230056 |
Annonsene kan være mangelfulle i forhold til lovpålagt opplysningsplikt. Før bindende avtale inngås oppfordres interessenter til å innhente komplett informasjon fra meglerforetaket, selger eller utleier.



















