Bildegalleri

Suleskard Fjellgård
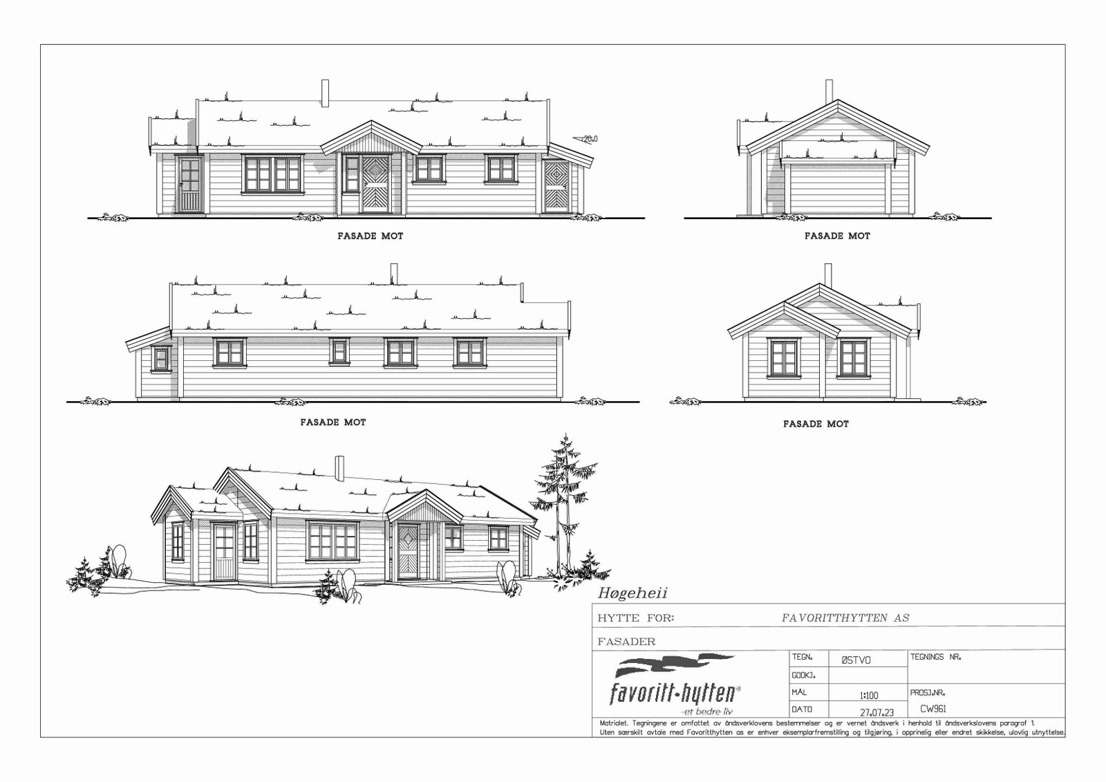
Tomt 30 - Hyttemodell Høgeheii
Kort om prosjektet
På ca 750 m.o.h finner du prosjekterte høyfjellshytter på Suleskard Fjellgård. Tomtene ligger på en fjellhylle med fantastisk utsikt. På Suleskard fjellgård. Vinteren er du omgitt av snødekket landskap med rom for skiaktiviteter. Om sommeren kan du benytte flotte turomgivelser
Prosjektets status
Planlegging
Utarbeidet ulike hyttemodeller
Salgsstart
Salget av hytter er i gang
Byggestart
Byggestart for hvert enkelt salg
Overtakelse
Etter avtale med Favoritthytten
Nøkkelinfo
- Beliggenhet
- På fjellet
- Boligtype
- Hytte
- Etasje
- 1
- Soverom
- 3
- Rom
- 4
- Internt bruksareal
- 67 m² (BRA-i)
- Bruksareal
- 72 m²
- Eksternt bruksareal
- 5 m² (BRA-e)
- Tomteareal
- 860 m² (festet)
- Festeavgift
- 6 394 kr
Fasiliteter
Beskrivelse
Hyttemodell
Favoritthytten har tilpasset tomten med en utvalgt hyttemodell som passer tomten, men det er mulig å velge andre modeller. Kontakt oss for mer informasjon om hvilke muligheter man har.
Nærområdet
EIE Nybygg Megleren For Nye Boliger AS

Favoritthytten AS
Utbygger
Annonsene kan være mangelfulle i forhold til lovpålagt opplysningsplikt. Før bindende avtale inngås oppfordres interessenter til å innhente komplett informasjon fra meglerforetaket, selger eller utleier.



