Bildegalleri

Utsikt fra tomt 14 - Kun ment for orientering, endringer vil kunne forekomme i forbindelse med utbygging av området
Ådneram Fjellgrend
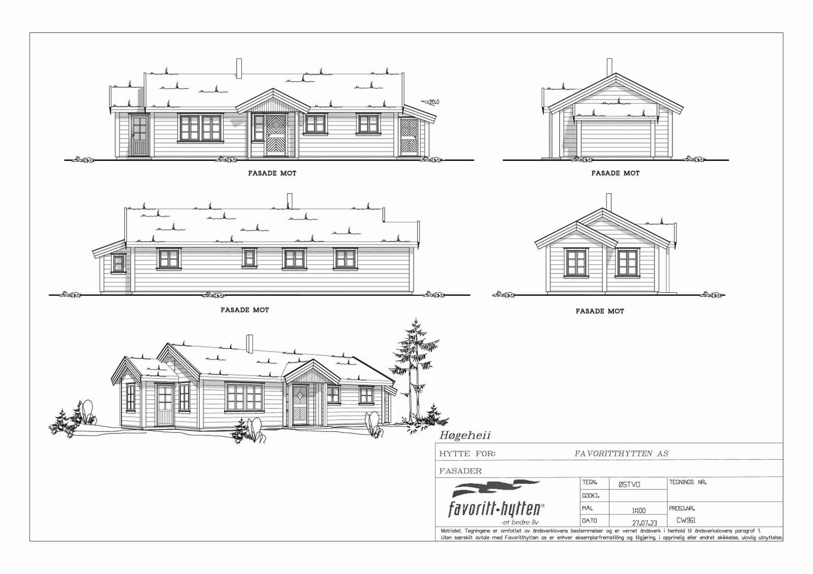
Tomt 14 - Hyttemodell Høgeheii
Kort om prosjektet
På ca 750 m.o.h finner du prosjekterte høyfjellshytter med selveiertomter på Ådneram Fjellgrend. Vinteren går du i møte med et snødekket landskap med rom for skiaktiviteter. Om sommeren kan du benytte nydelige turomgivelser og flere bademuligheter rett utenfor døren!
Prosjektets status
Planlegging
Utarbeidet ulike hyttemodeller
Salgsstart
Salget av hytter er i gang
Byggestart
Byggestart for hvert enkelt salg
Overtakelse
Etter avtale med Favoritthytten
Nøkkelinfo
- Beliggenhet
- På fjellet
- Boligtype
- Hytte
- Etasje
- 1
- Soverom
- 4
- Rom
- 5
- Internt bruksareal
- 67 m² (BRA-i)
- Bruksareal
- 72 m²
- Eksternt bruksareal
- 5 m² (BRA-e)
- Tomteareal
- 620 m² (eiet)
Fasiliteter
Beskrivelse
Hyttemodell
Favoritthytten har tilpasset tomten med en utvalgt hyttemodell som passer tomten, men det er mulig å velge andre modeller. Kontakt oss for mer informasjon om hvilke muligheter man har.
Nyttige lenker
Nærområdet
EIE Nybygg Megleren For Nye Boliger AS

Favoritthytten AS
Utbygger
Annonsene kan være mangelfulle i forhold til lovpålagt opplysningsplikt. Før bindende avtale inngås oppfordres interessenter til å innhente komplett informasjon fra meglerforetaket, selger eller utleier.








