Bildegalleri

Velkommen til Holaihagen! Det aktuelle bygget er til høyre i bildet. Avvik på illustrasjoner vil forekomme.
Arkitekttegnede leiligheter under planlegging sentralt i Elnesvågen
Arkitekttegnede leiligheter under planlegging sentralt i Elnesvågen
Prisantydning fra
4 600 000 kr
Prisantydning til
6 500 000 kr
Prosjektets status
Planlegging
-
Salgsstart
-
Byggestart
-
Overtakelse
-
Nøkkelinfo
- Boligtype
- Leilighet
- Soverom
- 3
- Primærrom
- 110 - 117 m²
- Bruksareal
- 110 - 122 m²
- Eieform
- Eier (Selveier)
Enheter i prosjektet
Sorter etter
| Enhet | P-rom | Soverom | Totalpris |
|---|---|---|---|
| C | 110 m² | 3 | 4 640 119 kr |
| D | 117 m² | 3 | 6 520 119 kr |
Visning
Beskrivelse
Oppdragsansvarlig
Privatmegleren Molde AS / Emil Hollingen
Selger/Utbygger
Innovativ Eiendom AS
Betegnelse
Gnr 46 bnr. 275.
Vedlagt matrikkelkart- og rapport viser eiendommens grenser og dens størrelse. Iht til dokumentet er eiendommen ca. 1141 kvm.
Prosjektet vil bli organisert som et eierseksjonssameie med 2 seksjoner og den enkelte bolig vil få tildelt seksjonsnummer. Vedlagt salgsoppgaven følger seksjoneringstegninger og vedtekter til seksjoneringsbegjæringen som vil bli omsøkt og tinglyst. Vedlagte seksjoneringstegninger viser hvilket areal den enkelte seksjonseier disponerer eksklusivt og hvilket areal som disponeres felles. Kjøper aksepterer vedlagt seksjoneringsbegjæring med tilhørende vedtekter.
Beliggenhet
Holalihagen har en sentral beliggenhet i Elnesvågen med kort vei til alle fasiliteter Elnesvågen har å by på. Prosjektet er utformet med en spennende arkitektur
Arealer og fordeling pr. etasje
Primærrom: 110 kvm - 117 kvm, Bruksareal: 110 kvm - 122 kvm
Seksjon 2(D): Leilighet i 1. etasje
P-rom: 117
BRA: 122
Seksjon 1: Leilighet i underetasje
P-rom: 110
BRA: 110
Det er viktig å presisere at alle arealene er omtrentlig oppgitt da husene er under oppføring og at det derfor vil kunne oppstå avvik. Oppgitte areal er beregnet av selger.
Innhold
Seksjon 2 (D): Leilighet i 1. etasje
Boligen inkluderer 1. etasjen med entré/gang, 3 soverom, 2 bad hvorav ett bad har adkomst direkte til vaskerom, bod og stor stue- og kjøkkenløsning. Fra stuen er det utgang til svært stor terrasse mot vest på ca. 57 kvm.
Til boligen medfølger garasje på ca. 40 kvm. Det er prosjektert inngang fra garasjen via terrassen.
Boligtypen egner seg godt til de som ønsker å ha alt på en flate med et flott uteområde mot vest.
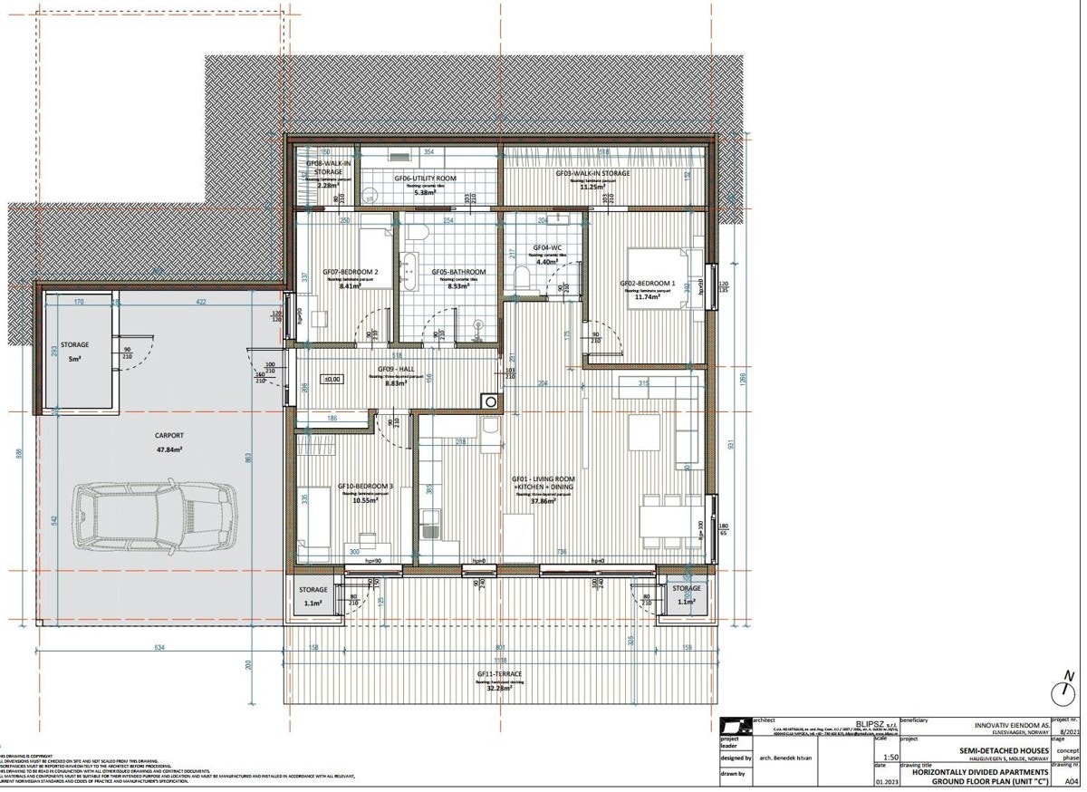
Seksjon 1 (C): Leilighet i underetasje:
Boligen inkluderer entré/gang, 3 soverom hvorav 2 soverom har eget garderoberom (walk in), bad med adkomst til vaskerom, gjestetoalett og åpen- stue og kjøkkenløsning. Videre har boligen 3 utvendige boder på henholdsvis ca. 5 kvm, 1 kvm og 1 kvm.
Fra stuen er det utgang til stor markterrasse på ca. 32 kvm. Boligen vil ha enkel tilgang på hage.
Til boligen medfølger carport med gulvareal på ca. 47 kvm.
Leveransebeskrivelse
Leveransebeskrivelse per 13.11.23. Se komplett leveransebeskrivelse med tilhørende romskjema i salgsoppgavens vedlegg.
GENERELT
Prosjektbeskrivelsen beskriver hvilke materialer, arbeider og tjenester som inngår i leveransen. Leveransen utføres i henhold til nyeste tekniske forskrift (TEK17) og bestemmelsene i Plan- og Bygningsloven. Der ikke annet fremgår av kontrakt, beskrivelser eller tegninger, gjelder norsk standard siste utgave. Ved uoverensstemmelser mellom tegning og beskrivelsen gjelder tekstdel foran tegningene. Inntegnede møbler og lamper er ikke medtatt i leveransen. For å skjule de tekniske installasjonene vil det kunne forekomme innkassinger og utforinger som ikke er anvist på tegningene/ prospektene. Vi tar forbehold om at visualiseringer kan avvike noe.
SITUASJONSPLAN/ UTOMHUSPLAN
Utvendig leveres det ferdig opparbeidet med gruset gårdsplass og plenområde klart for isåing.
Beplantning som vist på illustrasjoner medfølger ikke i leveransen. Dette er kun ment som illustrasjon.
MURER OG BETONG
Boligen bygges med isolert plate på mark iht. krav i TEK 17 med støpt bakvegger.
KONSTRUKSJON
Bindingsverk av tre.
FASADER/ TAK
Taket er tekket med takpapp. Fasadene er kledd med Tre kledning. Carport med tilknytning utvendig bod.
YTTERVEGGER
Yttervegger leveres som isolerte vegger med trekledning..
VINDUER, DØRER
Vinduer leveres med energiglass iht. teknisk forskrift. Vinduer og tre-balkongdører, farge RAL 7016 utvendig og innvendig. Ytterdør i tre, farge RAL 7016. Vinduer leveres i tre, PVC eller aluminium.
INNERVEGGER
Veggene isoleres og kles gips, sparkles og males, refereres til tabell under om farger på de enkelte rom:
Rom Farge
Stue: Jotun 10341 Kalk
Fondvegger stue: Jotun 1523 Marrakesh
Kjøkken: Jotun 10341 Kalk
Entré/trapp: Jotun 10341 Kalk
Bad: Flis gulv og vegg
Vaskerom: Matt hvit
Soverom:Jotun 1623 Marrakesh og Jotun 10341 Kalk
INNERDØRER
Innvendige kompaktdører i hvit, slett med ramme ink. karmer med demping.
LISTVERK OG UTFORINGER
Leveres ferdig malt med dels synlig innfesting.
GULV
Laminat. Flis på bad, vaskerom og entré.
TRAPP
NA
HIMLINGER
Sparklet gips med hvit matt farge. Listfritt mellom tak og vegg samt rundt vinduer.
KJØKKEN
Sigdal kjøkken, lys beige med sort matt håndtak Edge. Ventilator fra Røroshetta, modell Lyra 60 Sort. Siemens kombiskap, stekeovn, induksjonstopp og oppvaskmaskin.
BAD
Baderomsinnredning av Vikingbad, hvit. VVB 200L fra Oso. Blandebatterier EIRA fra Vikingbad. VITO soft-close toalett og TECE trykknapp.
FLIS
Bad - Vegg: District Grey 30x60
Bad - Gulv: District Grey 60x60
Gang - Gulv: District Grey 60x60
Vaskerom - Gulv: District Grey 60x60
VASKEROM
Vaskeromsinnredninger fra Alterna.
RØRLEGGERARBEIDER
Det leveres komplett rørleggerarbeid. Utførelsen er iht. dagens forskrifter og standard med rør i rør system. Vannstoppsystem.
ELEKTRIKERARBEIDER
Elektriske installasjoner leveres iht. NEK400. Antall stikkontakter pr. rom reguleres iht. denne norm. Lyssetting i stue og kjøkken er tilpasset arkitektur og det er utstrakt bruk av downlights for å få en god lyssetting. Viser til romplan for detaljert beskrivelse.
TV/ INTERNETT
Det er opplegg for fiber på stue og et soverom.
VENTILASJON
Balansert ventilasjon med varmegjenvinning iht. teknisk forskrift fra Villavent.
OPPVARMING
Elektrisk oppvarming med panelovner soverom og varmekabler på bad/entre/vaskerom.
Det er hensyntatt kapasitet i det elektriske anlegget for montering av varmepumpe, men det er ikke montert. Peisovn fra Nordpeis.
BRANNVARSLING/ SLUKKING
Boligen utstyres med røykvarsler og brannslukkingsapparat iht. Forskriftene. (TEK 17)
TERRASSE/ BALKONG
Balkong leveres med tett underdekke eller tett tak. Balkong leveres kledd med terrassebord. Rekkverk i treverk, glass og metall.
UTVENDIG
Utelys strategisk plassert for ferdsel og estetikk. Ringeknapp ved inngang, spylepunkt ved carport. Uttak for vann.
Adkomst
Eindommen vil ha adkomst fra Holalivegen nord for eiendommen.
Tinglyste rettigheter og forpliktelser
Kommunen har legalpant som sikkerhet for betaling av kommunale avgifter. Legalpant er pant som følger av loven, og som ikke tinglyses. Legalpant følger derfor eiendommen ved salg. På eiendommen kan det være tinglyst erklæringer som f eks rett for kommunen til å vedlikeholde rørsystemer for vann- og kloakk. Disse erklæringene vil følge eiendommen ved salg. Kontakt megler for nærmere informasjon.
Øvrige sameiere har panterett i seksjonen for krav mot sameieren som følge av sameieforholdet, jf. eierseksjonsloven § 31. Pantekravet kan ikke overstige 2G (Folketrygdens grunnbeløp). Sameiet kan vedtektsfeste ytterligere panterett for sameiet. Vedtektsfestet pant tinglyses i seksjonene.
Servitutter / rettigheter
Eiendommen overdras fri for pengeheftelser, med unntak av eventuelle erklæringer, avtaler, servitutter og panteheftelser som fremgår av salgsoppgaven og skal følge med eiendommen ved salg. Kjøpers bank vil få prioritet etter disse.
Følgende dokumenter er tinglyst på eiendommens grunnboksblad:
2023/1026354-1/200 REGISTRERING AV GRUNN TINGLYST
20.09.2023 15:44
DENNE MATRIKKELENHET OPPRETTET FRA:Knr:1579 Gnr:46 Bnr:18
Elektronisk innsendt
1937/2622-1/60 UTSKIFTING TINGLYST
29.12.1937
OVERFØRT FRA: 1579-46/18
Gjelder denne registerenheten med flere
1938/2314-1/60 UTSKIFTING TINGLYST
21.11.1938
Overført fra gnr 47 bnr 5
OVERFØRT FRA: 1579-46/18
Gjelder denne registerenheten med flere
1942/858-1/60 FORKJØPSRETT TINGLYST
24.04.1942
RETTIGHETSHAVER: SLEKTEN
OVERFØRT FRA: 1579-46/18
Gjelder denne registerenheten med flere
1953/2542-1/60 ERKLÆRING/AVTALE TINGLYST
08.08.1953
Bestemmelse om felles vannverk/ledning
Rettighetshaver Feten og Dale Vassverk
OVERFØRT FRA: 1579-46/18
Gjelder denne registerenheten med flere
1959/410-7/60 BESTEMMELSE IFLG. SKJØTE TINGLYST
06.02.1959
Bestemmelse om naustplass Asbjørn og Albert Haukås skal eie
1/2 hver av naust.
OVERFØRT FRA: 1579-46/18
Gjelder denne registerenheten med flere
1961/2196-1/60 ERKLÆRING/AVTALE TINGLYST
30.05.1961
Bestemmelse om felles vannverk/ledning
Rettighetshaver Feten og Dale Vassverk
OVERFØRT FRA: 1579-46/18
Gjelder denne registerenheten med flere
Selger erklærer at overnevnte dokumenter ikke gir rettigheter eller forpliktelser til bnr. 275 og sådeles ikke er relevant for kjøper.
Dokumentene kan fås ved henvendelse til megler.
Vei / Vann / Avløp
Adkomst via offentlig vei.
Eiendommen vil bli tilknyttet offentlig vann- og avløpsnett via private stikk- og fellesledninger. Vi gjør oppmerksom på at private ledninger vedlikeholdes for eiers regning.
Ferdigattest eller midl. brukstillatelse
Det er krav om at midlertidig brukstillatelse gis før overtagelse, hvor kjøper kan ha rett til å holde tilbake et forholdsmessig beløp av kjøpesummen som sikkerhet for uferdig arbeid/at det blir utstedt ferdigattest.
Verdi ved skattefastsetting
Verdien ved skattefastsetting er p.t. ikke fastsatt. Verdien ved skattefastsetting fastsettes av Ligningskontoret etter beregningsmodell som tar hensyn til om boligen er en såkalt "primærbolig" (der boligeieren er folkeregistrert bosatt) eller "sekundærbolig" (alle boliger man eier, men ikke bor fast i). Interessenter oppfordres til å sjekke www.skatteetaten.no eller kontakte ansvarlig megler for nærmere informasjon om verdien ved skattefastsetting.
Reguleringsforhold
Iht kommuneplanens arealdel 2015-2025, skal reguleringsplan fortsatt gjelde.
Iht reguleringsplan med plannavn Haugli og ID 75013, er eiendommen avsatt til konsetrert småhusbebyggelse. Eiendommen ligger under faltnavn KS2.
Se utdrag fra reguleringsplan under:
"DELOMRÅDE A - FRÆNA KOMMUNE.
§ 1 Delområde A omfatter trafostasjon/kommunalteknisk virksomhet og boligområdet
vest for trafostasjonen, og er nyttet til:
Byggeområde
Boliger i småhus.
Konsentrert småhusbebyggelse.
Trafikkområde
Veger for kjørende og gående trafikk, trafikkdeler.
Friområde
Gangstier, lekeplasser og område for ballplass og sentrallekeplass for barn, turveg.
Fellesområde
Felles garasjeplass, parkering og tundannelse.
Fareområde
Trafostasjon/kommunalteknisk virksomhet og område under høgspentlinjer.Haugli, Planident 75013
§ 2 Byggeområde
2.1 Boliger i småhus
Bolighus kan oppføres i inntil 2 etasjer. Der sokkeletasje tilfredsstiller kravet til
beboelse, regnes denne som 1. etasje. Uthus (garasje) kan bare oppføres i 1 etasje.
Bygningene skal i størst mulig grad planlegges i forhold til hverandre. Maksimal
utnyttingsgrad pr. tomt er 25% BYA. For felt KS1-2 gjelder en annen utnyttingsgrad,
jf. 2.2.
2.1.1 Maksimal gesimshøyde for enetasjes hus er 3,5 m. Maksimal gesimshøyde for
toetasjes hus er 7,0 m. Høyden til gesims måles fra gjennomsnittlig opprinnelige
terreng.
2.1.2 Til hver bolig skal det være plass til en bil i garasje eller carport pluss en
oppstillingsplass for bil på fellesområdet eller på egen tomt. Fellesgarasjer føres opp
samtidig når dette er mulig.
2.2 Konsentrert småhusbebyggelse
Innenfor hvert av formålene KS1 og KS2 kan det føres opp en tomannsbolig.
Utnyttelsesgrad innenfor hvert av formålene er satt til 45% BYA.
2.2.1 Det kan føres opp garasje/carport. Frittstående garasjer/carport har maksimal gesims
på 4 meter, eller maksimal mønehøyde på 5 meter. Det skal anlegges minst 2
parkeringsplasser per boenhet som skal være tilgjengelig til enhver tid, der minst en
kan være garasje/carport. For leiligheter under 50 m² er 1 plass tilstrekkelig.
2.2.2 For bygninger med flatt tak eller pulttak er maksimal gesimshøyde 7,0 meter. For
bygninger med saltak eller valmtak er maksimal mønehøyde 8,0 meter. Høyden måles
fra gjennomsnittlig opprinnelig terreng.
2.2.3 Tekniske installasjoner på flatt tak kan ha maks. høyde på 1 m over høyeste gesims,
og areal på maks. 10 % av takflaten.
§ 3 Utvendige farger og materialbruk skal være naturlig avstemt til omgivelsene.
§ 4 Gjerde til innhegning av de enkelte eiendommer bør i alminnelighet unngås. Gjerder
og skjermvegger bør bare brukes som et ledd i bebyggelsens gruppering og utforming
for å skape uterom skjermet mot vind og innsikt. Utvendige tørkeplasser må skjermes
og fortrinnsvis bygges sammen med bolighus eller garasje / carport med samme
materialer og farger. Søppeldunker skal ha en diskret plassering fra vegen og kan
innebygges med samme materialer som huset er oppført av. Utvendige pergolaer og
solskjermer må underordnes bolighusets material- og fargebruk.
§ 5 Grense mot veg og naboer kan markeres ved beplantning, men ingen tomt må
beplantes slik at det blir til ulempe for trafikksikkerheten.Haugli, Planident 75013
§ 6 Ved planering av tomtene er det ikke tillatt å fylle igjen veggrøfter eller på annen
måte gjøre skade på offentlig veg. I avkjørsler skal det legges inn min. 9" rør.
§ 7 Innenfor frisiktsonene skal det være fri sikt i en høyde av 0,5 m over de tilstøtende
vegers planum. Området må ikke gis en slik utnyttelse at fri sikt på noe tidspunkt kan
hindres.
§ 8 Etter at disse bestemmelsene er trådt i kraft, er det ikke tillatt ved private avtaler å
opprette forhold som strider mot bestemmelsene."
Vedrørende naboeiendommen:
Selger har også planlagt utbygging av prosjekt på gnr. 46 bnr. 274 (naboeiendommen mot vest). Pt. er det planlagt en tomannsbolig på denne tomten, men det er ikke omsøkt tiltak på eiendommen per 09.11.23. Det tas forbehold om selger kan endre planer for bnr. 274.
Visualiseringen av dette prosjektet viser tenkt prosjekt på naboeiendommen per 09.11.23. Som nevnt over, tas det forbehold om at prosjektet kan bli annerledes enn illustrert. Det har tidligere vært prosjekter et annet prosjekt, nemlig en vertikaldelt tomannsbolig. Dette ligger også innenfor mulighetsrommet på bnr. 274.
Vedtekter
Vedtekter for sameiet er vedlagt salgsoppgaven. Det forutsettes at kjøper aksepterer vedtektene som grunnlag for avtalen. Eventuelle forslag til endringer fremmes på senere årsmøter i henhold til vedtektene og eierseksjonsloven
Beskrivelse av sameiet
Boligprosjektet vil bli organsiert som et eierseksjonssameie. Selger plikter å bistå til stifting av sameiet.
En sameier eier en andel i eiendommen, med tilknyttet enerett til bruk av sin bruksenhet, jf. eierseksjonsloven § 25.
Ingen kan erverve mer enn to boligseksjoner i et sameie, jf. eierseksjonsloven § 23 første ledd. Dersom et erverv har funnet sted i strid med eierseksjonslovens regler kan Kartverket nekte overskjøting.
Dersom overskjøting blir nektet, er kjøper likevel forpliktet til å gjennomføre handelen med selger, og oppgjør til selger vil finne sted tross manglende overskjøting.
Interessenter oppfordres til å sette seg inn i sameiets vedtekter.
Det er ikke utarbeidet budsjett i sameiet. Budsjett vil bli fastsatt i forbindelse med stiftelsesmøte. Det må påregnes kostnader til felles bygningsforsikring, vedlikehold, snøbrøyting, regnskap etc. Det vil bli fremlagt fiber til den enkelte seksjon. Den enkelte seksjon tegner selv abonnement etter eget ønske.
Videre må det påregnes dugnad til vedlikehold av fellesareal som ikke disponeres eksulisvt av den enkelte seksjon.
Andre faste løpende kostnader
Det er lagt opp till felleskostnader i sameiet, ref. "Beskrivelse av sameiet". Pt. er det ikke utarbeidet budsjett for dette. Budsjett vil bli fastsatt i forbindelse med stiftelsesmøte.
Kommunale avgifter og eiendomsskatt er ikke beregnet for eiendommen. Hustadvika kommune opererer med eiendomsskatt, men Hustadvika kommune operer per 2023 med 3 års fritak for eiendomsskatt ved ferdigstillelse. Kontakt Hustadvika kommune for mer informasjon angående kommunale avgifter og Skatteetaten for mer informasjon angående fremtidig eiendomsskatt.
Oppgjør
Kjøpesum og omkostninger innbetales til meglers klientkonto senest 2 dager før overtagelsesdato. Kjøper er selv ansvarlig for at alle innbetalinger er meglerforetaket i hende til avtalt tid og må selv påse at evt. bankforbindelse er informert om dette.
Kjøper er inneforstått med at tilfredsstillende finansieringsbekreftelse for hele kjøpesummen skal forelegges megler når avtale om kjøp inngås, og at disse opplysningene kan bli videreformidlet til utbyggers byggelånsbank. Hvis nåværende bolig skal benyttes helt eller delvis til finansiering av kjøpet kan denne stilles som sikkerhet etter verdivurdering utført av PrivatMegleren.
Finansiering
Kontakt megler for avklaring av finansielle forhold, herunder lån til kjøp av eiendom. Privatmegleren har avtale med Nordea om formidling av lån og andre finansielle tjenester. Privatmegleren mottar godtgjørelse for dette.
Adgang til utleie
Eiendommen kan i sin helhet fritt leies ut til boligformål. Det vil normalt være anledning til utleie av hele eiendommen eller enkeltrom, så fremt arealet er godkjent for varig opphold iht. plan- og bygningsloven og har forsvarlig radonnivå
Konsesjon / Odel
Det er ikke krav til konsesjon ved erverv av eiendommen. Det hefter ikke odel på eiendommen.
Sikkerhetsstillelse
Alle eiendomsmeglingsforetak har lovpålagt forsikring av klientmidler begrenset oppad til kr 45 mill. Enkeltsaker er forsikret inntil kr 15 mill. Dersom kjøpers låneinstitusjon krever tilleggsforsikring ved omsetning over 15 millioner, må kjøper selv eller dennes låneinstitusjon dekke utgiftene forbundet med dette.
Planlagt overtagelse
Forventet ferdigstillelse er Q1 2025/Q2 2025 for enhetene i prosjektet under forutsetning for at det gis igangsettelestillatelse til prosjektet Q1 2024 og at det minimum er solgt 1 bolig i prosjektet innen utløpet av Q1 2023. Dette gjelder ikke som en bindende frist for å ha boligen klar for overtakelse, herunder ikke grunnlag for å kreve dagmulkt. En senere oppstart arbeider og/eller en lengre byggetid enn forventet kan medføre en senere overtakelse.
Forhold utenfor selgers kontroll kan påvirke oppstart/byggetid, slik som saksbehandlingstid hos offentlige myndigheter, klager på og klagebehandling av offentlige tillatelser, samt den pågående pandemien som kan påvirke både leveranse av materialer og nødvendig personell med mer.
Byggetid er estimert til ca. 10-12 måneder fra byggestart. Den forventede byggetiden er angitt basert på en normalsituasjon, der hindringer utenfor selgers kontroll ikke påvirker fremdriften. Kjøper plikter å overta selv om seksjonering ikke er tinglyst per overtagelsen. Overtagelse kan skje mot § 47-garanti for sluttoppgjøret, eller at sluttoppgjøret beror på klientkonto.
Hver av partene kan si seg fri fra avtalen dersom arbeidene ikke kan komme i gang eller må avbrytes i så lang tid at forutsetningene for avtalen blir vesentlig endret, jfr. bufl. § 60.
Selger vil cirka 3 måneder før forventet ferdigstillelse varsle kjøper om antatt overtakelsesmåned. Endelig overtakelsesdato vil bli gitt med minst 6 uker før overtakelse. Endelig overtakelsdato er i utgangspunktet dagmulktsutløsende.
Midlertidig brukstillatelse eller ferdigattest må foreligge før overtagelse kan gjennomføres.
Selgeren skal informere kjøperen dersom det kan påregnes endringer i forhold til den planlagte perioden for overtakelse, herunder som følge av endrings- eller tilleggsarbeider bestilt av kjøperen.
Boligen overleveres i ryddet og byggerengjort stand.
Selgers forbehold
Selger tar følgende forbehold for gjennomføring av kontrakten:
- Igangsettelsetillatelse for prosjektet.
- Salg av 1 bolig før byggestart.
- Tilfredstillende byggelånsfinansiering.
Videre tas det ytterligere forbehold for gjennomføring av kontrakten:
- Det tas forbehold om at det kan bli mindre vesentlige endringer og arealavvik som følge av prosjektering, videre bearbeiding og detaljering av prosjektet ved arkitekt, rådgivere og under utførelse.
- Det tas forbehold om uvanlig lang saksbehandlingstid i Plan- og bygningsetaten, Molde kommune.
- Det tas forbehold om mindre endringer som følge av krav fra offentlige instanser.
- Det tas forbehold om at planskisser og situasjonsplan kun er ment som forslag og at standard leveranse kan avvike fra disse. Der det er avvik mellom planskisser, situasjonsplan og leveransebeskrivelse er det leveransebeskrivelse som gjelder.
- Det tas forbehold om at det vil være avvik, både når det gjelder utsikt og utsyn, samt bygningsmessig avvik. 3D-bildene er kun ment som illustrasjoner.
Kjøpekontrakt
Det vil bli benyttet standard kjøpekontrakt for alle salg i prosjektet. Det forutsettes at bud er lagt inn på grunnlag av denne kjøpekontrakten og eventuell aksept av bud fra selger gis under samme forutsetning. Standard kjøpekontrakt er vedlagt som del av denne salgsoppgaven
Solgt ihht bustadoppføringsloven
Boligene selges i henhold til Bustadoppføringslova som regulerer kjøpers (forbrukers) rettigheter og plikter ved avtale om oppføring av bolig og kjøp av fast eiendom der bygningen ikke er fullført når avtalen inngås. Ved salg til aksjeselskap legges Avhendingslovens bestemmelser til grunn. For øvrig gjelder Lov om eierseksjoner for eierseksjonssameiet og driften av dette.
Avbestilling
Kapittel VI i Bustadoppføringslova gir kjøper en avbestillingsrett. Dersom slik rett benyttes vil kjøper bli holdt ansvarlig for selgers merkostnader og tap som følge av en eventuell avbestilling. Bestilte tilvalg og endringer skal i slike tilfeller, i sin helhet, uansett betales av kjøper.
Tilvalg og endringer
Kjøperen kan kreve å få utført endrings- eller tilleggsarbeid som endrer kjøpesummen oppad til 15 %, jf. buofl. § 9. Alle endrings- eller tilleggsarbeider som kreves av kjøper skal avtales skriftlig mellom partene.
Avtalen skal redegjøre for pris og ev. fristforlengelse som følge av endringene.
Garantier
Det stilles garantier i henhold til Bustadoppføringslovas bestemmelser. Garanti etter § 12 vil bli stilt i forbindelse med avtaleinngåelse. Garantien skal være pålydende 3% av kjøpesummen i byggetiden og 5% i 5 år etter overlevering av boligene til kjøper. Garanti etter § 47 forutsettes stilt om selger ønsker utbetalt forskudd/delinnbetaling/sluttoppgjør før hjemmelsovergang. Eventuelle påkrevde endringer av garantier ved eventuelle videresalg/transporter utføres ikke og bekostes ikke av selger.
Forsikring
Frem til overtagelse vil eiendommen være forsikret av selger. Etter overtagelse vil eiendommen forsikres gjennom sameiets fellesforsikring. Kjøper må selv besørge innboforsikring og forsikring av eventuelle særskilte påkostninger.
Budgiving
Boligene selges til fastpris. Selger står imidlertid fritt til å akseptere og avslå ethvert bud.
Alle bud/kjøpstilbud på eiendommen skal være skriftlig og sendes meglerforetaket pr. fax, mail, sms eller via vår "gi bud"-knapp på våre nettsider. Knappen finner du også på Privatmeglerens hjemmeside for prosjektet, se på den enkelte bolig
Selger står fritt til å akseptere eller avslå ethvert kjøpetilbud, herunder bestemme om de vil akseptere salg til selskaper, samt om de vil akseptere salg av flere boliger/eiendommer til samme kjøper.
Som budgiver hos Privatmegleren kan du kreve budjournal fremlagt så snart handel er gjennomført.
Innhold i budjournal er lovregulert, og innebærer at budgivere må akseptere at opplysninger om budet kan bli fremlagt for selger, kjøper og øvrige budgivere. Budgiver som ikke blir kjøper, kan kreve kopi av anonymisert budjournal.
Det oppfordres til å ha finansiering klart ved innsending av kjøpetilbud. Bud med forbehold om finansiering vil bli prioritert etter bud uten.
Lov om hvitvasking
Megler er underlagt lov om hvitvasking som innebærer plikt til å melde ifra til Økokrim om mistenkelige transaksjoner
Vedlegg til salgsoppgaven
Det forutsettes at kjøper har gjort seg kjent med vedleggene i salgsoppgaven som er opplistet under:
Kjøpekontrakt AS Innovativ Eiendom
Byggetegning - Fasade sør og vest
Byggetegning - Fasade øst og nord
Byggetegning - Plantegning leilighet C
Byggetegning - Plantegning leilighet D
Matrikkelbrev 46/275
Matrikkelkart og -rapport
Situasjonsplan
Snittegninger 1
Snittegninger 2
Perspektivtegning kjøkken - Leilighet C
Perspektivtegning kjøkken - Leilighet D
Leveransebeskrivelse datert 13.11.23
Vedtekter Sameie
Eksklusiv bruksrett
Seksjoneringstegninger
PlanRapport
Kommuneplankart
Bestemmelser kommuneplan
Reguleringsplankart
Reguleringsbestemmelser
Kulturminnerapport
Nærområde
Bud og budgivning
Meglers vederlag og utlegg
Vederlag pr. enhet kr. 56 250,-
Tilrettelegging pr. enhet kr. 6 250,-
Oppgjørsgebyr pr. enhet kr. 5 000,-
Visninger kr. 2 500,-
Tilrettelgging for kommer for salg- annonse kr. 6 250,-
Kommer for salg annonse pr. mnd kr. 4 375,-
Markedspakke nybygg kr. 18 750,-
Prosjektannonse på Finn.no pr mnd kr. 3 125,-
Megler har rett til vederlag i samsvar med eiendomsmeglingsloven kapittel 7 dersom enhetene i prosjektet ikke selges.
Nyttige lenker
Nærområdet
Privatmegleren Molde
Innovativ Eiendom AS
Utbygger
Annonseinformasjon
| FINN-kode | 333684369 |
|---|---|
| Sist endret | 08. feb. 2024 08:48 |
| Referanse | 45239002 |
Annonsene kan være mangelfulle i forhold til lovpålagt opplysningsplikt. Før bindende avtale inngås oppfordres interessenter til å innhente komplett informasjon fra meglerforetaket, selger eller utleier.










