Bildegalleri

Nydelig utsikt mot Vest
Nye eneboliger i Buskhammeren boligfelt
Sentral beliggenhet. Nydelig utsikt! - 3stk nye eneboliger med 4 soverom
Pris på lån: fra 20 242 kr/mnd
Eff.rente 5,14 %. 3 453 403 o/25 år. Kostnad: 2 619 197 kr. Totalt 6 072 600 kr.
LånekalkulatorProsjektets status
Planlegging
Vi har flere boligmodeller prosjektert
Salgsstart
01.02.2025
Byggestart
Etter forhåndssalg og byggegodkjenning
Overtakelse
Ca 8 måneder etter oppstart trebygg
Nøkkelinfo
- Boligtype
- Enebolig
- Eieform
- Eier (Selveier)
- Soverom
- 4
- Rom
- 5
- Etasje
- 1
- Antall etasjer
- 1
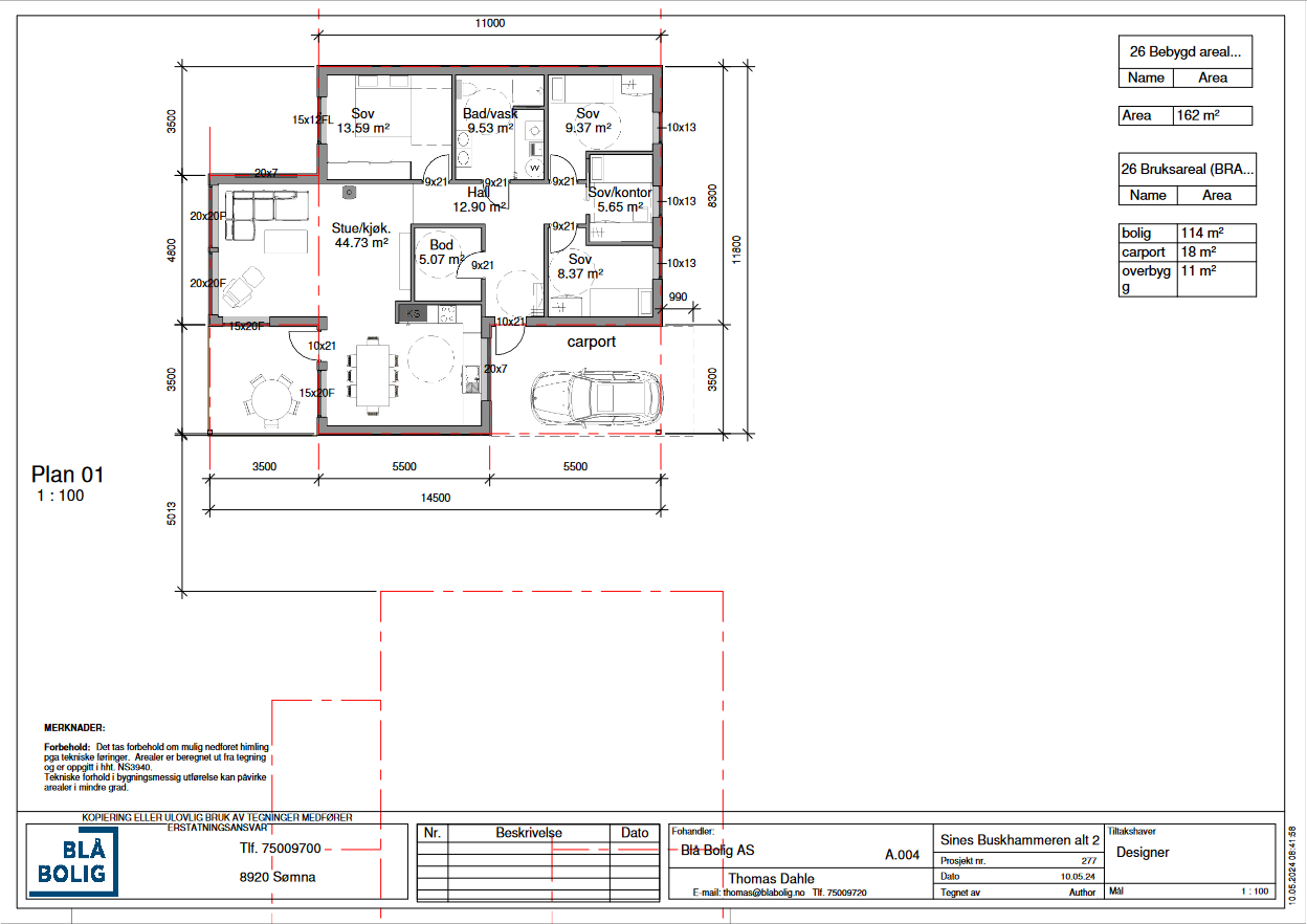
- Internt bruksareal
- 114 m² (BRA-i)
- Bruksareal
- 143 m²
- Eksternt bruksareal
- 18 m² (BRA-e)
- Innglasset balkong
- 11 m² (BRA-b)
- Grunnflate
- 162 m²
Fasiliteter
Visning
Ta kontakt for å avtale visning.Beskrivelse
Her presenterer vi nytt forslag!
Vi har byttet ut 4 enheter i rekke da vi fikk tilbakemeldinger om at enhetene ble litt for små med 2 soverom.
- Her er vi derfor gått mye opp i størrelse, og presenterer 3 stk frittstående store eneboliger!
- Eneboligene har 4 soverom, stor stue/kjøkken, carport, terrasse, og en unik utsikt og beliggenhet!
- Bebygd areal 162m2 pr. enebolig. 143m2 Bruksareal!
Prosjektet vil bli søkt for finansiering i Husbanken straks byggegodkjenning foreligger!
Priseksempel er fra èn av boligene, helt ferdig og innflyttingsklar!
- Ta kontakt om du har spørsmål til prosjektet!
Nærområdet

Blå Bolig AS
Annonsene kan være mangelfulle i forhold til lovpålagt opplysningsplikt. Før bindende avtale inngås oppfordres interessenter til å innhente komplett informasjon fra meglerforetaket, selger eller utleier.









