Bildegalleri

2 syd-vestvendte og spennende eneboliger med gode bo-kvaliteter. Hage og stor takterrasse. Veldig gode lys og solforhold!
Feltspatveien 29 og 33.
Utsolgt! Ta kontakt for info om nye boligprosjekt på Lauvåsen!
Prisantydning
Solgt
Kort om prosjektet
Feltspatveien 29 og 33 er nå solgt. Snart legges det ut flere spennende boliger på Lauvåsen, ta kontakt for å få info om de neste prosjektene!
Prosjektets status
Planlegging
desember
Salgsstart
januar
Byggestart
Etter avtale og godkjent IG
Overtakelse
Ca 9 mnd etter IG/byggestart
Nøkkelinfo
- Eieform
- Eier (Selveier)
Fasiliteter
Visning
Ta kontakt for å avtale visning.Beskrivelse
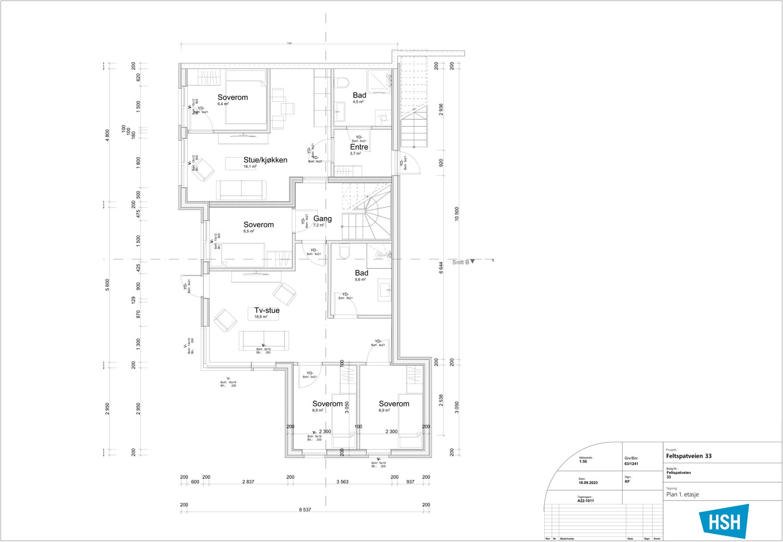
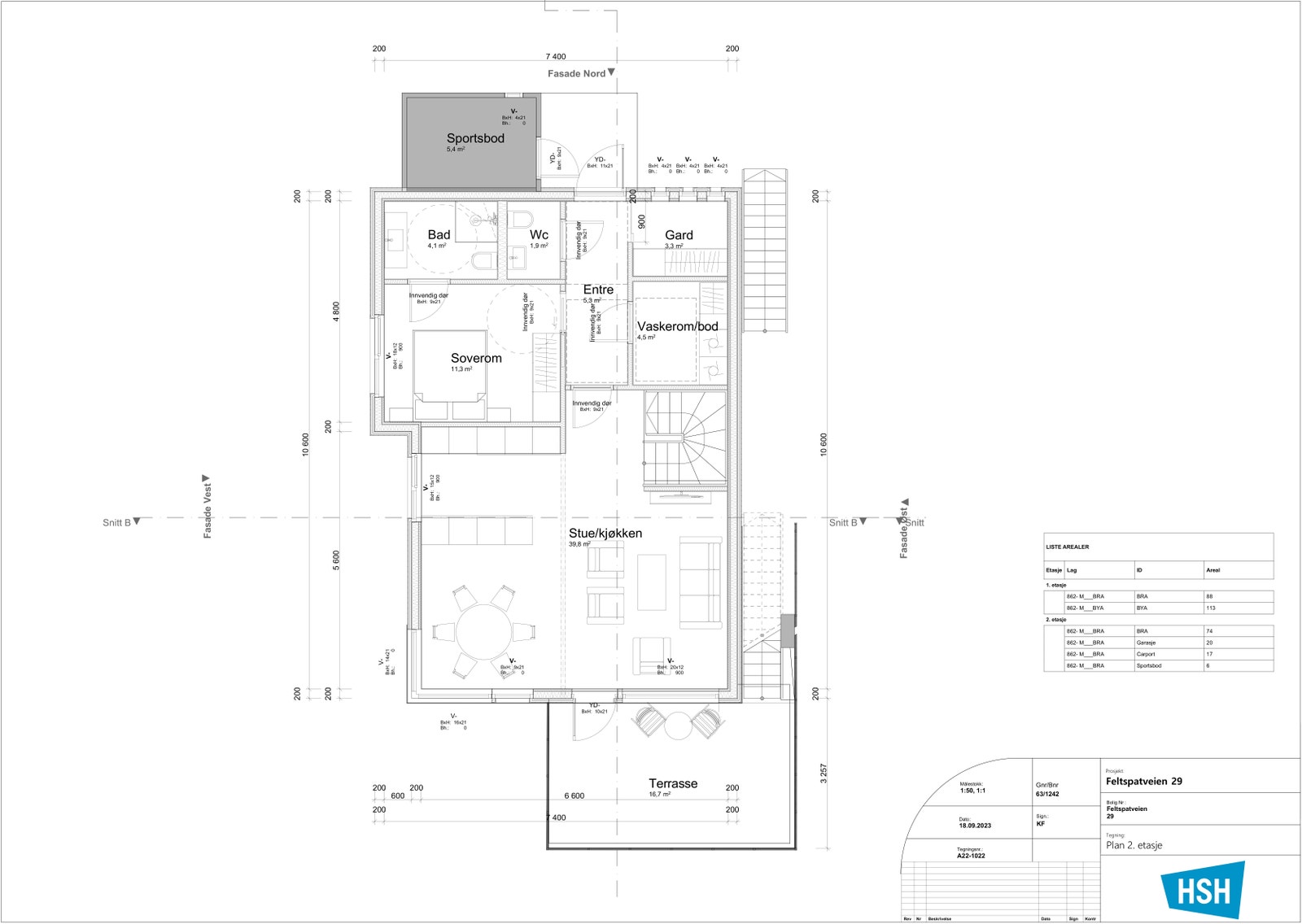
I Feltspatveien på Lauvåsen tilbyr HSH nå 2 spennende eneboliger med fine detaljer og gode bo-kvaliteter. Boligene har smakfull arkitektur og fremstår som komplette med tanke på innhold og muligheter på eiendommene. Feltspatveien 29 er solgt, Feltspatveien 33 er ledig.
Boligene ligger syd- vestvendt og har svært gode lys og solforhold. Dette utnyttes maksimalt ved å gi boligene store vinduer og terrasser både direkte fra stue og takterrasse på ca 40m2. Her kan man nyte sol og sommer fra tidlig morgen til sene kveld!
Boligens hoveddel inneholder 4 soverom, 2 stuer, 2 bad, gjeste WC + vaskerom, garderoberom og sportsbod.
Praktikantdelen har separat inngang i god avstand fra hovedinngang og inneholder entre, bad, stue/kjøkken og soverom.
Nærområdet

HSH Utvikling AS
Kirsten Vik
Frode Udjus
Annonsene kan være mangelfulle i forhold til lovpålagt opplysningsplikt. Før bindende avtale inngås oppfordres interessenter til å innhente komplett informasjon fra meglerforetaket, selger eller utleier.






