Bildegalleri

H0205
Søndre gate 11
Søndre gate 11 H0205
Prosjektets status
Planlegging
2020
Salgsstart
2023
Byggestart
2021
Overtakelse
2023
Nøkkelinfo
- Boligtype
- Leilighet
- Etasje
- 2
- Soverom
- 2
- Rom
- 3
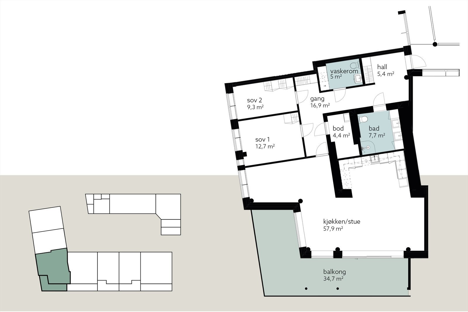
- Internt bruksareal
- 129 m² (BRA-i)
- Bruksareal
- 134 m²
- Eksternt bruksareal
- 5 m² (BRA-e)
- Balkong/Terrasse
- 34 m² (TBA)
Fasiliteter
Visning
Beskrivelse
Langs Strandpromenaden og like ved Havmannen, i de gamle lokalene til TAG Systems, er nå 11 nye leiligheter i ulike størrelser ferdigstilt og klar for ny eier. I bygget var det fra tidligere ni eksisterende selveierleiligheter, og sammen med de 11 nye er det nå opprettet et nytt borettslag - Movika borettslag.
5 av de nye leilighetene som nå er for salg befinner seg i 2. etasje, resterende 6 er i 1. etasje. Størrelsene er varierende der den minste er ca. 60 m2 med 1 soverom, og den største er hele 140 m2 med 3 soverom. Det er også flere leiligheter i størrelsen mellom 85 - 125 m2. Alle leilighetene har en god og gjennomtenkt planløsning, og flere har to våtrom der du får et eget vaskerom med wc i tillegg til fullverdig bad. Leilighetene har en moderne og lun fargepalett på alt av materialer og innredninger, så her er det enkelt å sette sitt personlige preg med møbler og interiør.
Movika borettslag er et godt sted å både bo og leve. Her bor du nytt og godt med alt av oppussing og vedlikehold langt frem i tid, og en nydelig utsikt og gode solforhold kan nytes både fra inn- og utsiden av din nye leilighet. Turmuligheter får du like utenfor din egen dør langs den fine Strandpromenaden, og sentrum med alle fasiliteter er kun en liten spasertur unna.
Her skal du ikke bare bo nytt og godt, men også leve et godt liv.
Av mange gode kvaliteter ønsker vi å fremheve:
* Beliggenhet - Strandpromenaden og Ranfjorden som nærmeste nabo
* Få minutters gange til sentrum med alle fasiliteter
* Romslige leiligheter med god og gjennomtenkt planløsning
* Kvalitet på innredninger og materialer
* Store terrasser (to leiligheter får fransk balkong, men med en liten uteplass på svalgang)
* De fleste leilighetene har to våtrom - stort bad samt vaskerom med ekstra toalett
* Nytt er nytt
* Ferdigstilt - flytt rett inn
* Første gangs overdragelse - ingen forkjøpsrett
* Faste priser - ingen budrunde
Velkommen på visning !
Ansvarlig megler
Susanne M. Dahle
Nyttige lenker
Nærområdet
Rede Eiendomsmegling AS
Annonseinformasjon
| FINN-kode | 332324702 |
|---|---|
| Sist endret | 15. okt. 2025 13:19 |
| Referanse | 85b9b4a1-c52d-41e6-ab21-2f3e18604037 |
Annonsene kan være mangelfulle i forhold til lovpålagt opplysningsplikt. Før bindende avtale inngås oppfordres interessenter til å innhente komplett informasjon fra meglerforetaket, selger eller utleier.

