Bildegalleri

Velkommen til Bråtan 43A!
Inaktiv
Åssiden
Innholdsrik enebolig med barnevennlig beliggenhet | Solrik tomt og flott utsikt | Behov for oppgradering
Prisantydning5 490 000 kr
Nøkkelinfo
- Boligtype
- Enebolig
- Eieform
- Eier (Selveier)
- Soverom
- 3
- Internt bruksareal
- 185 m² (BRA-i)
- Bruksareal
- 205 m²
- Eksternt bruksareal
- 20 m² (BRA-e)
- Balkong/Terrasse
- 40 m² (TBA)
- Etasje
- 2
- Byggeår
- 1969
- Energimerking
- G - Oransje
- Rom
- 5
- Tomteareal
- 820 m² (eiet)
Fasiliteter
Balkong/Terrasse
Barnevennlig
Bredbåndstilknytning
Garasje/P-plass
Hage
Kjæledyr tillatt
Kabel-TV
Offentlig vann/kloakk
Parkett
Peis/Ildsted
Rolig
Sentralt
Utsikt
Turterreng
Visning
Velkommen til visning! Meld deg på ved å trykke "visningspåmelding" i våre boligannonser. Visning med megler til stede vil ikke bli avholdt uten påmeldinger. Ta gjerne kontakt med megler i forkant av visningen om du har spørsmål.
VisningspåmeldingOm boligen
Velkommen til Bråtan 43A!
Boligen ligger fint til i et attraktivt og barnevennlig område på Åssiden. Her har en kort vei til både skole, barnehage og dagligvare. Har en behov for ytterligere fasiliteter og servicetilbud er Drammen sentrum knappe 10 minutters kjøring unna. I åsen ligger en belyst turløype like over boligbebyggelsen som går fra Drammen Skisenter og helt til Krokstadelva. Av andre friluft- og rekreasjonsmuligheter er det kort nærhet til Drammen Skisenter med spennende aktiviteter både sommer og vinter. På Åssiden er det flere fotballbaner, håndballbane og en stor idrettshall.
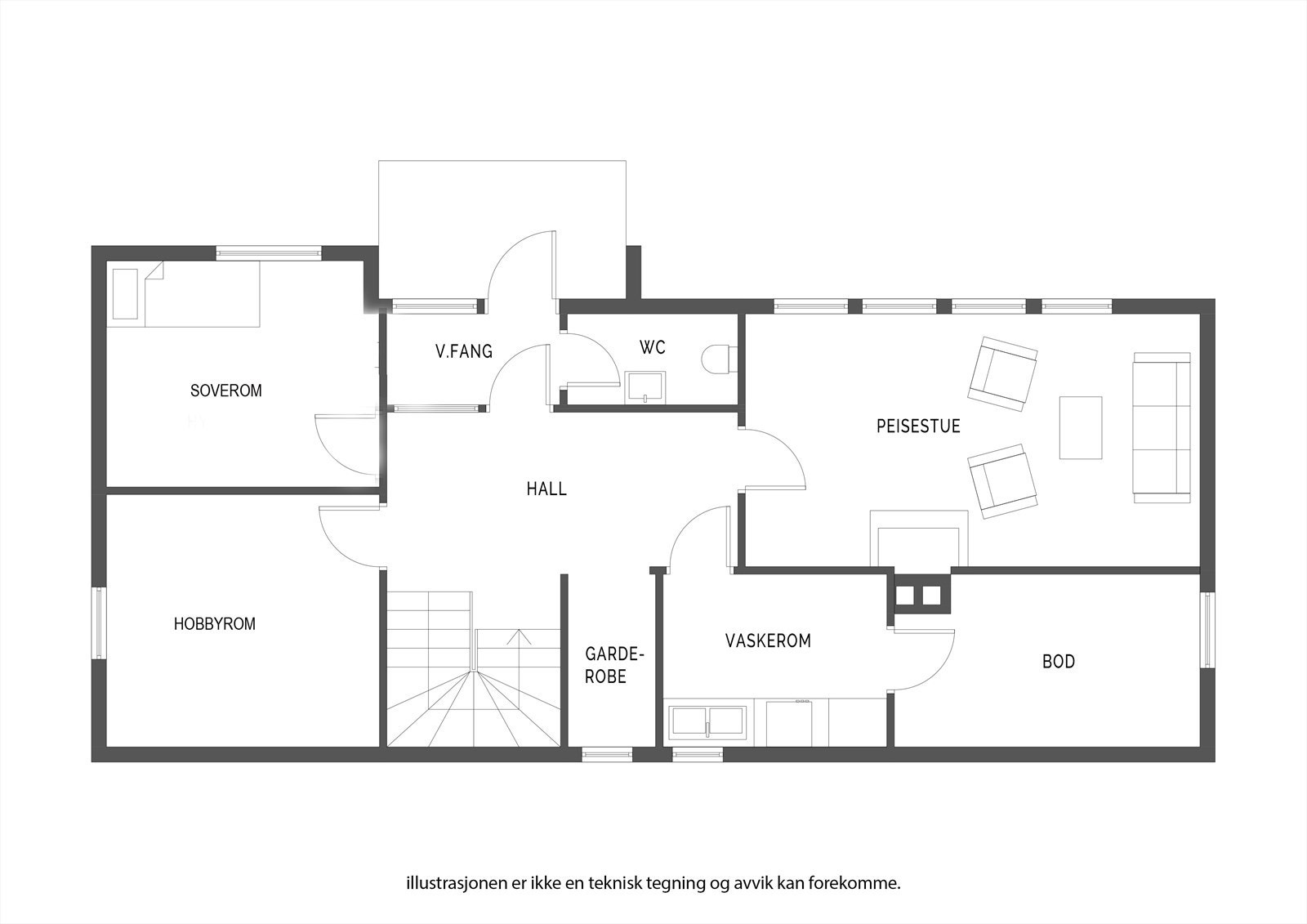
Boligen fremstår som innholdsrik og byr bla. på tre gode soverom, to flotte stuer, funksjonelt kjøkken og bad og bad/vaskerom mm.
Parkering i garasje, carport og innkjørsel.
Velkommen på visning!
Boligen ligger fint til i et attraktivt og barnevennlig område på Åssiden. Her har en kort vei til både skole, barnehage og dagligvare. Har en behov for ytterligere fasiliteter og servicetilbud er Drammen sentrum knappe 10 minutters kjøring unna. I åsen ligger en belyst turløype like over boligbebyggelsen som går fra Drammen Skisenter og helt til Krokstadelva. Av andre friluft- og rekreasjonsmuligheter er det kort nærhet til Drammen Skisenter med spennende aktiviteter både sommer og vinter. På Åssiden er det flere fotballbaner, håndballbane og en stor idrettshall.
Boligen fremstår som innholdsrik og byr bla. på tre gode soverom, to flotte stuer, funksjonelt kjøkken og bad og bad/vaskerom mm.
Parkering i garasje, carport og innkjørsel.
Velkommen på visning!
NB: Knappen for å vise hele beskrivelsen har kun en visuell effekt.
NB: Knappen for å vise hele beskrivelsen har kun en visuell effekt.
Salgsoppgaven beskriver vesentlig og lovpålagt informasjon om eiendommen
Se komplett salgsoppgaveNyttige lenker
Nærområdet
DNB Eiendom AS
Verdifulle salg
Annonseinformasjon
| FINN-kode | 332295641 |
|---|---|
| Sist endret | 03. sep. 2025 12:23 |
| Referanse | 512230401 |
Annonsene kan være mangelfulle i forhold til lovpålagt opplysningsplikt. Før bindende avtale inngås oppfordres interessenter til å innhente komplett informasjon fra meglerforetaket, selger eller utleier.


































