Bildegalleri

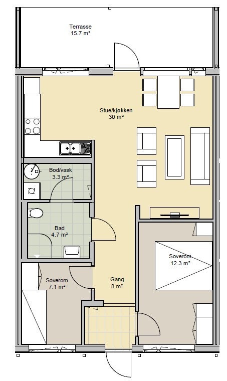
Plantegning - koselig midtleilighet i 1. etasje.
Hammeren Boligpark - Leilighetsbygg trinn 2
Flytt rett inn i en ny leilighet med 2 soverom. Romslig, vestvendt balkong. Heis, carport og sportsbod.
Prosjektets status
Planlegging
2021
Salgsstart
2021
Byggestart
2022
Overtakelse
2023
Nøkkelinfo
- Boligtype
- Leilighet
- Etasje
- 1
- Soverom
- 2
- Rom
- 3
- Internt bruksareal
- 68 m² (BRA-i)
- Bruksareal
- 73 m²
- Eksternt bruksareal
- 5 m² (BRA-e)
- Balkong/Terrasse
- 15 m² (TBA)
Fasiliteter
Visning
Beskrivelse
Leiligheten har en gjennomtenkt og god planløsning, store vindu i stue med utgang til en romslig og takoverbygd balkong. Et ekstra pluss er den praktiske løsningen mellom bad og vaskerom. Den ledige leiligheten har 2 soverom og er lett tilgjengelig med enkel adkomst i 1. etasje. Den har moderne og tidløse overflater og innredninger i en lun og tidsriktig fargepalett. Fra stue er det utgang til en romslig og vestvendt balkong som er takoverbygget, med god luft mellom bygningsmassene.
Av mange gode kvaliteter ønsker vi å fremheve:
* Nytt boligfelt i et rolig og solrikt boligområde
* Naturen og fine turområder like utenfor din egen ytterdør
* Moderne leilighet med god planløsning
* Lun og tidsriktig fargepalett i gjennomført stil
* Romslig og vestvendt balkong
* Gulvvarme i de fleste rom
* Balansert ventilasjon med varmegjenvinning
* Heis (løfteplattform)
Styregodkjennelse
Ervervet av andelen må godkjennes av borettslagets styre for at ervervet skal bli gyldig for laget. Kjøper bærer selv risikoen for at godkjenningen blir gitt og må videreselge boligen for egen regning dersom godkjenningen ikke blir gitt.
Lånebetingelser fellesgjeld
Spesifikasjon av lån:
Lånenummer: 16364159629
DNB Bank ASA
Annuitetslån, 2 terminer per år.
Rentesats per 02.09.2023: 5.15% pa.
Antall terminer til innfrielse: 76
Saldo per 02.09.2023: 19 902 000,-
Andel av saldo: 2 010 000,-
Første termin: 30.12.2021
Neste avdrag: 30.12.2031
Siste termin 30.06.2061
Flytende rente
IN-lån som kan individuelt nedbetales ihh. til avtale
Ut i fra dagens lånebetingelser vil neste avdrag som forfaller til betaling 30.12.2031 utgjøre ca kr 2 292,00 per måned for denne boligen.
Lånenummer: 16365911944
DNB Bank ASA
Annuitetslån, 2 terminer per år.
Rentesats per 02.09.2023: 5.15% pa.
Antall terminer til innfrielse: 78
Saldo per 02.09.2023: 8 038 200,-
Andel av saldo: 0
Første termin: 30.12.2022Neste avdrag: 30.12.2032
Siste termin 30.06.2062
Flytende rente
IN-lån som kan individuelt nedbetales ihh. til avtale
Lånenummer: 16366309903
DNB Bank ASA
Annuitetslån, 2 terminer per år.
Rentesats per 02.09.2023: 5.15% pa.
Antall terminer til innfrielse: 78
Saldo per 02.09.2023: 8 682 000,-
Andel av saldo: 0
Første termin: 30.12.2022Neste avdrag: 30.12.2032
Siste termin 30.06.2062
Flytende rente
IN-lån som kan individuelt nedbetales ihh. til avtale
Ansvarlig megler
Susanne M. Dahle
Nyttige lenker
Nærområdet
Rede Eiendomsmegling AS
Annonseinformasjon
| FINN-kode | 331762088 |
|---|---|
| Sist endret | 20. nov. 2025 08:44 |
| Referanse | 17e9f148-9442-455d-912f-f2ce2e20fb8e |
Annonsene kan være mangelfulle i forhold til lovpålagt opplysningsplikt. Før bindende avtale inngås oppfordres interessenter til å innhente komplett informasjon fra meglerforetaket, selger eller utleier.
