Bildegalleri

Rektor Østbyes gate 11 ligger i området Bydalen i østre del av Fredrikstad sentrum, ca 600 m unna bykjernen.
Inaktiv
Bydalen
Stor, herskapelig bolig i sentrum med oppgraderingsbehov. Unike utleiemuligheter. Utleid for kr. 565 800,- pr. år.
Prisantydning6 250 000 kr
Nøkkelinfo
- Boligtype
- Enebolig
- Eieform
- Eier (Selveier)
- Soverom
- 10
- Primærrom
- 316 m²
- Bruksareal
- 397 m²
- Byggeår
- 1932
- Energimerking
- G - Mørkegrønn
- Tomteareal
- 564 m² (eiet)
- Bruttoareal
- 437 m²
Fasiliteter
Balkong/Terrasse
Bredbåndstilknytning
Garasje/P-plass
Hage
Kjæledyr tillatt
Kabel-TV
Offentlig vann/kloakk
Peis/Ildsted
Sentralt
Visning
Visning gjennomføres kun ved påmelding innen kl.1200 dagen før annonsert visning.
Kontakt megler om visningstiden ikke passer og du ønsker å avtale et annet tidspunkt.
VisningspåmeldingOm boligen
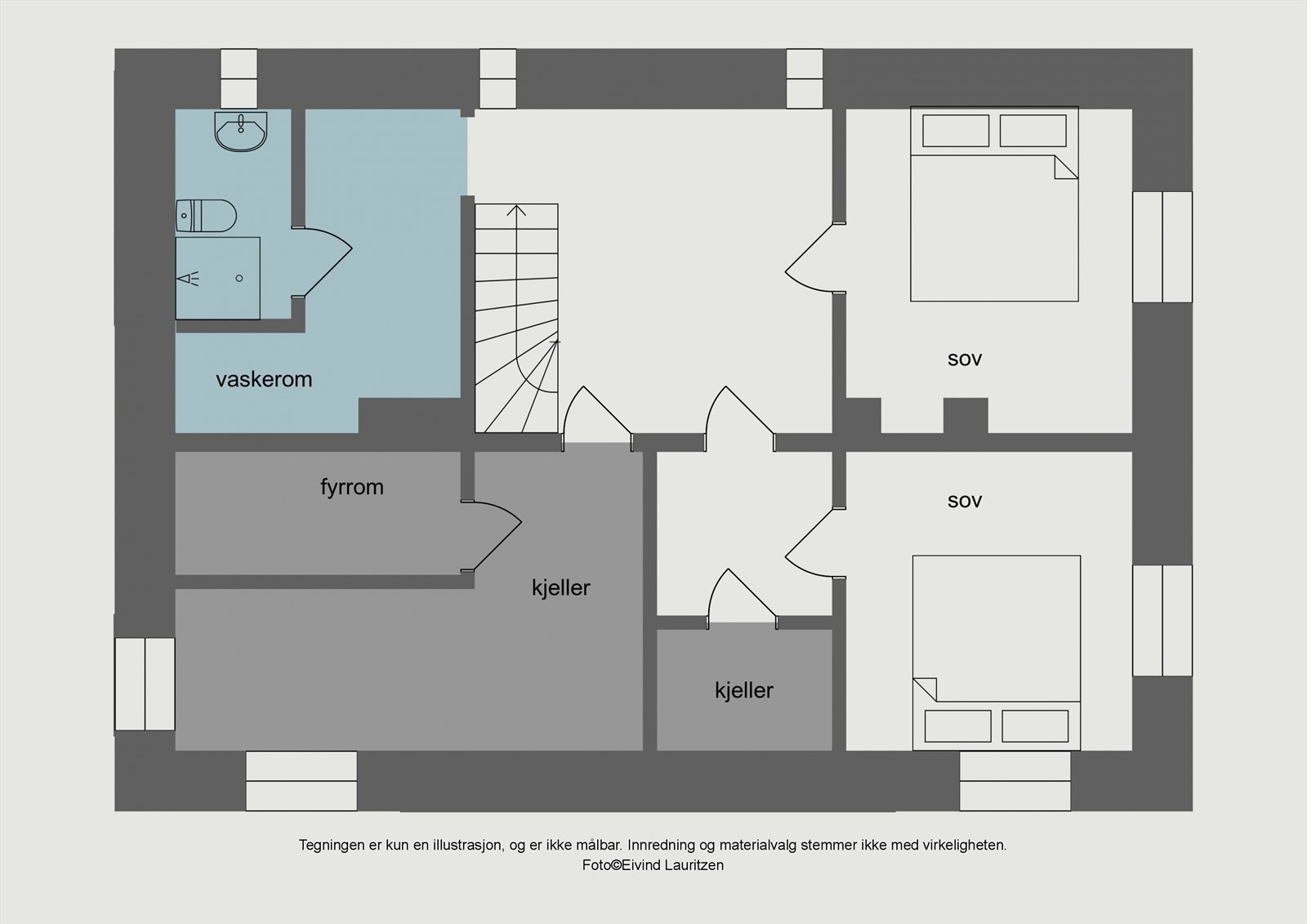
Rektor Østbyes gate 11 ligger i området Bydalen i østre del av Fredrikstad sentrum, ca 600 m unna bykjernen. 110-veien passerer like ved, men støyskjermingen fungerer bra. Nabolaget har en litt gammel, fornem karakter, med mange eldre hus fra forskjellige epoker. Høye løvtrær og alleer gir en myk atmosfære. Området er stille og barnevennlig med kort vei til skoler og barnehage. Boligen fra 1932 strekker seg over tre etasjer. Det blir i dag benyttet som bokollektiv, og alle ti soverom er utleid. Her er et ganske nytt kjøkken, gode oppvarmingsløsninger, fine detaljer og flere gode rom, men både utvendig og innvendig trenger boligen likevel oppgradering, i alle fall hvis man ønsker å realisere potensialet. For dette er en stor og herskapelig bolig - en skatt som venter på å bli gravd frem.
NB: Knappen for å vise hele beskrivelsen har kun en visuell effekt.
NB: Knappen for å vise hele beskrivelsen har kun en visuell effekt.
Salgsoppgaven beskriver vesentlig og lovpålagt informasjon om eiendommen
Se komplett salgsoppgaveNyttige lenker
Nærområdet
Nordvik Fredrikstad og Hvaler
Vi vet hva det er verdt
Annonseinformasjon
| FINN-kode | 330509358 |
|---|---|
| Sist endret | 28. nov. 2024 13:14 |
| Referanse | 30-0144/23 |
Annonsene kan være mangelfulle i forhold til lovpålagt opplysningsplikt. Før bindende avtale inngås oppfordres interessenter til å innhente komplett informasjon fra meglerforetaket, selger eller utleier.





























