Bildegalleri

1.etg. snr. 2
Fagerheim
Fagerheim snr. 2
Prosjektets status
Planlegging
Ferdig
Salgsstart
No
Byggestart
Ved fyste selde
Overtakelse
ca. eitt år etter byggjestart
Nøkkelinfo
- Boligtype
- Tomannsbolig
- Etasje
- 2
- Soverom
- 3
- Rom
- 5
- Primærrom
- 119 m²
- Bruksareal
- 124 m²
Fasiliteter
Beskrivelse
Prosjektert vertikaldelt 2-mannsbustad. Prosjektet vert igangsett ved sal av ei eining.
Snr. 1 går over 2 plan og inneheld:
Stove 1, sovealkove, 2 soverom, stove 2/kjøkken, 3 bad der det eine badet har nisje for vaskerom, garderoberom og takterrasse.
Snr. 1 kan også oppførast med same romdeling som snr. 2 etter ynskje.
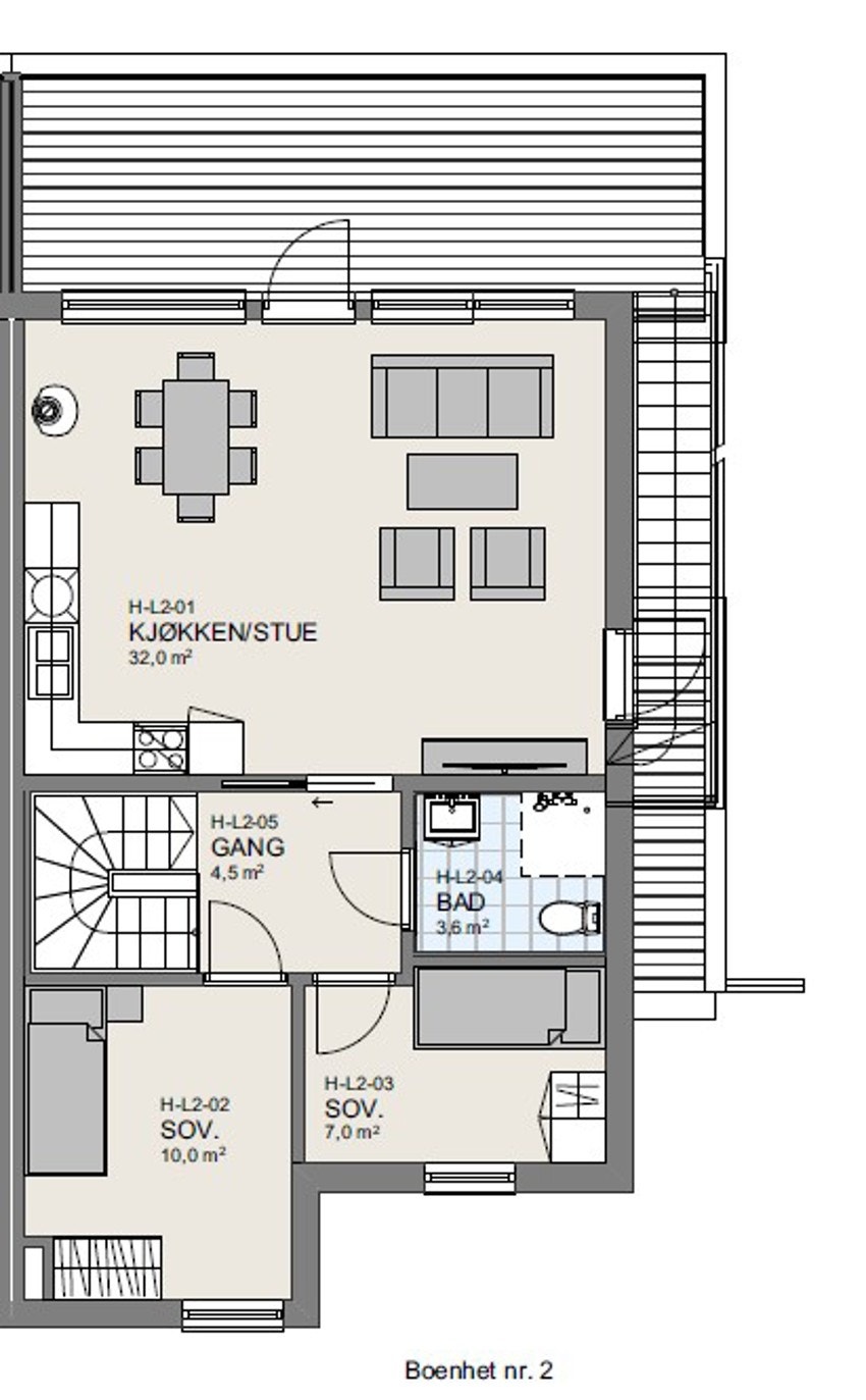
Snr. 2 går over 2 plan og inneheld:
2 stover, 3 soverom, 2 bad der det eine badet har nisje for vaskerom, garderoberom, stove/kjøkken og takterrasse.
Det vert attpåtil oppført privat carport med sportsbod samt parkeringsareal for gjestar i framkant av fasaden. Bustaden vert oppført med arealeffektiv opa kjøkkenløysing og trappefri tilkomst. Bygget vert oppført i moderne høg standard etter alle kunstens reglar. Bustadane leverast med god bustandard og tiltalande innvendige kvalitetar med svært god planløysing og ei effektiv romdeling. Eigedomen har sentrumsnær plassering og nydeleg utsikt til Jølstra sitt elveutlaup og inste del av Førdefjorden. Området har også svært gode soltilhøve.
Ansvarlig megler
Tage Pettersen
Nyttige lenker
Nærområdet
EiendomsMegler 1 Sogn og Fjordane
Annonseinformasjon
| FINN-kode | 328840612 |
|---|---|
| Sist endret | 14. feb. 2025 11:24 |
| Referanse | 2000240084 |
Annonsene kan være mangelfulle i forhold til lovpålagt opplysningsplikt. Før bindende avtale inngås oppfordres interessenter til å innhente komplett informasjon fra meglerforetaket, selger eller utleier.







