Bildegalleri

Fra stuen er det skyvedør ut til balkongen
Solgt
Manglerud - NY PRIS
Rålekker og påkostet 3-R | Solrik Innglasset balkong | Lekkert bad av fagfolk 2021 | Vv inkl | Tilbaketrukket & sentralt
Prisantydning4 750 000 kr
Nøkkelinfo
- Boligtype
- Leilighet
- Eieform
- Andel
- Soverom
- 2
- Primærrom
- 65 m²
- Bruksareal
- 75 m²
- Etasje
- 3
- Byggeår
- 1963
- Energimerking
- D - Rød
- Rom
- 3
- Tomteareal
- 10 895 m² (eiet)
Fasiliteter
Balkong/Terrasse
Barnevennlig
Kjæledyr tillatt
Offentlig vann/kloakk
Peis/Ildsted
Rolig
Sentralt
Lademulighet
Balansert ventilasjon
Livsløpsstandard
Om boligen
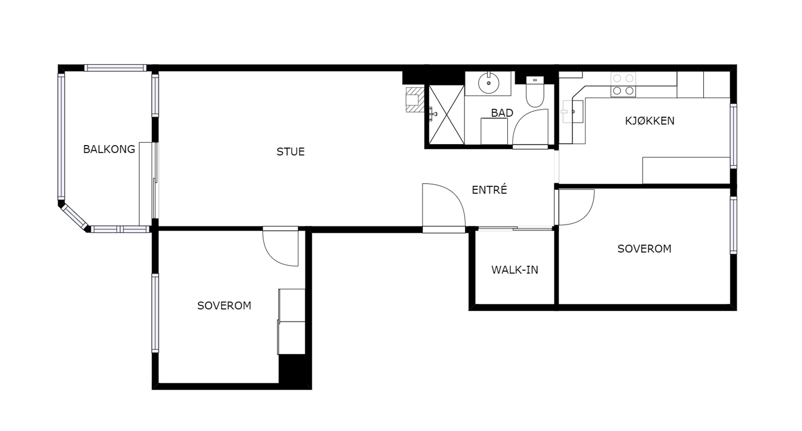
Tiltalende og tidsriktig oppusset 3-roms andelsleilighet med romslig og gjennomgående løsning. Det er koselig innglasset balkong med åpent utsyn og lite innsyn. Borettslaget har attraktiv beliggenhet på Manglerud, med kort vei til det meste av fasiliteter.
Kort fortalt:
- Sydvestvendt innglasset balkong
- Åpen og fin utsikt og lite innsyn
- Romslig og gjennomgående planløsning
- Lys og trivelig stue med vedovn
- Eget kjøkkenrom med spiseplass fra 2014
- Lekkert flislagt bad fra 2021
- 2 gode og lune soverom
- Utstrakt bruk av downlights
- En innvendig (walk-in) og to eksterne boder
- V.vann og internett i felleskostnader
- Fellesvaskeri for beboere
- Veldrevet og engasjert borettslag
- Tilbaketrukket og sentralt beliggende
- Ca 500 m til Manglerud T-bane og senter
- Rolig enveiskjørt gate
Kort fortalt:
- Sydvestvendt innglasset balkong
- Åpen og fin utsikt og lite innsyn
- Romslig og gjennomgående planløsning
- Lys og trivelig stue med vedovn
- Eget kjøkkenrom med spiseplass fra 2014
- Lekkert flislagt bad fra 2021
- 2 gode og lune soverom
- Utstrakt bruk av downlights
- En innvendig (walk-in) og to eksterne boder
- V.vann og internett i felleskostnader
- Fellesvaskeri for beboere
- Veldrevet og engasjert borettslag
- Tilbaketrukket og sentralt beliggende
- Ca 500 m til Manglerud T-bane og senter
- Rolig enveiskjørt gate
NB: Knappen for å vise hele beskrivelsen har kun en visuell effekt.
NB: Knappen for å vise hele beskrivelsen har kun en visuell effekt.
Salgsoppgaven beskriver vesentlig og lovpålagt informasjon om eiendommen
Se komplett salgsoppgaveNyttige lenker
Nærområdet
EiendomsMegler 1 Stovner
Vi loser deg trygt gjennom hele boligsalget
Prisstatistikk
Havreveien 63
8 266 klikk
på annonsen
74 384 kr
prisantydning per kvadratmeter
Prisfordeling
Pris per m² ligger 5 616 kr under snittet for leiligheter i Manglerud.
Grafen viser antall leiligheter solgt i Manglerud siste året fordelt på pris per m² - totalt 277 leiligheter
Antall boliger
Kvadratmeterpris tilsvarer prisantydning pluss fellesgjeld per kvadratmeter (p-rom eller BRA-i). Prisene i grafen er avrundet til nærmeste 1000 kr.
Annonseinformasjon
| FINN-kode | 328029710 |
|---|---|
| Sist endret | 15. feb. 2024 12:34 |
| Referanse | 3286230269 |
Annonsene kan være mangelfulle i forhold til lovpålagt opplysningsplikt. Før bindende avtale inngås oppfordres interessenter til å innhente komplett informasjon fra meglerforetaket, selger eller utleier.


































