Bildegalleri

EiendomsMegler 1 v/Morten Høvik har gleden av å presentere Steinsøyveien 21!
Solgt
Tjønnøya
BUD MOTTATT! Enebolig med fin beliggenhet på Tjønnøya! Naust/brygge følger også med.
Prisantydning1 390 000 kr
Nøkkelinfo
- Boligtype
- Enebolig
- Eieform
- Eier (Selveier)
- Soverom
- 4
- Primærrom
- 155 m²
- Bruksareal
- 155 m²
- Byggeår
- 1966
- Energimerking
- E - Oransje
- Tomteareal
- 941 m² (eiet)
Fasiliteter
Balkong/Terrasse
Fiskemulighet
Peis/Ildsted
Turterreng
Utsikt
Aircondition
Rolig
Bademulighet
Om boligen
EiendomsMegler 1 v/Morten Høvik har gleden av å presentere Steinsøyveien 21!
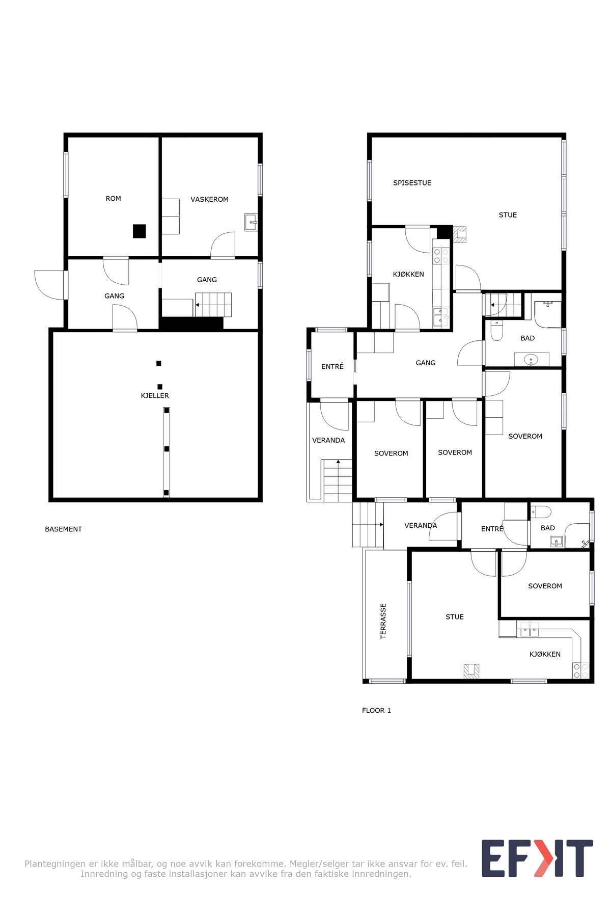
Enebolig og naust/brygge i nydelige omgivelser på Tjønnøya på Smøla. Boligen ble oppført i 1965 og går over kjeller og 1. etasje. Naustet er antatt oppført i 1965. Det ble i 2015 montert flytebrygge og leider fra brygga.
Kontakt megler for å avtale visning.
Velkommen til visning!
Enebolig og naust/brygge i nydelige omgivelser på Tjønnøya på Smøla. Boligen ble oppført i 1965 og går over kjeller og 1. etasje. Naustet er antatt oppført i 1965. Det ble i 2015 montert flytebrygge og leider fra brygga.
Kontakt megler for å avtale visning.
Velkommen til visning!
NB: Knappen for å vise hele beskrivelsen har kun en visuell effekt.
NB: Knappen for å vise hele beskrivelsen har kun en visuell effekt.
Salgsoppgaven beskriver vesentlig og lovpålagt informasjon om eiendommen
Se komplett salgsoppgaveNyttige lenker
Nærområdet
EiendomsMegler 1 Kristiansund
Vi loser deg trygt gjennom hele boligsalget
Prisstatistikk
Steinsøyveien 21
2 291 klikk
på annonsen
8 967 kr
prisantydning per kvadratmeter
Prisfordeling
Pris per m² ligger 8 033 kr under snittet for eneboliger i Smøla.
Grafen viser antall eneboliger solgt i Smøla siste året fordelt på pris per m² - totalt 16 eneboliger
Antall boliger
Kvadratmeterpris tilsvarer prisantydning pluss fellesgjeld per kvadratmeter (p-rom eller BRA-i). Prisene i grafen er avrundet til nærmeste 1000 kr.
Annonseinformasjon
| FINN-kode | 326539406 |
|---|---|
| Sist endret | 19. feb. 2024 08:54 |
| Referanse | 17230460 |
Annonsene kan være mangelfulle i forhold til lovpålagt opplysningsplikt. Før bindende avtale inngås oppfordres interessenter til å innhente komplett informasjon fra meglerforetaket, selger eller utleier.























