Bildegalleri

Parkett på gulv, malte vegger og malt himling
Solgt
Danvik
Lys 4-roms eierleilighet over 3 etasjer. God takhøyde, klassisk romfølse. Balkong med flott utsikt fra høyden. P-plass.
Prisantydning4 900 000 kr
Nøkkelinfo
- Boligtype
- Leilighet
- Eieform
- Eier (Selveier)
- Soverom
- 3
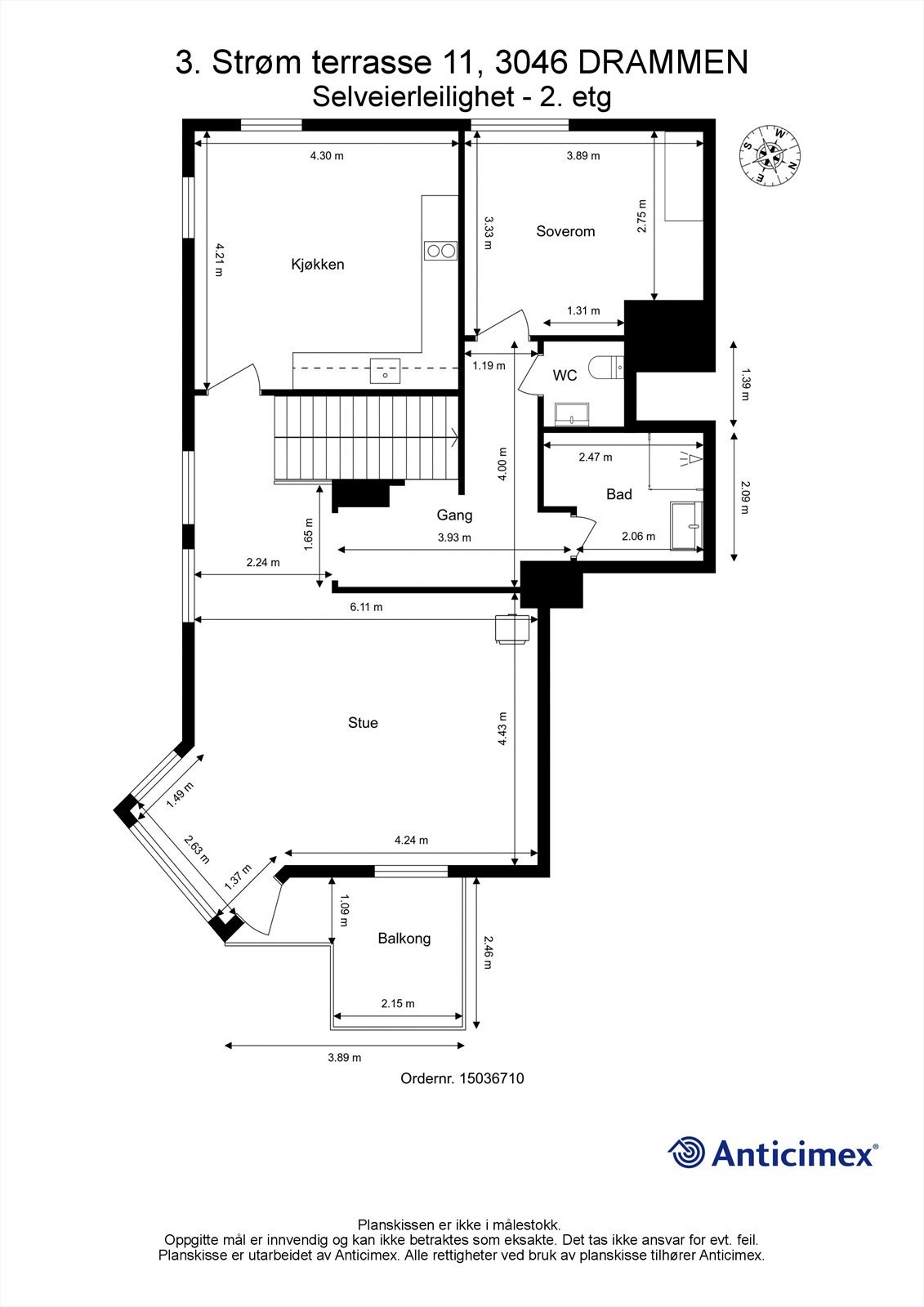
- Primærrom
- 138 m²
- Bruksareal
- 138 m²
- Etasje
- 2
- Byggeår
- 1905
- Energimerking
- G - Rød
- Rom
- 5
- Tomteareal
- 1 215 m² (eiet)
Fasiliteter
Balkong/Terrasse
Barnevennlig
Bredbåndstilknytning
Garasje/P-plass
Kjæledyr tillatt
Kabel-TV
Offentlig vann/kloakk
Peis/Ildsted
Rolig
Utsikt
Turterreng
Lademulighet
Balansert ventilasjon
Om boligen
Lys og fin 4-roms eierleilighet med 2(3) etasjer.
- Lys stue med peisovn, høy takhøyde og store vindusflater
- Profilert kjøkkeninnredning med god skapplass
- Pent bad fra 2016 med dusjhjørne som har regnfallsdusj
- Varmekabler på bad, wc-rom og i entré
- Enkelte rom og bygningsdeler har et tidsmessig oppgraderingsbehov
- Terrassedør fra 2015 og vinduer i 3. etg fra 2022
- Østvendt balkong på ca. 7 kvm med flott utsikt over Drammen
- En disponibel fast parkeringsplass på felles gårdsplass
- Beliggende i en av de eldste bydelene i Drammen
- Gangavstand til buss, barnehage, skole og idrettsanlegg
- Kort vei til sentrum med flere servicetilbud
Velkommen til visning!
NB: Knappen for å vise hele beskrivelsen har kun en visuell effekt.
NB: Knappen for å vise hele beskrivelsen har kun en visuell effekt.
Salgsoppgaven beskriver vesentlig og lovpålagt informasjon om eiendommen
Se komplett salgsoppgaveNyttige lenker
Nærområdet
Krogsveen Drammen
Verdien av en god megler.
Prisstatistikk
3. Strøm terrasse 11
8 731 klikk
på annonsen
35 507 kr
prisantydning per kvadratmeter
Prisfordeling
Pris per m² ligger 21 493 kr under snittet for leiligheter i Gamle Drammen.
Grafen viser antall leiligheter solgt i Gamle Drammen siste året fordelt på pris per m² - totalt 1 065 leiligheter
Antall boliger
Kvadratmeterpris tilsvarer prisantydning pluss fellesgjeld per kvadratmeter (p-rom eller BRA-i). Prisene i grafen er avrundet til nærmeste 1000 kr.
Annonseinformasjon
| FINN-kode | 325932451 |
|---|---|
| Sist endret | 29. aug. 2024 09:59 |
| Referanse | KR20.23351 |
Annonsene kan være mangelfulle i forhold til lovpålagt opplysningsplikt. Før bindende avtale inngås oppfordres interessenter til å innhente komplett informasjon fra meglerforetaket, selger eller utleier.





































