Bildegalleri

Bolig nummer 4.
Framnes
Rødslia 4
Rødslia 4
Prisantydning7 590 000 kr
Prosjektets status
Planlegging
Sommer 2023
Salgsstart
Høsten 2023
Byggestart
Vinter 2023
Overtakelse
Vinter 2024
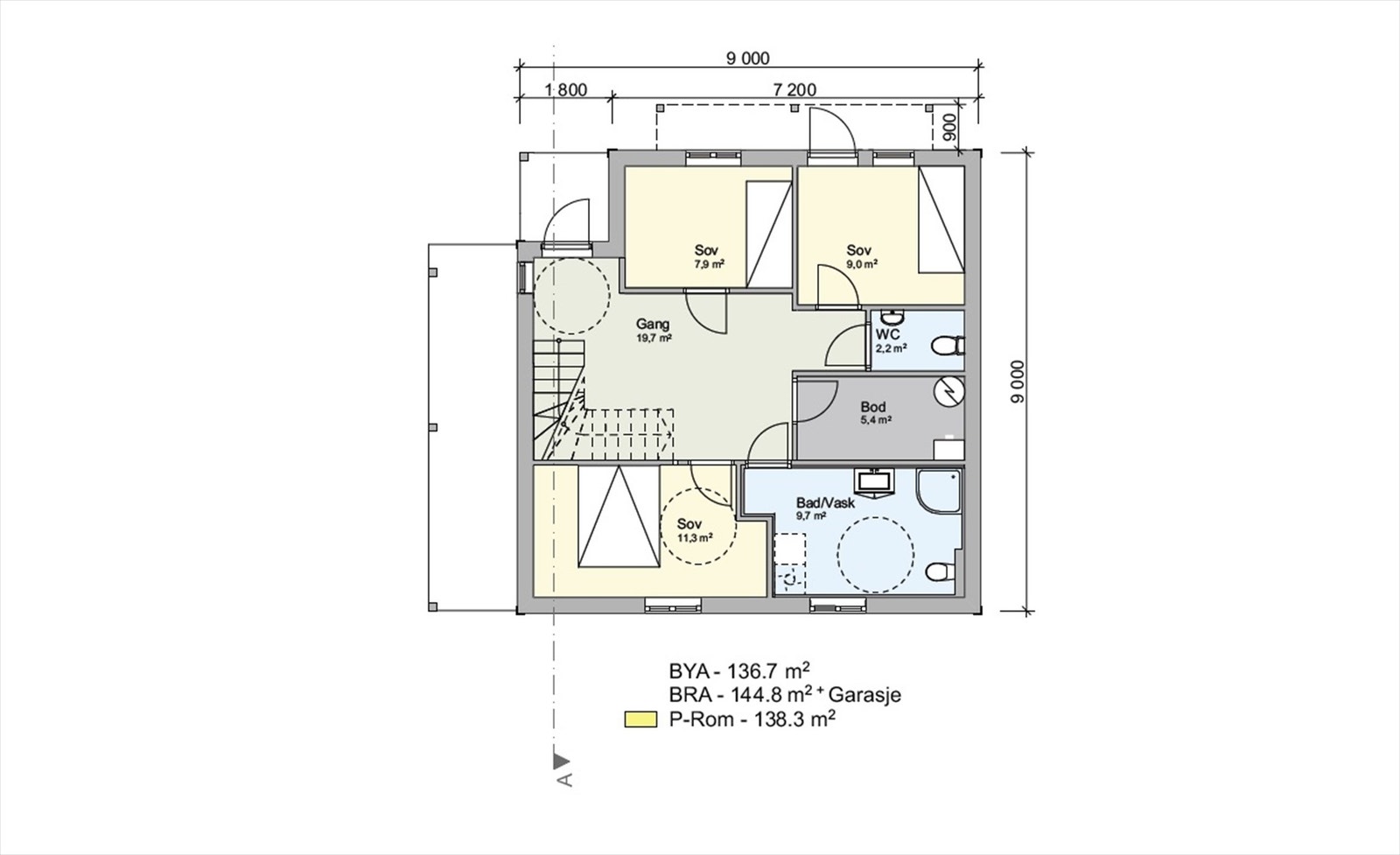
Nøkkelinfo
- Boligtype
- Enebolig
- Etasje
- 2
- Soverom
- 4
- Rom
- 5
- Internt bruksareal
- 143 m² (BRA-i)
- Bruksareal
- 143 m²
Beskrivelse
Mer informasjon kommer
NB: Knappen for å vise hele beskrivelsen har kun en visuell effekt.
NB: Knappen for å vise hele beskrivelsen har kun en visuell effekt.
Nyttige lenker
Nærområdet
Krogsveen Sandefjord
Velkommen til en enklere boligreise.
Annonseinformasjon
| FINN-kode | 324991172 |
|---|---|
| Sist endret | 26. nov. 2024 06:44 |
| Referanse | KR22.23237 |
Annonsene kan være mangelfulle i forhold til lovpålagt opplysningsplikt. Før bindende avtale inngås oppfordres interessenter til å innhente komplett informasjon fra meglerforetaket, selger eller utleier.







