Bildegalleri

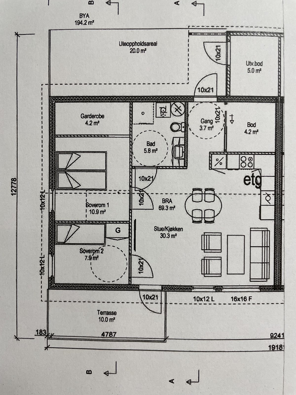
Svehaugen 29 C. Plantegning.
Inaktiv
Svehaugen 27 og 29
Svehaugen 27
Prisantydning2 290 000 kr
Prosjektets status
Planlegging
19.10.2023
Salgsstart
19.10.2023
Byggestart
01.12.2023
Overtakelse
31.10.2024
Nøkkelinfo
- Boligtype
- Leilighet
- Etasje
- 2
- Soverom
- 2
- Rom
- 3
- Primærrom
- 62 m²
- Bruksareal
- 67 m²
Fasiliteter
Balkong/Terrasse
Bredbåndstilknytning
Garasje/P-plass
Kabel-TV
Turterreng
Beskrivelse
Ansvarlig megler
Espen Strønstad
NB: Knappen for å vise hele beskrivelsen har kun en visuell effekt.
NB: Knappen for å vise hele beskrivelsen har kun en visuell effekt.
Nærområdet
Eiendomsmegler Norge Haugesund
Annonseinformasjon
| FINN-kode | 324806276 |
|---|---|
| Sist endret | 08. feb. 2024 13:42 |
| Referanse | 19230240 |
Annonsene kan være mangelfulle i forhold til lovpålagt opplysningsplikt. Før bindende avtale inngås oppfordres interessenter til å innhente komplett informasjon fra meglerforetaket, selger eller utleier.
