Bildegalleri

Stue mot kjøkken og gang
Solgt
Kyrkjebygda Panorama
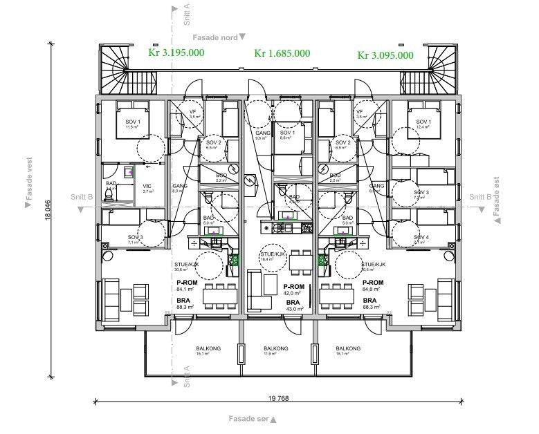
Lekker toppleilighet, 43m2 til salgs i 6-mannsbolig i Lesja sentrum, 150.000 i komunalt tilskudd
Prisantydning1 685 000 kr
Nøkkelinfo
- Boligtype
- Leilighet
- Eieform
- Eier (Selveier)
- Soverom
- 1
- Primærrom
- 42 m²
- Bruksareal
- 41 m²
- Etasje
- 1
- Byggeår
- 2023
- Energimerking
- Rom
- 3
- Tomteareal
- 2 200 m² (eiet)
- Grunnflate
- 43 m²
Fasiliteter
Balkong/Terrasse
Barnevennlig
Bredbåndstilknytning
Garasje/P-plass
Lademulighet
Moderne
Offentlig vann/kloakk
Parkett
Rolig
Sentralt
Utsikt
Bademulighet
Fiskemulighet
Turterreng
Beskrivelse
Lys og lett leilighet til salgs i 2.etg med romslig og skjermet verandra og en fantastisk utsikt.
Carport og utvendig bod
43m2 med ett soverom og ett bad - prisantydning kr. 1.685.000,- pluss kr 8.670 i tinglysning og dokumentavgift
Integrerte hvitevarer.
Kjøkkeninnredning fra Marbodal,
Trestavs hvitlasert eiekparkett på gulv i alle rom untatt bad (fliser) og entre (fliser)
Ventilasjon med varmegjenvinning.
Flott og stor terasse med skifferheller i 1.etg. Leilighet i 2.etg romslig veranda med glassrekkverk.
Bod, 5m2 og Carport for en biloppstilling pr. leilighet (blir oppført senhøst 23 /våre 24 sammen med asfaltering av veg)
Carport og utvendig bod
43m2 med ett soverom og ett bad - prisantydning kr. 1.685.000,- pluss kr 8.670 i tinglysning og dokumentavgift
Integrerte hvitevarer.
Kjøkkeninnredning fra Marbodal,
Trestavs hvitlasert eiekparkett på gulv i alle rom untatt bad (fliser) og entre (fliser)
Ventilasjon med varmegjenvinning.
Flott og stor terasse med skifferheller i 1.etg. Leilighet i 2.etg romslig veranda med glassrekkverk.
Bod, 5m2 og Carport for en biloppstilling pr. leilighet (blir oppført senhøst 23 /våre 24 sammen med asfaltering av veg)
Beliggenhet
Toppleilighet med fantastisk utsikt til salgs
Så sentralt du kan komme i Lesja sentrum.
Ett steinkast unna Joker'n, Kafeen, Bibiloteket, Kulturhus, Idrettshall, Skule, Tunstuggu, Kyrkja og Bygdemuseet.
Bussholdeplass og togstasjon i gangavstand.
Stor og romslig tomt, sameie
Med panoramisk utsikt over den vakre bygda vår og nærhet til turløyper, elva, Kjølen og naturen, bedre kan det ikke bli !
Så sentralt du kan komme i Lesja sentrum.
Ett steinkast unna Joker'n, Kafeen, Bibiloteket, Kulturhus, Idrettshall, Skule, Tunstuggu, Kyrkja og Bygdemuseet.
Bussholdeplass og togstasjon i gangavstand.
Stor og romslig tomt, sameie
Med panoramisk utsikt over den vakre bygda vår og nærhet til turløyper, elva, Kjølen og naturen, bedre kan det ikke bli !
Adkomst
Privat adkomst fra Kyrkjevegen, Fylkeveg
Utfyllende informasjon om fellesgjeld og felleskostnader
Ingen fellesgjeld i sameie, felleskostnader går utelukkende til inndekning av forsikring, vinter- og sommervedlikehold, samt fremtidig vedlikehold
Kommunale avgifter, strøm, evt fiber vil gå på hver enkelt eier.
Kommunale avgifter vil variere etter bruk, men fra 2023 er de estimert til ca 9-11.000 eks mva.
Kommunale avgifter, strøm, evt fiber vil gå på hver enkelt eier.
Kommunale avgifter vil variere etter bruk, men fra 2023 er de estimert til ca 9-11.000 eks mva.
Beskaffenhet
Tomt består av opparbeidet uteareal, carport og boder.(ferdigstilles sommeren 24) Totalt tomteareal ca 2200 m2
Vesentlige opplysninger
6-mannsboligen er nybygg og tilfredstiller Husbanken krav og er prosjektgodkjent. slik at en kan få husbankfinasiering om dette er ønskelig.
Det er også i etterkant satt opp en forlenget skillevegg mellom hver enkelt leilighet.
Carport og boder vil bli oppført etter endring av byggesøknad er godkjent.
Det er også i etterkant satt opp en forlenget skillevegg mellom hver enkelt leilighet.
Carport og boder vil bli oppført etter endring av byggesøknad er godkjent.
NB: Knappen for å vise hele beskrivelsen har kun en visuell effekt.
NB: Knappen for å vise hele beskrivelsen har kun en visuell effekt.
Ta kontakt med selger for komplett informasjon
Nærområdet
Annonsene kan være mangelfulle i forhold til lovpålagt opplysningsplikt. Før bindende avtale inngås oppfordres interessenter til å innhente komplett informasjon fra meglerforetaket, selger eller utleier.




















