Bildegalleri

Synesvågen boligfelt
Enebolig Øst
Kort om prosjektet
Boligfeltet ligger i et rolig og barnevennlig strøk, med en eget areal avsatt til lekeplass - et hyggelig møtested, og en trygg boltreplass for barna. Synesvågen ligger på Vigra, i Giske kommune
Prosjektets status
Planlegging
Godkjent plan, klart for oppstart
Salgsstart
2025
Byggestart
Ved 4 av 9 solgte
Overtakelse
12 mnd etter oppstart på tomten
Nøkkelinfo
- Boligtype
- Enebolig
- Soverom
- 3
- Primærrom
- 125 m²
- Bruksareal
- 131 m²
Fasiliteter
Visning
Ta kontakt for å avtale visning.Beskrivelse
INNHOLD
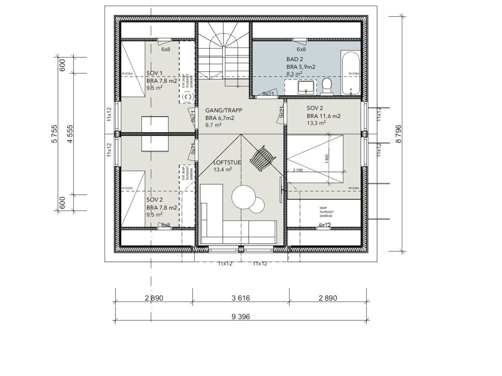
De innholdsrike eneboligene er over to plan med svært praktisk planløsning, 3 soverom og egen hage. Her er det lagt til rette for tilpasninger og mulighet for hele 5 soverom og et ekstra bad om det er behov for det.
1. etasje:
Entrè, bad, teknisk/vaskerom & sportsbod, åpen stue og kjøkkenløsning. I tillegg kommer inngangspartiet med takoverbygg, og det leveres et innglasset uteareal på 10m2 ifbm. hagen
2. etasje:
Loftstue, 3 soverom, kontor/bod
STANDARD LEVERANSE
- Lyst og flott laminatgulv som tåler hverdagen
- Ferdigmalte MDF-plater og takplater
- Kjøkken fra HTH til en verdi på 75.000,-
- Bad leveres flislagt med varmekabel og en HTH baderomsinnredning
- Åpen og lys hvitmalt trapp i furu med eiketoning i trinn
- Balansert ventilasjon med varmegjenvinning for et godt inneklima
- Parkeringsplasser iht. situasjonskart/illustrasjonsplan
- Flott uteområde
- Flott nabolag med flott utsikt, lekeplass og stor boltreplass
Ønsker man oppgraderinger, er følgende oppgraderinger tilgjengelig som ferdigprisede tilleggspakker:
- Gips, sparklet og malt med listefrie overganger i hele boligen
- LED-spotpakke fra elektriker med 18 spotter i hele boligen
- Oppgradering av kjøkken og baderomsinnredning
Ta kontakt med selger for mer informasjon om dette!
Nyttige lenker
Nærområdet
Lampholmen AS
Annonsene kan være mangelfulle i forhold til lovpålagt opplysningsplikt. Før bindende avtale inngås oppfordres interessenter til å innhente komplett informasjon fra meglerforetaket, selger eller utleier.






