Bildegalleri

Puddertoppen
18
Prosjektets status
Planlegging
.
Salgsstart
.
Byggestart
Byggestart vedtatt
Overtakelse
Forventet innflytting juni 2025
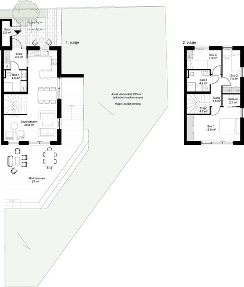
Nøkkelinfo
- Boligtype
- Rekkehus
- Etasje
- 2
- Soverom
- 3
- Rom
- 4
- Primærrom
- 99 m²
- Bruksareal
- 101 m²
Beskrivelse
Innhold
Arkitekttegnet enderekkehus i grønne omgivelser. Planløsningen er gjennomtenkt med åpen stue- og kjøkkenløsning i 1. etasje og tre romslige soverom i 2. etasje, hvor hovedsoverommet har egen walk-in-garderobe. Rekkehuset har i tillegg et bad i hver etasje, bod og romslig entré og gang. Du kan nyte en flott markterrasse med stort uteområde og egen hage.
Oppvarming
Boligene vil få vannbåren gulvvarme i hele plan 1 og i baderom plan 2. Oppvarming av øvrige rom skjer via panelovner. Fordelingsskap for forbruksvann og varme plasseres i vegg i boligen eller i baderomshimlingen.
Beliggenhet
Lørenskog har mye å by på. Er du ute etter naturopplevelser, kultur, sport eller shopping, er Lørenskog stedet for deg! Sentralt beliggende rett ved Lørenskog stasjon er du alltid kun få minutter unna Oslo eller Gardermoen.
Som navnet tilsier ligger Lørenskog Stasjonsby like ved Lørenskog stasjon. Det er kort vei til det meste med et godt utbygget kollektivtilbud. Oslo sentrum er 18 minutter unna med bil, buss eller tog. Skal du ut og reise tar du deg til Gardermoen på drøye 20 minutter.
Nærområdet gir et hav av muligheter for alle enten du ønsker shopping, cafeer, kulturtilbud, idrettsanlegg eller naturopplevelser. Skogen er nærmeste nabo bak boligfeltet. Her kan du gå turer sommerhalvåret, eller legge ut på skiturer vintersesongen. Det finnes også flere deilige badevann i nærheten.
Lørenskog byr ellers på gode naturopplevelser sommer som vinter i Østmarka hvor Losby Gods er et populært utgangspunkt. Boligene vil ligge landlig og fint, men likevel med nærhet til Oslo. Ny barnehage og skole skal bygges rett ved prosjektet.
Rett ved Lørenskog Stasjonsby åpnet SNØ i januar 2020 - verdens råeste helårsarena for snøopplevelser på Lørenskog. Med en størrelse på 40 000 kvadratmeter skapes det en arena med perfekte forhold for langrenn, alpint og freeski. På SNØ finner du også Spiseri SNØ, Evo treningssenters og Sport 1 (sportsbutikk) som er åpen for alle, også de som ikke skal stå/gå på ski.
Eller du kan invitere venner og familie på besøk til det splitter nye Thon Hotel Snø i Lørenskog, med helårsarenaen SNØ vegg i vegg.
Sammen med SNØ kommer også Snøbyen. Snøbyen blir et moderne bydelssentrum som vil tilfredsstille alle behov, og med det blir den nye bydelen ganske så komplett. I rolige gågater skapes det gode byrom, der møteplassene og tilbudene blir lett tilgjengelig på gateplan. Her vil du finne restauranter og serveringssteder til enhver anledning. I tillegg kommer spennende sportsbutikk-konsepter. Og for tilreisende vil hotellet, som blir den nærmeste naboen til SNØ, dekke behovet for losji og rekreasjon.
Hvitevarer / tilbehør
Hvitevarene og brunevarer medfølger ikke i salget med mindre det tydelig fremgår av salgsoppgaven. Dette avviker fra bransjens tilbehørsliste.
Leveransebeskrivelse
2000-21750-1-018
Nyttige lenker
Nærområdet
Selvaag Bolig AS
Annonseinformasjon
| FINN-kode | 322502255 |
|---|---|
| Sist endret | 27. aug. 2025 09:22 |
| Referanse | 22310237 |
Annonsene kan være mangelfulle i forhold til lovpålagt opplysningsplikt. Før bindende avtale inngås oppfordres interessenter til å innhente komplett informasjon fra meglerforetaket, selger eller utleier.
