Bildegalleri

Velkommen til Lars Hagerups veg 38!
Solgt
Bekkevoll / Alfheim
Innholdsrik halvpart av tomannsbolig beliggende like ovenfor Tromsø sentrum - stor tomt med flotte utearealer
Prisantydning6 250 000 kr
Nøkkelinfo
- Boligtype
- Tomannsbolig
- Eieform
- Eier (Selveier)
- Soverom
- 3
- Internt bruksareal
- 181 m² (BRA-i)
- Bruksareal
- 181 m²
- Etasje
- 1
- Byggeår
- 1957
- Energimerking
- E - Gul
- Rom
- 5
- Tomteareal
- 1 440 m² (eiet)
Fasiliteter
Balkong/Terrasse
Barnevennlig
Bredbåndstilknytning
Garasje/P-plass
Hage
Kjæledyr tillatt
Ingen gjenboere
Offentlig vann/kloakk
Peis/Ildsted
Rolig
Sentralt
Utsikt
Turterreng
Lademulighet
Om boligen
Velkommen til Lars Hagerups veg 38, en flott bolig beliggende like ovenfor Tromsø sentrum!
Boligen fordeler seg over to etasjer (0. og 1.etg) og står på romslig, felles eid tomt med mye fint uteareal, plen og diverse beplantning.
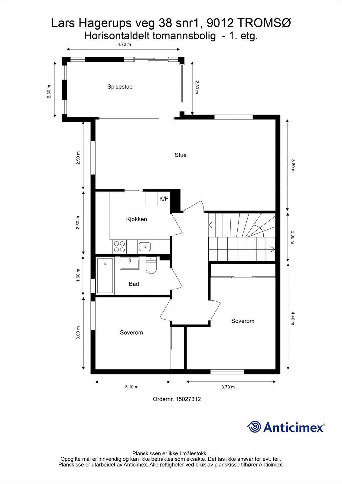
Innholdsmessig fordeler rommene seg over to etasjer hvor man i 0.etg har entrè, hall, gang, bod, vaskerom. bad, soverom og oppholdsrom som i dag benyttes til tv-stue/bibliotek. I dette arealet vil det enkelt kunne etableres hybel for utleie om ønskelig og selv vil man fortsatt ha 3 soverom i hoveddel. I hovedetasjen (1.etg) finner man gang, bad, 2 soverom, kjøkken, stue og spisestue. Fra spisestuen har man utgang til trapp som leder ned til utearealer. Fint opparbeidet parkering (m/el-lader) og steintrapp opp til boligen.
Velkommen!
Boligen fordeler seg over to etasjer (0. og 1.etg) og står på romslig, felles eid tomt med mye fint uteareal, plen og diverse beplantning.
Innholdsmessig fordeler rommene seg over to etasjer hvor man i 0.etg har entrè, hall, gang, bod, vaskerom. bad, soverom og oppholdsrom som i dag benyttes til tv-stue/bibliotek. I dette arealet vil det enkelt kunne etableres hybel for utleie om ønskelig og selv vil man fortsatt ha 3 soverom i hoveddel. I hovedetasjen (1.etg) finner man gang, bad, 2 soverom, kjøkken, stue og spisestue. Fra spisestuen har man utgang til trapp som leder ned til utearealer. Fint opparbeidet parkering (m/el-lader) og steintrapp opp til boligen.
Velkommen!
NB: Knappen for å vise hele beskrivelsen har kun en visuell effekt.
NB: Knappen for å vise hele beskrivelsen har kun en visuell effekt.
Salgsoppgaven beskriver vesentlig og lovpålagt informasjon om eiendommen
Se komplett salgsoppgaveNærområdet
Hjem Eiendomsmegling
Annonseinformasjon
| FINN-kode | 322402593 |
|---|---|
| Sist endret | 16. apr. 2025 12:29 |
| Referanse | 1-0054/23 |
Annonsene kan være mangelfulle i forhold til lovpålagt opplysningsplikt. Før bindende avtale inngås oppfordres interessenter til å innhente komplett informasjon fra meglerforetaket, selger eller utleier.












































