Bildegalleri

Prosjektert Ålhytte på 63 kvm med 2-3 soverom og hems - Sørbølfjell -Tomt 72
- Omkostninger
- 70 000 kr
- Totalpris
- 3 850 000 kr
Pris på lån: fra 15 766 kr/mnd
Eff.rente 5,78 %. 2 268 000 o/20 år. Kostnad: 1 515 840 kr. Totalt 3 783 840 kr.
LånekalkulatorNøkkelinfo
- Beliggenhet
- På fjellet
- Boligtype
- Hytte
- Tomt
- Eiet
- Soverom
- 3
- Sengeplasser
- 7
- Meter over havet
- 759
Fasiliteter
Visning
Ta kontakt for å avtale visning.Om eiendommen
Beliggenhet
Eiendommen ligger i et nyetablert hyttefelt på Sørbølfjell, med en solrik sørvendt beliggenhet som gir fantastisk utsikt mot Norefjell, Høgevarde og Nautskardfjell
Med fantastisk turterreng for både ski, fotturer og sykkelturer, byr eiendommen på varierte naturopplevelser, både i frodige skogsområder og på snaufjellet. Du kan utforske Vassfaret, Bukollen eller Sørbølfjellet. I tillegg finnes det gode jakt- og fiskemuligheter i nærområdet. Eiendommen ligger også kun en kort kjøretur fra Oslo og det sentrale Østlandsområdet, noe som gjør beliggenheten svært tilgjengelig.
Generelt
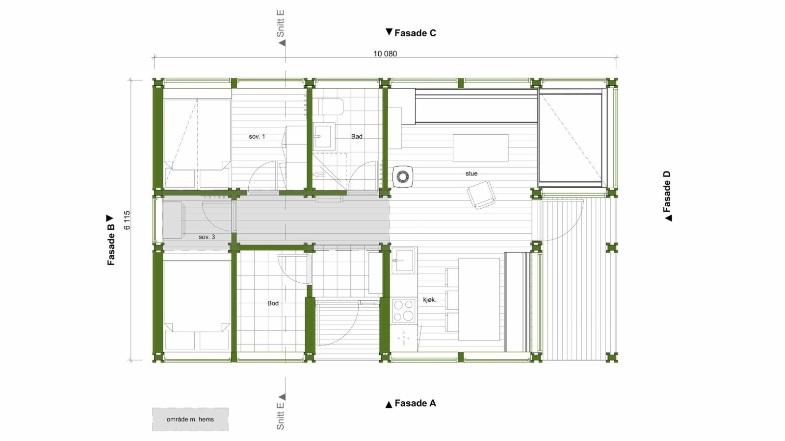
Den prosjekterte Ålhytta har 2-3 soverom, 5-9 sengeplasser, en åpen stue- og kjøkkenløsning, hems og bad. Hytteleveransen inkluderer en ferdig montert hytte på tomt T63 på Sørbølfjell, samt grunnarbeid, fundamentering og installasjon av elektro og VVS. Interiøret er ikke inkludert, men et komplett Ålhytte-interiør kan leveres ved ønske. Indeks pr. juni 25
Adkomst/Tomteforhold
Kjørebeskrivelse
Sørbølfjell ligger i Flå kommune, bare en drøy 2 timers kjøretur fra Oslo og kun 10 mil fra Sandvika. Følg Riksvei 7 til avkjøringen ved Gulsvik. Med den nye RV7-forbindelsen mellom Sokna og Gulsvik, er det kun 100 km fra Sandvika til hytta.
Tomteforhold
Tomten har helårsvei, vann, avløp, strøm og fiber, og leveres med egen parkeringsplass. Den åpne tomten byr på flott utsikt og gode solforhold. Hytta vil bli fundamentert på en støpt plate.
Innhold
Hytta er planlagt med 2-3 soverom, bad, hems, dagseng og en åpen kjøkken- og stueløsning, samt en overbygget terrasse. Byggingen av hytta er ennå ikke startet, så kjøperen har mulighet til å påvirke løsningene.
For å prøvebo i en lignende hytte, besøk vår nettside: https://www.aalhytta.no/provebohyttene/sorbolfjell-tomt-22, eller ta kontakt med Arild for å avtale.
Standard
Kjøkken
Ålhyttas kjøkken er utviklet for å maksimere bruken av plassen. Det kan leveres med ulike overflatebehandlinger, tilpasset den ønskede stilen.
Stue
Stuen er designet med fokus på plassutnyttelse og visuelle linjer, med sitteplasser som enten består av faste sofabenker eller løse stoler, nøye plassert for å følge vinduenes format og plassering.
Soverom
Soverommene i Ålhytta er laget for å gi deg en god natts søvn. Sengene er utformet for å utnytte plassen effektivt. Hvis du trenger ekstra soveplass til gjester, kan en praktisk nisjeseng være en løsning. Andre alternativer inkluderer familiekøye, køyeseng, veggfast dobbeltseng med skuffer, eller en vanlig dobbeltseng. I tillegg finnes Kube-hyllene, som fungerer utmerket som nattbord.
Interiør
Ålhytteinteriøret er utviklet med fokus på både plassutnyttelse og estetikk. Designet er laget for å utnytte plassen på best mulige måte, samtidig som hyttas rene linjer bevares. Ingenting er overlatt til tilfeldighetene.
Sitteplasser, enten faste sofabenker eller løse stoler, er nøye plassert for å gi gode siktlinjer i tråd med vinduenes størrelse og plassering. Skuffer under sengene gir praktisk lagringsplass.
Små detaljer og justeringer gir smarte løsninger som gjør hytta både funksjonell og stilfull.
Se hytter/tomter og les mer på våre hjemmesider, https://tomter.aalhytta.no/omrade/sorbolfjell/
Ta kontakt med megler for komplett informasjon
Nærområdet
Ålhytta
Annonseinformasjon
| FINN-kode | 321494850 |
|---|---|
| Sist endret | 04. aug. 2025 13:32 |
| Referanse | XSørbølfjell tomt 63X |
Annonsene kan være mangelfulle i forhold til lovpålagt opplysningsplikt. Før bindende avtale inngås oppfordres interessenter til å innhente komplett informasjon fra meglerforetaket, selger eller utleier.























