Bildegalleri

Oversiktsbilde, då ser du bustadane i rekke till til høgre for midten på bilde, med fasade mot SØR
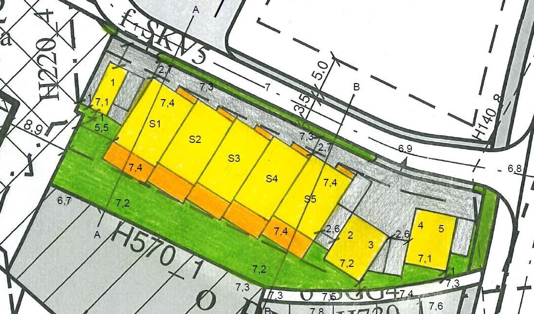
Bustadar i rekke på Ose i Ørsta, no med muligheit for Husbanklån
Bustadar i rekke på Ose i Ørsta
Kort om prosjektet
På Ose i Ørsta skal vi bygge ulike leilegheiter. Bustadane vil bestå av fleire forskjellige type. i dette prosjektet så skal vi bygge bustadar i rekke. Dei to første leilegheitene har flytta inn. Ved neste sal så startar vi opp å bygge dei tre siste bustadane.
Prosjektets status
Planlegging
Prosjektet er klart for salsstart
Salgsstart
3 kvartal i 2025
Byggestart
Tømrerarbeidet har starta
Overtakelse
Avhengig av sal, men ca. Q3 2026
Nøkkelinfo
- Boligtype
- Rekkehus
- Etasje
- 2
- Soverom
- 4
- Rom
- 5
- Bruksareal
- 125 m²
- Eksternt bruksareal
- 5 m² (BRA-e)
- Balkong/Terrasse
- 20 m² (TBA)
- Energimerking
- B - Oransje
Fasiliteter
Visning
Ta kontakt for å avtale visning.Beskrivelse
ENKEL SKILDRING
Ferdigstilling:
Dette er ein stor bustaden som vert vert levert nøkkelferdig i tråd med teknisk forskrift av 2017, og etter vårt nøkkelferdige konsept. Dusjveggar, møblar, kvitevarer, belysning og nedvask før innflytting er ikkje inkludert.
Utvendig overflate:
Utvendig bordkledning vert leverte med eitt strøk grunningsfarge. På taket vert det levert takpapp. Berande konstruksjonar og dekke på balkong/terrasse består av trykkimpregnerte materiale.
Innreiing/måling:
Bustadane leverast med kvitmalte tak- og veggplater frå Huntonitt. Dører, vindauge, listverk og fôringar til vindauga er kvite. Veggar og golv på bad er flislagde. På golvet i alle tørre rom vert det levert Berry Alloc høgtrykkslaminat. Innvendig bod har lagt fliser på golv.
Kjøken, bad- og garderobeinnreiing:
Kjøken og baderomsinnreiing er av type Nordsjø Riga serien. Desse vert leverte i h.h.t. arkitektteikning. Spegelen på bad har integrerte lys. Det vert levert 1m garderobeskap til kvar sengeplass, og desse vert plasserte i h.h.t teikning.
Rørleggjararbeid:
Anlegget vert levert komplett, og omfattar blant anna varmtvasstank (200L), avløp og uttak for vaskemaskin og oppvaskmaskin. Dusjbatteri med garnityr til badet, i h.h.t teikning. Til kvart hus vert det levert utvendig vasskrane.
Ventilasjon og Oppvarming:
God ventilasjon er avgjerande for eit godt innemiljø, og for å halde oppvarmings-utgiftene så lave som mogeleg. Difor vert bustadane leverte med balansert ventilasjon med varmegjenvinnar. I leilegheitene i firmannsbustaden er det inkludert vassboren varme med el. Kolbe i stove og kjøkkenet. Tomannsbustaden har vedomn og stålpipe.
Elektriske installasjonar:
Elektrisk anlegg er utført etter gjeldande forskrifter. Du skal ha eige møte med elektrikar, og der går de gjennom punktplassering i din bustad.
Installasjonen er tilrettelagt slik at du kan oppgradere anlegget etter individuelt ønske og behov mot det komplette smarthus dersom du kjem inn tidleg i fasen. Dette er noko De må ta direkte med elektrikaren.
Uteplass:
Leilegheitene har terrasse mot vest. Plenen vert levert grovplanert, og ein må rake, planere og så til plenen som eigeninnsats.
Interne vegar vert asfalterte.
Nøkkelferdige bustadar
Bustadane vert leverte nøkkelferdige i h.h.t leveringsbeskrivelsen. Dersom du skal ha ein standard leveransen vår så slepp du å gjere nokon form for eigeninnsats før du flytter inn i bustaden.
I vår standardleveranse har vi ikkje med:
- kvitevarer til kjøkenet,
- vaskemaskin,
- frysar,
- lampar,
- spottar,
- møblar,
- dusjkabinett eller dusjveggar,
- nedvaske av bustaden før innflytting
Kjem du tidleg inn i byggeprosessen, så kan du sjølvsagt gjere dei endringane du ynskjer slik at bustaden vert tilpassa ditt ynskje. Vi har ein god standardleveranse til ein fordelaktig pris.
Betalingsvilkår av bustaden
Du får ein fast pris på bustaden med oss. Du vil ikkje få nokon prisstigning, og du skal heller ikkje betale noko av kontraktssummen til Tømrer Prosjekt AS før den dagen du tek over bustaden.
Finansiering
Bustadane har tilsagn på finansiering gjennom Husbanken. Husbanken tilbyr lån til svært gunstige vilkår, og alle uansett alder kan søke om husbanklån. Flytande rente er frå 01. november 2025 på ca. 4,26 %. Du kan også få fastrente inntil 20 år. Husbanken tilbyr inntil 85 % finansiering med 30 års nedbetalingstid. Resterande 15 % må skaffast anten ved eigenkapital eller lån i annan bank.
Nærområdet
Mesterhus Sunnmøre
Annonsene kan være mangelfulle i forhold til lovpålagt opplysningsplikt. Før bindende avtale inngås oppfordres interessenter til å innhente komplett informasjon fra meglerforetaket, selger eller utleier.










