Bildegalleri

Velkommen til Sørumsgata 29! Presentert av EiendomsMegler1
Inaktiv
Lillestrøm
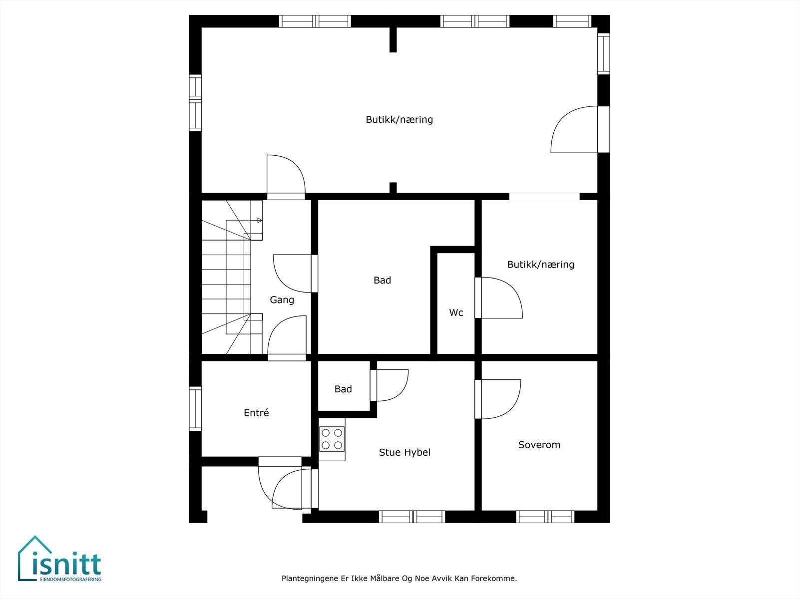
Familiebolig med næringsdel og separat leilighet. Estimerte utleieinntekter 30.000,- Garasje og rikelig med P-plasser.
Prisantydning11 990 000 kr
Nøkkelinfo
- Boligtype
- Enebolig
- Eieform
- Eier (Selveier)
- Soverom
- 3
- Primærrom
- 230 m²
- Bruksareal
- 291 m²
- Etasje
- 2
- Byggeår
- 1928
- Energimerking
- G - Gul
- Rom
- 3
- Tomteareal
- 610 m² (eiet)
Fasiliteter
Takterrasse
Aircondition
Balkong/Terrasse
Barnevennlig
Bredbåndstilknytning
Garasje/P-plass
Golfbane
Hage
Kjæledyr tillatt
Kabel-TV
Offentlig vann/kloakk
Parkett
Peis/Ildsted
Rolig
Sentralt
Utsikt
Turterreng
Lademulighet
Balansert ventilasjon
Visning
Vi ønsker på forhånd å vite om du kommer på visning og ber deg ta kontakt for avtale om visning på angitt dag. Dette gjør vi for å kunne yte bedre service til kundene våre.
For visninger utover de annonserte, ta kontakt med megler på telefon 454 59 898/ 99 48 88 66.
VisningspåmeldingOm boligen
Bo sentralt og rimelig i Sørumsgata 29. Familieboligen har en separat leilighet og næringsdel med estimert utleieinntekt på kr. 30.000,- i mnd. Eiendommen er beliggende på Vigernes med kort vei til Lillestrøm sentrum som byr på et godt utvalg av restauranter, kjøpesenter og kulturelle tilbud. Lillestrøm stasjon og bussterminal har et bredt utvalg av reisemuligheter og hyppige avganger.
Flat og pent opparbeidet tomt med boligen plassert i hjørne og dermed relativt stor hage med plen, beplantning og stor asfaltert gårdsplass med garasje.
Kort fortalt:
Flat og pent opparbeidet tomt med boligen plassert i hjørne og dermed relativt stor hage med plen, beplantning og stor asfaltert gårdsplass med garasje.
Kort fortalt:
- Estimert utleieinntekter på kr 30 000,-
- Flott familiebolig i Lillestrøm.
- Rikelig med p-plasser på gårdsplass og i garasje.
- Sentral, men skjermet beliggenhet.
- Stor, flat og solrik hage.
Velkommen!
NB: Knappen for å vise hele beskrivelsen har kun en visuell effekt.
NB: Knappen for å vise hele beskrivelsen har kun en visuell effekt.
Salgsoppgaven beskriver vesentlig og lovpålagt informasjon om eiendommen
Se komplett salgsoppgaveNyttige lenker
Nærområdet
EiendomsMegler 1 Lillestrøm
Vi loser deg trygt gjennom hele boligsalget
Annonsene kan være mangelfulle i forhold til lovpålagt opplysningsplikt. Før bindende avtale inngås oppfordres interessenter til å innhente komplett informasjon fra meglerforetaket, selger eller utleier.




































































