Bildegalleri

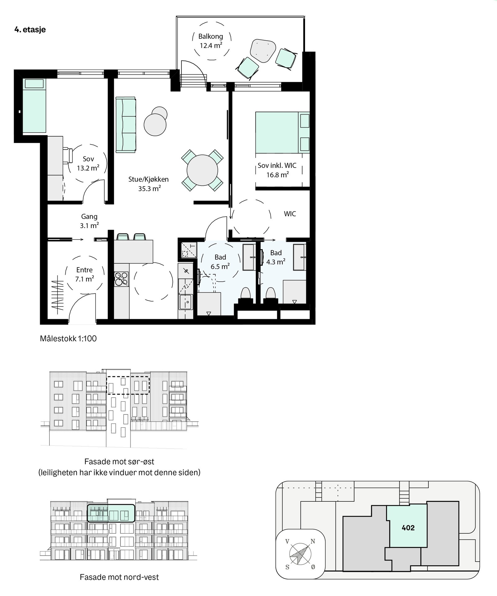
Toppleilighet 402
Hana/Austrått
Bladfaksveien 6 - Øygard, Sandnes
Bladfaksveien 6 - toppleilighet med utsikt og flott terrasse mot sør-vest
Prisantydning3 099 000 kr
Kort om prosjektet
Midt imellom Austrått og Hana ligger Øygard - en rusletur unna Sandnes sentrum. Her bygger vi leiligheter med store vestvendte balkonger - utvalgte leiligheter har 2 terrasser, hvor man får morgensol på den ene og ettermiddag/kveldssol på den andre. Nå kan du komme inn å se!
Prosjektets status
Planlegging
Innflytningsklart
Salgsstart
I salg
Byggestart
Innflytningsklart
Overtakelse
Innflytningsklart etter avtale
Nøkkelinfo
- Boligtype
- Leilighet
- Etasje
- 4
- Soverom
- 2
- Internt bruksareal
- 94 m² (BRA-i)
- Bruksareal
- 94 m²
- Eksternt bruksareal
- 7 m² (BRA-e)
- Balkong/Terrasse
- 12 m² (TBA)
- Energimerking
- B - Rød
Fasiliteter
Balansert ventilasjon
Balkong/Terrasse
Barnevennlig
Bredbåndstilknytning
Garasje/P-plass
Heis
Lademulighet
Offentlig vann/kloakk
Parkett
Utsikt
Turterreng
Beskrivelse
Toppleilighet med spennende planløsning. To store soverom, det ene med WIC og privat bad. Eget gjestebad. Stor solrik terrasse på 12,4
NB: Knappen for å vise hele beskrivelsen har kun en visuell effekt.
NB: Knappen for å vise hele beskrivelsen har kun en visuell effekt.
Nærområdet
OBOS Block Watne AS
Annonsene kan være mangelfulle i forhold til lovpålagt opplysningsplikt. Før bindende avtale inngås oppfordres interessenter til å innhente komplett informasjon fra meglerforetaket, selger eller utleier.



