Bildegalleri

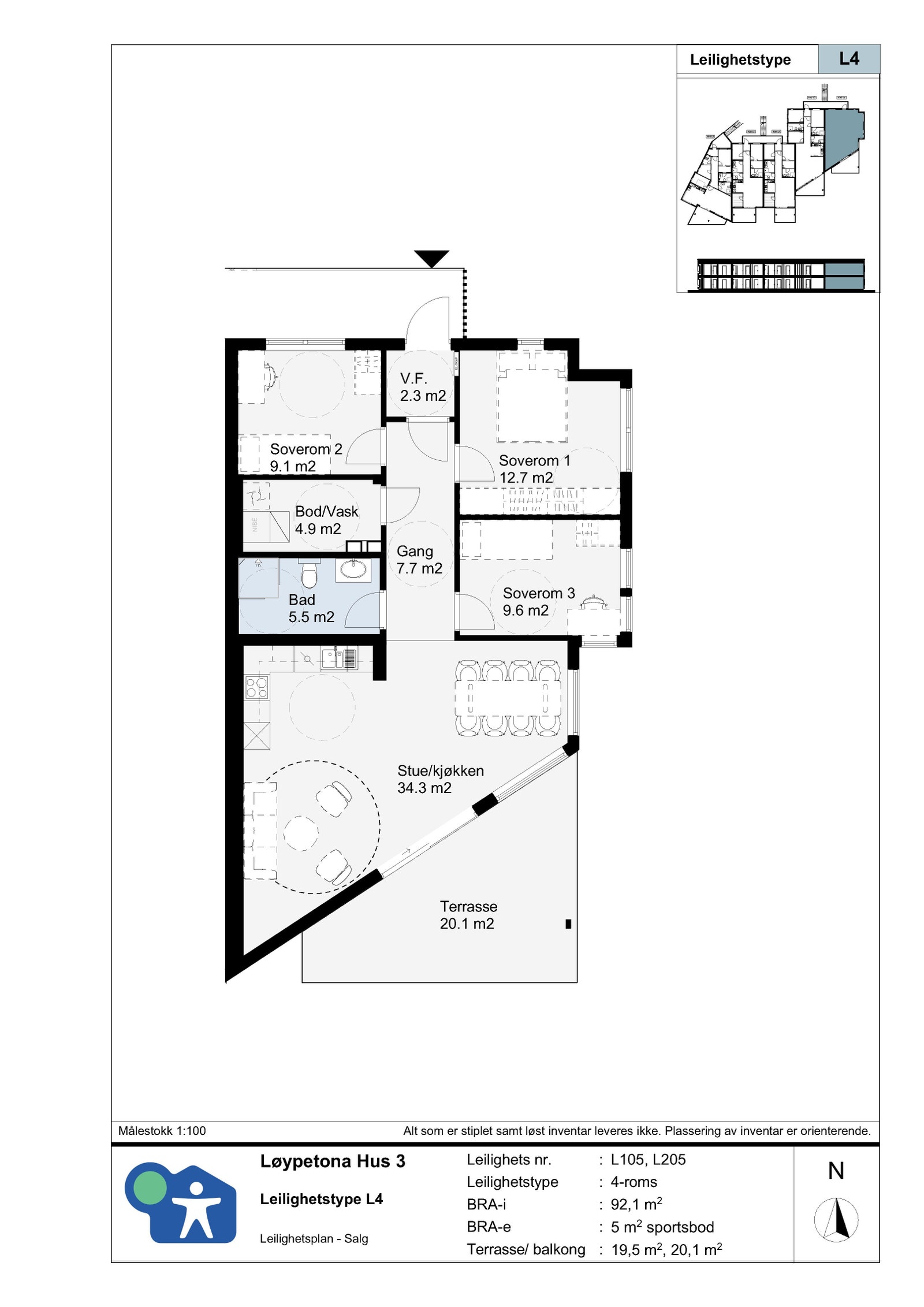
Leilighetstype L4, leilighet 5
Ny leilighet med flott beliggenhet ved sjøen på Løypetona.
Løypetona - Leilighet Type L. 4
Prosjektets status
Planlegging
Høsten 2023
Salgsstart
23.09.2023
Byggestart
Planlagt Q.1-2024
Overtakelse
Oktober 2025
Nøkkelinfo
- Boligtype
- Leilighet
- Etasje
- 1
- Soverom
- 3
- Rom
- 4
- Internt bruksareal
- 92 m² (BRA-i)
- Bruksareal
- 97 m²
- Eksternt bruksareal
- 5 m² (BRA-e)
- Balkong/Terrasse
- 20 m² (TBA)
- Energimerking
- A - Lysegrønn
Fasiliteter
Beskrivelse
Leilighetene er utformet med tanke på alle aldersgrupper, som ønsker seg en romslig leilighet med plass til livet.
Med 3 soverom gir det mulighet for familier, men kan også nyttes som hjemmekontor, gjesterom eller hobbyrom el.
I tillegg til den gode beliggenheten, legger de også til rette for en praktisk hverdag.
Boenheten for egen tildelt / oppmerket parkeringsplass i carport, med tilhørende bod.
Hver leilighet har sin egen romslige terrasse eller balkong, med gode solforhold.
OBOS-medlemmer får velge og kjøpe bolig før ikke-medlemmer den dagen salget av nye boliger i OBOS Block Watnes boligprosjekter starter. Den som har vært medlem lengst får velge bolig først (ansiennitetsprinsippet).
Etter at medlemmene har valgt og kjøpt boliger ved salgsstart, er det fritt fram for hvem som helst å kjøpe boligene som fortsatt er ledige.
Nyttige lenker
Nærområdet
OBOS Block Watne AS
OBOS Block Watne
Utbygger
Annonsene kan være mangelfulle i forhold til lovpålagt opplysningsplikt. Før bindende avtale inngås oppfordres interessenter til å innhente komplett informasjon fra meglerforetaket, selger eller utleier.
