Bildegalleri

Pent opparbeidede hager og fine uteområder bidrar til et hyggelig nabolag
Prestekrageveien 17-23
Engene Platå | Flotte og romslige prosjekterte eneboliger med utsikt. Igangsetting vedtatt!
Prisantydning fra
6 098 000 kr
Prisantydning til
7 898 000 kr
Prosjektets status
Planlegging
2023
Salgsstart
Salget er i gang
Byggestart
Vedtatt
Overtakelse
Ca 15 mnd etter byggestart
Nøkkelinfo
- Boligtype
- Enebolig
- Soverom
- 3 - 4
- Internt bruksareal
- 156 - 171 m² (BRA-i)
- Bruksareal
- 186 - 222 m²
- Eksternt bruksareal
- 30 - 51 m² (BRA-e)
- Balkong/Terrasse
- 31 - 48 m² (TBA)
- Eieform
- Eier (Selveier)
Fasiliteter
Enheter i prosjektet
Sorter etter
Beskrivelse
Velkommen til OBOS Block Watnes nye prosjekt på Engene Platå - Utsikten!
Boligene skal tilfredsstille krav til Husbankens miljø -og/eller tilgjengelighetskrav. Prosjektet vil søke husbankfinansiering januar 2024.
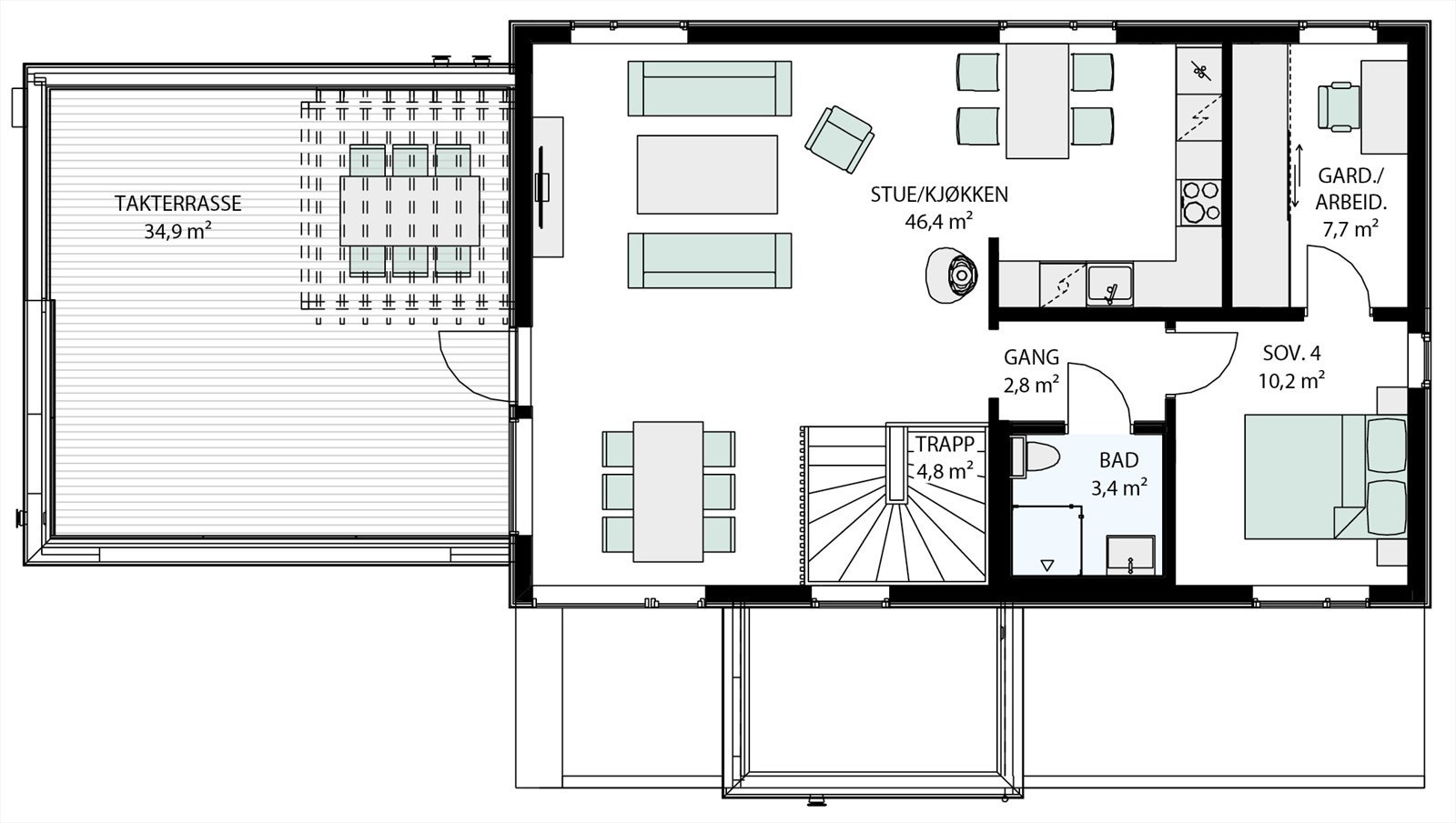
Boligene leveres nøkkelferdig! Komplett bolig med ferdig opparbeidet uteareal. Noen av boligene har utsikt til Torungen fyr. Barnevennlig og solrikt.
Detaljert info om standard finner du i dokumentet Leveransebeskrivelse, men her er et utdrag:
HTH kjøkken med nydelige detaljer. Som du ser av tegning er det rikelig med skap-og benkeplass.
Mulighet for utleie/praktikantdel i enkelte av husene.
HTH baderomsinnredning
Integrerte hvitevarer fra Siemens
Varme i flislagte badegulv
Alle gulv i tørre rom leveres med 15 mm parkett
Balansert ventilasjon med varmegjenvinning
Ferdig opparbeidet uteareal iht. utomhusplan
Flott takterrasse med pergola
Parkering i enkel eller dobbel carport
Automatisk vannstopper
Grohe kvalitetskraner
Utvendig tappekran
Beliggenhet
Nye Engene Platå ligger mellom Arendal og Grimstad i et barnevennlig, rolig og luftig område.
Fra boligene er det kort vei til flotte turområder i skog og mark, med et løypenett som passer både mosjonister og aktive sjeler. Du vil også ha flotte badeplasser på sommerstid kun en kort sykkeltur unna.
Prestekrageveien ligger lyst og luftig til vest på Engene Platå, som ligger barnevennlig og solrikt til i et etablert boligområde, mellom Arendal og Grimstad. Fra Vesterveien (FV 420) tar du av ved Engene kirke og følger Markblomstveien opp mot toppen. Ta inn til venstre i Prestekrageveien, og tomteområdet for AB16/17 befinner seg der på toppen - godt merket og med utsikt mot Skagerrak.
Generell orientering
Hva vil det si å kjøpe en helt ny bolig fra OBOS Block Watne?
Lavere driftsutgifter fra dag 1. Dette vil si at nye boliger har lavere driftsutgifter til energi og strøm som følge av strenge krav til isolasjon og varmegjenvinning.
5 års reklamasjonsrett. Kjøper du helt ny bolig fra OBOS Block Watne så har du inntil fem års reklamasjonsrett på feil eller mangler på boligen.
Ingen utgifter til oppussing og rehabilitering.
Dokumentavgift kun på tomteverdien. På nye boliger beregnes dokumentavgift kun på tomteverdien, og tomteverdien er langt lavere enn verdien av både tomt og hus.
Økt trygghet. OBOS Block Watne-hus bygges etter strenge standarder og forskriftskrav for våtrom, teknisk anlegg, brannsikring, materialvalg og miljø.
Mulighet til å påvirke standarden, og sette et helt personlig preg på din nye bolig.
Fremdriftsplan og ferdigstillelse
Ferdigstillelse/innflytting vil være ca. 15 mnd. fra datoen Selger melder om oppstartstidspunkt/byggestart. Oppstart forutsetter at alle forbehold om realisering er avklart innen angitt frist. Ved eventuell senere avklaring endres ferdigstillelsestidspunkt innflyttingspunkt tilsvarende. Senest 90 dager før overtagelse vil selger innkalle til overtagelsesforretning. Denne innkalling vil da gjelde som avtalt tidspunkt for overtagelse.
Ansvarlig megler
Arild Aasen
Nyttige lenker
Nærområdet
Eiendomsmegler Norge Arendal
Annonseinformasjon
| FINN-kode | 320206319 |
|---|---|
| Sist endret | 02. sep. 2024 06:20 |
| Referanse | SORM31.235004 |
Annonsene kan være mangelfulle i forhold til lovpålagt opplysningsplikt. Før bindende avtale inngås oppfordres interessenter til å innhente komplett informasjon fra meglerforetaket, selger eller utleier.




















