Bildegalleri

Illustrasjon av interiør. Avvik vil forekomme.
Kanaltunet
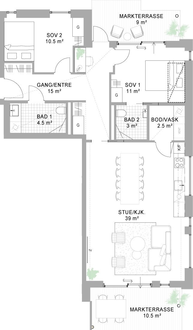
Kanaltunet - Lys og innholdsrik 3-roms leilighet på ca, 98 kvm - 2 soverom og 2 bad - 2 terrasser
Prosjektets status
Planlegging
Ferdig
Salgsstart
september 2023
Byggestart
Vedtatt
Overtakelse
Forventet 4.kvartal 2025
Nøkkelinfo
- Boligtype
- Leilighet
- Etasje
- 1
- Soverom
- 2
- Rom
- 3
- Internt bruksareal
- 93 m² (BRA-i)
- Bruksareal
- 98 m²
- Eksternt bruksareal
- 5 m² (BRA-e)
- Balkong/Terrasse
- 9 m² (TBA)
Fasiliteter
Beskrivelse
Leiligheten planlegges med lys en-stavs eikeparkett, generøs takhøyde og store vindusflater. Det leveres varme i gulv: vannbåren varme i stue/kjøkken og el på bad. Balansert ventilasjon sørger for godt inneklima og lave kostnader til oppvarming. Ny bolig kommer med fem års reklamasjonsrett og oppfølging fra utbygger. Alt dette, pluss frisk sjøluft gjennom soveromsvinduet.
1.etg: Gang/entré, 2 bad, 2 soverom hvor det ene har eget bad og terrasse, bod, stue og kjøkken med utgang til terrasse på ca. 10kvm.
Nærområdet
EiendomsMegler 1 Nybygg Forus
Annonseinformasjon
| FINN-kode | 320110070 |
|---|---|
| Sist endret | 18. sep. 2025 06:46 |
| Referanse | 2207230219 |
Annonsene kan være mangelfulle i forhold til lovpålagt opplysningsplikt. Før bindende avtale inngås oppfordres interessenter til å innhente komplett informasjon fra meglerforetaket, selger eller utleier.



